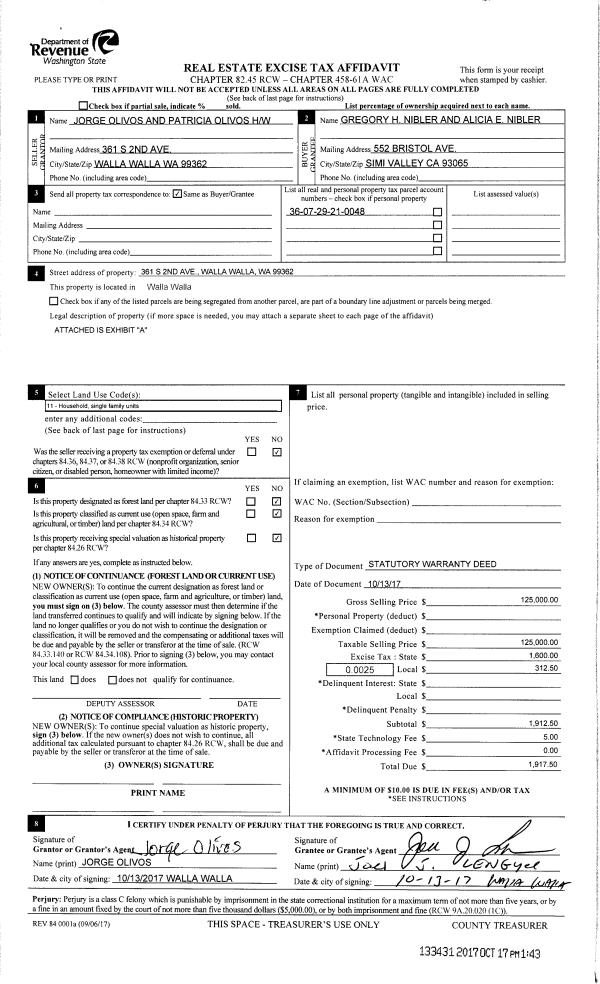
Property
Account |
| Property ID: | 10243 | Abbreviated Legal Description: | 29-7-36 TAX 38 |
| Parcel Number: | 360729210048 | Agent Code: | |
| Type: | Real | | |
| Tax Area: | 1 - OL-140-F | Land Use Code | 11 |
| Open Space: | N | DFL | N |
| Historic Property: | N | Remodel Property: | N |
| Multi-Family Redevelopment: | N | | |
| Township: | 7 | Section: | 29 |
| Range: | 36 |
Location |
| Address: | 361 S 2ND AVE WA 99362 | Mapsco: | |
| Neighborhood: | A-SFR | Map ID: | |
| Neighborhood CD: | 513011 |
Owner |
| Name: | NIBLER GREGORY H & ALICIA E | Owner ID: | 62003 |
| Mailing Address: | 552 BRISTOL AVE SIMI VALLEY, CA 93065 | % Ownership: | 100.0000000000% |
| | | Exemptions: | |
Taxes and Assessment Details
Property Tax Information as of
02/21/2026
Click on "Statement Details" to expand or collapse a tax statement.
* Please enter a valid date ** Please enter a valid date *
Statement Details |
| | TOTAL: | $0.00 | $0.00 | $0.00 | $0.00 | $0.00 | $0.00 |
|
| | $0.00 | $0.00 | $0.00 | $0.00 | $0.00 | $0.00 |
Values
| (+) Improvement Homesite Value: | + | $0 | |
| (+) Improvement Non-Homesite Value: | + | $186,560 | |
| (+) Land Homesite Value: | + | $0 | |
| (+) Land Non-Homesite Value: | + | $23,250 | |
| (+) Curr Use (HS): | + | $0 | $0 |
| (+) Curr Use (NHS): | + | $0 | $0 |
| | | -------------------------- | |
| (=) Market Value: | = | $209,810 | |
| (–) Productivity Loss: | – | $0 | |
| | | -------------------------- | |
| (=) Subtotal: | = | $209,810 | |
| (+) Senior Appraised Value: | + | $0 | |
| (+) Non-Senior Appraised Value: | + | $209,810 | |
| | | -------------------------- | |
| (=) Total Appraised Value: | = | $209,810 | |
| (–) Senior Exemption Loss: | – | $0 | |
| (–) Exemption Loss: | – | $0 | |
| | | -------------------------- | |
| (=) Taxable Value: | = | $209,810 | |
Taxing Jurisdiction
| Owner: | NIBLER GREGORY H & ALICIA E | | |
| % Ownership: | 100.0000000000% | | |
| Total Value: | $209,810 | | |
| Tax Area: | 1 - OL-140-F |
| CERFD | CURRENT EXPENSE REFUND 010 | 0.0000000000 | $209,810 | $209,810 | $0.00 | | |
| CURREXP | CURRENT EXPENSE 010 | 1.0175366760 | $209,810 | $209,810 | $213.49 | | |
| HUMNSERV | HUMAN SERVICES 119 | 0.0250000000 | $209,810 | $209,810 | $5.25 | | |
| SLDREL | SOLDIERS RELIEF 121 | 0.0155990005 | $209,810 | $209,810 | $3.27 | | |
| EMERGSER | EMS 147 | 0.3792580840 | $209,810 | $209,810 | $79.57 | | |
| EMSRFD | EMS REFUND 147 | 0.0000000000 | $209,810 | $209,810 | $0.00 | | |
| PORTRFD | PORT REFUND 640 | 0.0000000000 | $209,810 | $209,810 | $0.00 | | |
| PORTWWGEN | PORT OF WW 640 | 0.2460186015 | $209,810 | $209,810 | $51.62 | | |
| SD140BOND | SD #140 BOND 764 | 0.8342371393 | $209,810 | $209,810 | $175.03 | | |
| SD140GEN | SD #140 GENERAL 760 | 2.0646500647 | $209,810 | $209,810 | $433.18 | | |
| ST2 | STATE SCHOOL PART 2 600 | 0.8131451643 | $209,810 | $209,810 | $170.61 | | |
| STATESCHL | STATE SCHOOL 600 | 1.5158548041 | $209,810 | $209,810 | $318.04 | | |
| STREFUND | STATE REFUND LEVY 603 | 0.0000000000 | $209,810 | $209,810 | $0.00 | | |
| CWWBOND | C OF WW BOND 643 | 0.2760494372 | $209,810 | $209,810 | $57.92 | | |
| CWWGEN | CITY OF WW 631 | 1.6100204973 | $209,810 | $209,810 | $337.80 | | |
| CWWRFD | CITY OF WALLA WALLA REFUND 631 | 0.0000000000 | $209,810 | $209,810 | $0.00 | | |
| | Total Tax Rate: | 8.7973694689 | | | | | |
| | | | | Taxes w/Current Exemptions: | $1,845.78 | | |
| | | | | Taxes w/o Exemptions: | $1,845.78 | | |
Improvement / Building
| Improvement #1: | RESIDENTIAL | State Code: | 11 | 1040.0 sqft | Value: | $186,560 |
| Exterior Wall: | SIDING | Heating/Cooling: | FORCED AIR | | Number of Bathrooms: | 1 | Number of Bedrooms: | 3 | | Plumbing: | 6 | Roof Covering: | COMP SHINGLE |
|
| | Type | Description | Class CD | Sub Class CD | Year Built | Area |
| | MA | Main Area | 2 | 20 | 1900 | 1040.0 |
| | SI1 | SITE IMPROVEMENT | 2 | 20 | 1900 | 1.0 |
| | BASE | BASEMENT | 2 | 20 | 1900 | 200.0 |
| | RPO | OPEN PORCH W/ROOF | 2 | 20 | 1900 | 56.0 |
| | RPO | OPEN PORCH W/ROOF | 2 | 20 | 1900 | 72.0 |
| | UTST | Utility Storage Shed | 2 | 20 | 1900 | 192.0 |
Sketch
Property Image
Land
| 1 | RES 1 | Converted: Residential | 0.0854 | 3720.00 | 0.00 | 0.00 | 1.00 | $23,250 | $0 |
Roll Value History
| 2026 | N/A | N/A | N/A | N/A | N/A |
| 2025 | $206,310 | $37,200 | $0 | $243,510 | $243,510 |
| 2024 | $187,550 | $37,200 | $0 | $224,750 | $224,750 |
| 2023 | $186,560 | $23,250 | $0 | $209,810 | $209,810 |
| 2022 | $162,230 | $23,250 | $0 | $185,480 | $185,480 |
| 2021 | $120,170 | $23,250 | $0 | $143,420 | $143,420 |
| 2020 | $100,140 | $23,250 | $0 | $123,390 | $123,390 |
| 2019 | $100,140 | $23,250 | $0 | $123,390 | $123,390 |
| 2018 | $95,370 | $23,250 | $0 | $118,620 | $118,620 |
| 2017 | $58,800 | $14,900 | $0 | $73,700 | $73,700 |
| 2016 | $58,800 | $14,900 | $0 | $73,700 | $73,700 |
| 2015 | $58,800 | $14,900 | $0 | $73,700 | $73,700 |
| 2014 | $58,800 | $14,900 | $0 | $73,700 | $73,700 |
| 2013 | $58,800 | $14,900 | $0 | $73,700 | $73,700 |
| 2012 | $58,800 | $14,900 | $0 | $0 | $0 |
| 2011 | $58,800 | $14,900 | $0 | $0 | $0 |
| 2010 | $58,800 | $14,900 | $0 | $0 | $0 |
| 2009 | $67,000 | $14,900 | $0 | $0 | $0 |
| 2008 | $59,600 | $22,300 | $0 | $0 | $0 |
| 2007 | $50,400 | $7,400 | $0 | $0 | $0 |
Deed and Sales History
| 1 | 10/17/2017 | SWD | STATUTORY WARRANTY DEED | OLIVOS JORGE & PATRICIA | NIBLER GREGORY H & ALICIA E | | | $125,000.00 | 133431 | 2017-08218 |
| 2 | 11/30/1995 | WARRANTY D | WARRANTY DEED | | | | | $40,000.00 | 85179 | 2369-511566 |
Payout Agreement
| No payout information available.. |