Property
Account |
| Property ID: | 10240 | Abbreviated Legal Description: | 29-7-36 TAX 135 |
| Parcel Number: | 360729210036 | Agent Code: | |
| Type: | Real | | |
| Tax Area: | 1 - OL-140-F | Land Use Code | 11 |
| Open Space: | N | DFL | N |
| Historic Property: | N | Remodel Property: | N |
| Multi-Family Redevelopment: | N | | |
| Township: | 7 | Section: | 29 |
| Range: | 36 |
Location |
| Address: | 374 S 4TH AVE WA 99362 | Mapsco: | |
| Neighborhood: | Fair Inferior Res | Map ID: | |
| Neighborhood CD: | 512111 |
Owner |
| Name: | CORONA SERGIO MORENO | Owner ID: | 60145 |
| Mailing Address: | 374 S 4TH AVE WALLA WALLA, WA 99362 | % Ownership: | 100.0000000000% |
| | | Exemptions: | |
Taxes and Assessment Details
Property Tax Information as of
02/21/2026
Click on "Statement Details" to expand or collapse a tax statement.
* Please enter a valid date ** Please enter a valid date *
Statement Details |
| | TOTAL: | $0.00 | $0.00 | $0.00 | $0.00 | $0.00 | $0.00 |
|
| | $0.00 | $0.00 | $0.00 | $0.00 | $0.00 | $0.00 |
Values
| (+) Improvement Homesite Value: | + | $0 | |
| (+) Improvement Non-Homesite Value: | + | $317,350 | |
| (+) Land Homesite Value: | + | $0 | |
| (+) Land Non-Homesite Value: | + | $29,140 | |
| (+) Curr Use (HS): | + | $0 | $0 |
| (+) Curr Use (NHS): | + | $0 | $0 |
| | | -------------------------- | |
| (=) Market Value: | = | $346,490 | |
| (–) Productivity Loss: | – | $0 | |
| | | -------------------------- | |
| (=) Subtotal: | = | $346,490 | |
| (+) Senior Appraised Value: | + | $0 | |
| (+) Non-Senior Appraised Value: | + | $346,490 | |
| | | -------------------------- | |
| (=) Total Appraised Value: | = | $346,490 | |
| (–) Senior Exemption Loss: | – | $0 | |
| (–) Exemption Loss: | – | $0 | |
| | | -------------------------- | |
| (=) Taxable Value: | = | $346,490 | |
Taxing Jurisdiction
| Owner: | CORONA SERGIO MORENO | | |
| % Ownership: | 100.0000000000% | | |
| Total Value: | $346,490 | | |
| Tax Area: | 1 - OL-140-F |
| CERFD | CURRENT EXPENSE REFUND 010 | 0.0000000000 | $346,490 | $346,490 | $0.00 | | |
| CURREXP | CURRENT EXPENSE 010 | 1.0175366760 | $346,490 | $346,490 | $352.57 | | |
| HUMNSERV | HUMAN SERVICES 119 | 0.0250000000 | $346,490 | $346,490 | $8.66 | | |
| SLDREL | SOLDIERS RELIEF 121 | 0.0155990005 | $346,490 | $346,490 | $5.40 | | |
| EMERGSER | EMS 147 | 0.3792580840 | $346,490 | $346,490 | $131.41 | | |
| EMSRFD | EMS REFUND 147 | 0.0000000000 | $346,490 | $346,490 | $0.00 | | |
| PORTRFD | PORT REFUND 640 | 0.0000000000 | $346,490 | $346,490 | $0.00 | | |
| PORTWWGEN | PORT OF WW 640 | 0.2460186015 | $346,490 | $346,490 | $85.24 | | |
| SD140BOND | SD #140 BOND 764 | 0.8342371393 | $346,490 | $346,490 | $289.05 | | |
| SD140GEN | SD #140 GENERAL 760 | 2.0646500647 | $346,490 | $346,490 | $715.38 | | |
| ST2 | STATE SCHOOL PART 2 600 | 0.8131451643 | $346,490 | $346,490 | $281.75 | | |
| STATESCHL | STATE SCHOOL 600 | 1.5158548041 | $346,490 | $346,490 | $525.23 | | |
| STREFUND | STATE REFUND LEVY 603 | 0.0000000000 | $346,490 | $346,490 | $0.00 | | |
| CWWBOND | C OF WW BOND 643 | 0.2760494372 | $346,490 | $346,490 | $95.65 | | |
| CWWGEN | CITY OF WW 631 | 1.6100204973 | $346,490 | $346,490 | $557.86 | | |
| CWWRFD | CITY OF WALLA WALLA REFUND 631 | 0.0000000000 | $346,490 | $346,490 | $0.00 | | |
| | Total Tax Rate: | 8.7973694689 | | | | | |
| | | | | Taxes w/Current Exemptions: | $3,048.20 | | |
| | | | | Taxes w/o Exemptions: | $3,048.20 | | |
Improvement / Building
| Improvement #1: | RESIDENTIAL | State Code: | 11 | 1136.0 sqft | Value: | $317,350 |
| Exterior Wall: | SIDING | Heating/Cooling: | FORCED AIR | | Number of Bathrooms: | 2 | Number of Bedrooms: | 4 | | Plumbing: | 10 | Roof Covering: | COMP SHINGLE |
|
| | Type | Description | Class CD | Sub Class CD | Year Built | Area |
| | MA | Main Area | 1 | 30 | 1920 | 1136.0 |
| | SI1 | SITE IMPROVEMENT | 1 | 30 | 1920 | 1.0 |
| | BASE | BASEMENT | 1 | 30 | 1920 | 1136.0 |
| | BPF | BASEMENT -PARTITIONED FINISH | 1 | 30 | 1920 | 400.0 |
| | RPS | PORCH W/STEPS,ROOF | 1 | 30 | 1920 | 160.0 |
| | UTST | Utility Storage Shed | 1 | 30 | 1920 | 240.0 |
Sketch
Property Image
Land
| 1 | RES 1 | Converted: Residential | 0.1274 | 5550.00 | 0.00 | 0.00 | 1.00 | $29,140 | $0 |
Roll Value History
| 2026 | N/A | N/A | N/A | N/A | N/A |
| 2025 | $270,800 | $49,950 | $0 | $320,750 | $320,750 |
| 2024 | $270,800 | $49,950 | $0 | $320,750 | $320,750 |
| 2023 | $317,350 | $29,140 | $0 | $346,490 | $346,490 |
| 2022 | $275,960 | $29,140 | $0 | $305,100 | $305,100 |
| 2021 | $204,410 | $29,140 | $0 | $233,550 | $233,550 |
| 2020 | $146,010 | $29,140 | $0 | $175,150 | $175,150 |
| 2019 | $143,430 | $29,140 | $0 | $172,570 | $172,570 |
| 2018 | $102,450 | $29,140 | $0 | $131,590 | $131,590 |
| 2017 | $72,140 | $33,300 | $0 | $105,440 | $105,440 |
| 2016 | $68,700 | $33,300 | $0 | $102,000 | $102,000 |
| 2015 | $68,700 | $33,300 | $0 | $102,000 | $102,000 |
| 2014 | $68,700 | $33,300 | $0 | $102,000 | $102,000 |
| 2013 | $68,700 | $33,300 | $0 | $102,000 | $102,000 |
| 2012 | $68,700 | $33,300 | $0 | $0 | $0 |
| 2011 | $68,700 | $33,300 | $0 | $0 | $0 |
| 2010 | $86,700 | $33,300 | $0 | $0 | $0 |
| 2009 | $107,900 | $33,300 | $0 | $0 | $0 |
| 2008 | $107,900 | $33,300 | $0 | $0 | $0 |
| 2007 | $65,300 | $11,100 | $0 | $0 | $0 |
Deed and Sales History
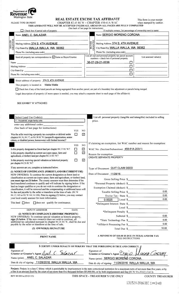
| 1 | 12/01/2016 | QCD | QUIT CLAIM DEED | SALAZAR ANEL C | CORONA SERGIO MORENO | | | | 131520 | 2016-09847 |
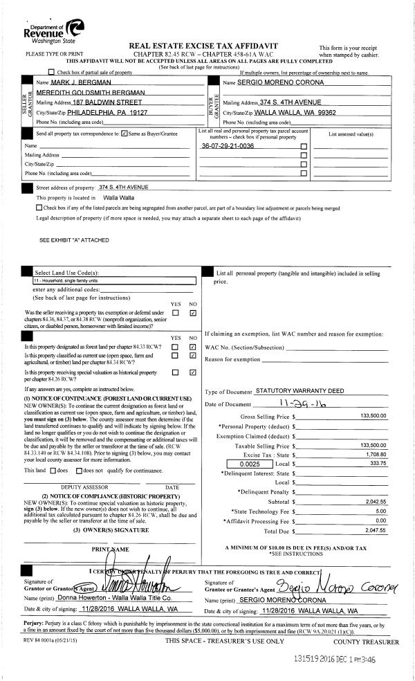
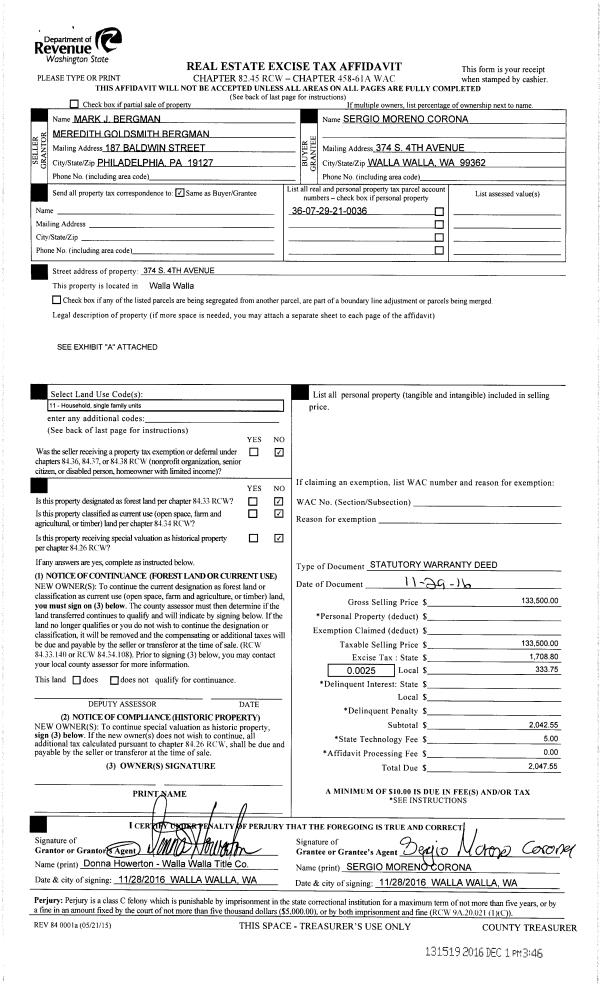
| 2 | 12/01/2016 | SWD | STATUTORY WARRANTY DEED | BERGMAN MARK J | CORONA SERGIO MORENO | | | $133,500.00 | 131519 | 2016-09846 |
| 3 | 09/17/2003 | WARRANTY D | WARRANTY DEED | DRIGGS, SARAH | BERGMAN, MARK J | | | $100,000.00 | 103031 | 2003-14164 |
| 4 | 01/04/2002 | WARRANTY D | WARRANTY DEED | | | | | $77,500.00 | 98688 | 3260-200110 |
Payout Agreement
| No payout information available.. |