Property
Account |
| Property ID: | 10220 | Abbreviated Legal Description: | 29-7-36 TAX 208 |
| Parcel Number: | 360729140041 | Agent Code: | |
| Type: | Real | | |
| Tax Area: | 1 - OL-140-F | Land Use Code | 11 |
| Open Space: | N | DFL | N |
| Historic Property: | N | Remodel Property: | N |
| Multi-Family Redevelopment: | N | | |
| Township: | 7 | Section: | 29 |
| Range: | 36 |
Location |
| Address: | 186 E CHESTNUT ST WA 99362 | Mapsco: | |
| Neighborhood: | A Res | Map ID: | |
| Neighborhood CD: | 613011 |
Owner |
| Name: | ALFARO JENNIFER L | Owner ID: | 69382 |
| Mailing Address: | 186 E CHESTNUT ST WALLA WALLA, WA 99362 | % Ownership: | 100.0000000000% |
| | | Exemptions: | |
Taxes and Assessment Details
Property Tax Information as of
02/21/2026
Click on "Statement Details" to expand or collapse a tax statement.
* Please enter a valid date ** Please enter a valid date *
Statement Details |
| | TOTAL: | $0.00 | $0.00 | $0.00 | $0.00 | $0.00 | $0.00 |
|
| | $0.00 | $0.00 | $0.00 | $0.00 | $0.00 | $0.00 |
Values
| (+) Improvement Homesite Value: | + | $0 | |
| (+) Improvement Non-Homesite Value: | + | $222,390 | |
| (+) Land Homesite Value: | + | $0 | |
| (+) Land Non-Homesite Value: | + | $33,640 | |
| (+) Curr Use (HS): | + | $0 | $0 |
| (+) Curr Use (NHS): | + | $0 | $0 |
| | | -------------------------- | |
| (=) Market Value: | = | $256,030 | |
| (–) Productivity Loss: | – | $0 | |
| | | -------------------------- | |
| (=) Subtotal: | = | $256,030 | |
| (+) Senior Appraised Value: | + | $0 | |
| (+) Non-Senior Appraised Value: | + | $256,030 | |
| | | -------------------------- | |
| (=) Total Appraised Value: | = | $256,030 | |
| (–) Senior Exemption Loss: | – | $0 | |
| (–) Exemption Loss: | – | $0 | |
| | | -------------------------- | |
| (=) Taxable Value: | = | $256,030 | |
Taxing Jurisdiction
| Owner: | ALFARO JENNIFER L | | |
| % Ownership: | 100.0000000000% | | |
| Total Value: | $256,030 | | |
| Tax Area: | 1 - OL-140-F |
| CERFD | CURRENT EXPENSE REFUND 010 | 0.0000000000 | $256,030 | $256,030 | $0.00 | | |
| CURREXP | CURRENT EXPENSE 010 | 1.0175366760 | $256,030 | $256,030 | $260.52 | | |
| HUMNSERV | HUMAN SERVICES 119 | 0.0250000000 | $256,030 | $256,030 | $6.40 | | |
| SLDREL | SOLDIERS RELIEF 121 | 0.0155990005 | $256,030 | $256,030 | $3.99 | | |
| EMERGSER | EMS 147 | 0.3792580840 | $256,030 | $256,030 | $97.10 | | |
| EMSRFD | EMS REFUND 147 | 0.0000000000 | $256,030 | $256,030 | $0.00 | | |
| PORTRFD | PORT REFUND 640 | 0.0000000000 | $256,030 | $256,030 | $0.00 | | |
| PORTWWGEN | PORT OF WW 640 | 0.2460186015 | $256,030 | $256,030 | $62.99 | | |
| SD140BOND | SD #140 BOND 764 | 0.8342371393 | $256,030 | $256,030 | $213.59 | | |
| SD140GEN | SD #140 GENERAL 760 | 2.0646500647 | $256,030 | $256,030 | $528.61 | | |
| ST2 | STATE SCHOOL PART 2 600 | 0.8131451643 | $256,030 | $256,030 | $208.19 | | |
| STATESCHL | STATE SCHOOL 600 | 1.5158548041 | $256,030 | $256,030 | $388.10 | | |
| STREFUND | STATE REFUND LEVY 603 | 0.0000000000 | $256,030 | $256,030 | $0.00 | | |
| CWWBOND | C OF WW BOND 643 | 0.2760494372 | $256,030 | $256,030 | $70.68 | | |
| CWWGEN | CITY OF WW 631 | 1.6100204973 | $256,030 | $256,030 | $412.21 | | |
| CWWRFD | CITY OF WALLA WALLA REFUND 631 | 0.0000000000 | $256,030 | $256,030 | $0.00 | | |
| | Total Tax Rate: | 8.7973694689 | | | | | |
| | | | | Taxes w/Current Exemptions: | $2,252.38 | | |
| | | | | Taxes w/o Exemptions: | $2,252.38 | | |
Improvement / Building
| Improvement #1: | RESIDENTIAL | State Code: | 11 | 1301.0 sqft | Value: | $222,390 |
| Exterior Wall: | SIDING | Heating/Cooling: | WARM & COOLED AIR | | Number of Bathrooms: | 2 | Number of Bedrooms: | 3 | | Plumbing: | 9 | Roof Covering: | COMP SHINGLE |
|
| | Type | Description | Class CD | Sub Class CD | Year Built | Area |
| | MA | Main Area | 4 | 30 | 1924 | 1301.0 |
| | UPFL | Upper Floor (included in main area) | 4 | 30 | 1924 | 480.0 |
| | SI1 | SITE IMPROVEMENT | 4 | 30 | 1924 | 1.0 |
| | BASE | BASEMENT | 4 | 30 | 1924 | 600.0 |
| | BPF | BASEMENT -PARTITIONED FINISH | 4 | 30 | 1924 | 600.0 |
| | RPS | PORCH W/STEPS,ROOF | 4 | 30 | 1924 | 25.0 |
Sketch
Property Image
Land
| 1 | RES 1 | Converted: Residential | 0.0858 | 3738.00 | 0.00 | 0.00 | 1.00 | $33,640 | $0 |
Roll Value History
| 2026 | N/A | N/A | N/A | N/A | N/A |
| 2025 | $277,020 | $41,120 | $0 | $318,140 | $318,140 |
| 2024 | $222,390 | $33,640 | $0 | $256,030 | $256,030 |
| 2023 | $222,390 | $33,640 | $0 | $256,030 | $256,030 |
| 2022 | $222,390 | $27,100 | $0 | $249,490 | $249,490 |
| 2021 | $211,800 | $27,100 | $0 | $238,900 | $238,900 |
| 2020 | $141,200 | $27,100 | $0 | $168,300 | $168,300 |
| 2019 | $141,200 | $27,100 | $0 | $168,300 | $168,300 |
| 2018 | $125,710 | $22,400 | $0 | $148,110 | $148,110 |
| 2017 | $119,720 | $22,400 | $0 | $142,120 | $142,120 |
| 2016 | $99,770 | $22,400 | $0 | $122,170 | $122,170 |
| 2015 | $99,770 | $22,400 | $0 | $122,170 | $122,170 |
| 2014 | $90,700 | $22,400 | $0 | $113,100 | $113,100 |
| 2013 | $90,700 | $22,400 | $0 | $113,100 | $113,100 |
| 2012 | $90,700 | $22,400 | $0 | $0 | $0 |
| 2011 | $100,500 | $22,400 | $0 | $0 | $0 |
| 2010 | $118,300 | $22,400 | $0 | $0 | $0 |
| 2009 | $133,900 | $22,400 | $0 | $0 | $0 |
| 2008 | $133,900 | $22,400 | $0 | $0 | $0 |
| 2007 | $78,500 | $7,500 | $0 | $0 | $0 |
Deed and Sales History
| 1 | 05/14/2021 | SWD | STATUTORY WARRANTY DEED | FLORES JESSE A | ALFARO JENNIFER L | | | $250,000.00 | 141546 | 2021-05794 |
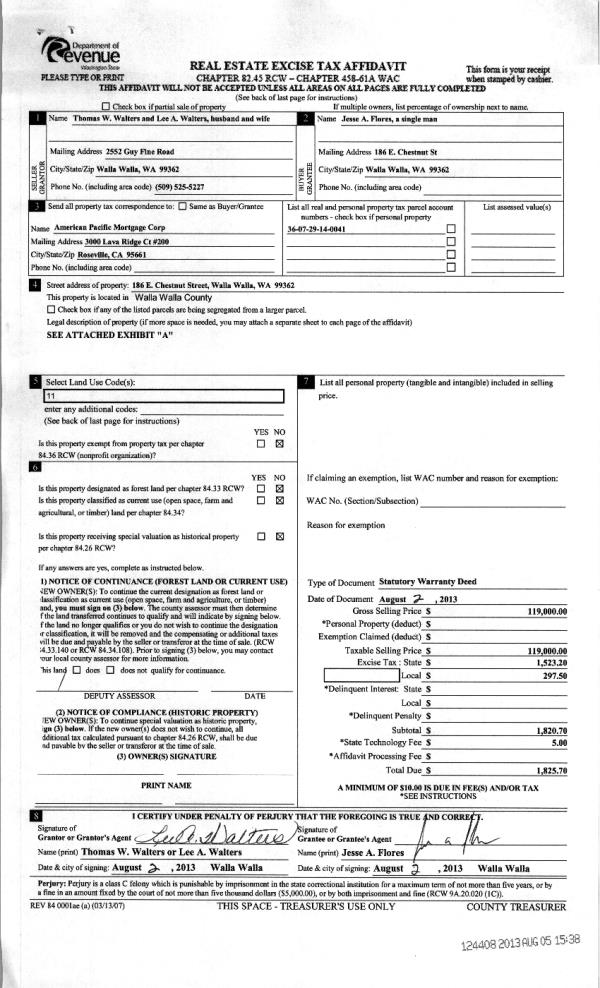
| 2 | 08/05/2013 | WARRANTY D | WARRANTY DEED | WALTERS, THOMAS W & LEE A | FLORES, JESSE A | | | $119,000.00 | 124408 | 2013-07953 |
| 3 | 12/14/2010 | WARRANTY D | WARRANTY DEED | BOUSHEY, TIMOTHY S & ARLENE O | WALTERS, THOMAS W & LEE A | | | $114,000.00 | 119454 | 2010-10300 |
| 4 | 03/19/2004 | WARRANTY D | WARRANTY DEED | FOGG, MICKEY R & LYNETTE A | BOUSHEY, TIMOTHY S & ARLENE O | | | $92,500.00 | 104309 | 2004-02915 |
| 5 | 02/14/1994 | WARRANTY D | WARRANTY DEED | | | | | $53,000.00 | 80127 | 2169-401995 |
Payout Agreement
| No payout information available.. |