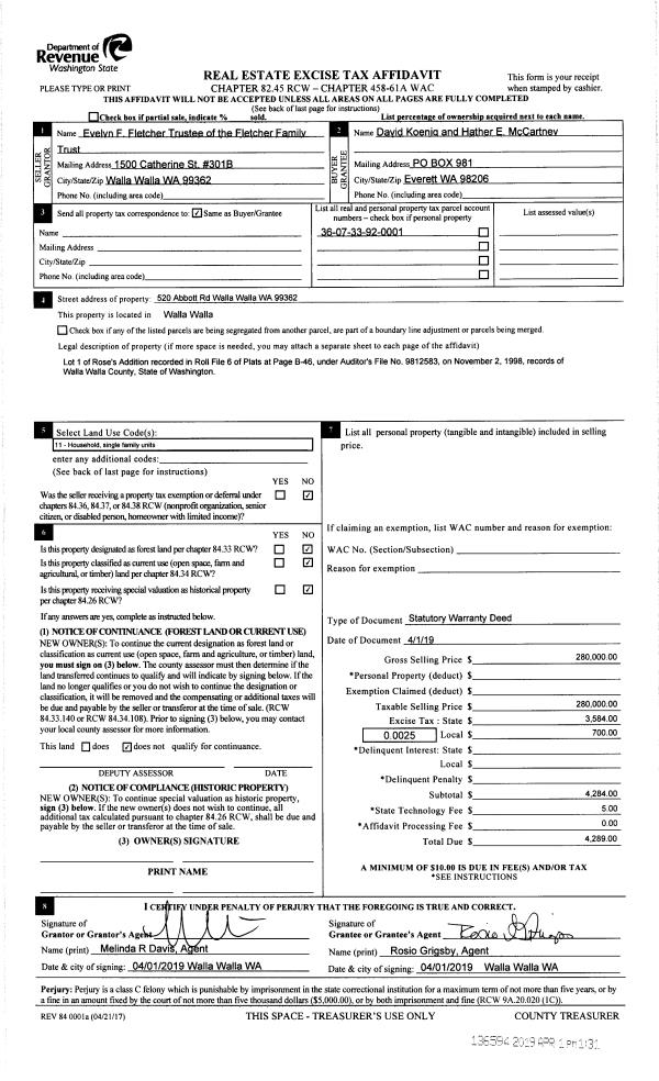
Property
Account |
| Property ID: | 1022 | Abbreviated Legal Description: | ROSE'S ADDN LT 1 |
| Parcel Number: | 360733920001 | Agent Code: | |
| Type: | Real | | |
| Tax Area: | 1 - OL-140-F | Land Use Code | 11 |
| Open Space: | N | DFL | N |
| Historic Property: | N | Remodel Property: | N |
| Multi-Family Redevelopment: | N | | |
| Township: | 7 | Section: | 33 |
| Range: | 36 |
Location |
| Address: | 520 ABBOTT RD WA 99362 | Mapsco: | |
| Neighborhood: | G Res | Map ID: | |
| Neighborhood CD: | 614011 |
Owner |
| Name: | KOENIG DAVID R | Owner ID: | 64901 |
| Mailing Address: | HEATHER E MCCARTNEY PO BOX 981 EVERETT, WA 98206 | % Ownership: | 100.0000000000% |
| | | Exemptions: | |
Taxes and Assessment Details
Property Tax Information as of
02/21/2026
Click on "Statement Details" to expand or collapse a tax statement.
* Please enter a valid date ** Please enter a valid date *
Statement Details |
| | TOTAL: | $0.00 | $0.00 | $0.00 | $0.00 | $0.00 | $0.00 |
|
| | $0.00 | $0.00 | $0.00 | $0.00 | $0.00 | $0.00 |
Values
| (+) Improvement Homesite Value: | + | $0 | |
| (+) Improvement Non-Homesite Value: | + | $304,810 | |
| (+) Land Homesite Value: | + | $0 | |
| (+) Land Non-Homesite Value: | + | $85,000 | |
| (+) Curr Use (HS): | + | $0 | $0 |
| (+) Curr Use (NHS): | + | $0 | $0 |
| | | -------------------------- | |
| (=) Market Value: | = | $389,810 | |
| (–) Productivity Loss: | – | $0 | |
| | | -------------------------- | |
| (=) Subtotal: | = | $389,810 | |
| (+) Senior Appraised Value: | + | $0 | |
| (+) Non-Senior Appraised Value: | + | $389,810 | |
| | | -------------------------- | |
| (=) Total Appraised Value: | = | $389,810 | |
| (–) Senior Exemption Loss: | – | $0 | |
| (–) Exemption Loss: | – | $0 | |
| | | -------------------------- | |
| (=) Taxable Value: | = | $389,810 | |
Taxing Jurisdiction
| Owner: | KOENIG DAVID R | | |
| % Ownership: | 100.0000000000% | | |
| Total Value: | $389,810 | | |
| Tax Area: | 1 - OL-140-F |
| CERFD | CURRENT EXPENSE REFUND 010 | 0.0000000000 | $389,810 | $389,810 | $0.00 | | |
| CURREXP | CURRENT EXPENSE 010 | 1.0175366760 | $389,810 | $389,810 | $396.65 | | |
| HUMNSERV | HUMAN SERVICES 119 | 0.0250000000 | $389,810 | $389,810 | $9.75 | | |
| SLDREL | SOLDIERS RELIEF 121 | 0.0155990005 | $389,810 | $389,810 | $6.08 | | |
| EMERGSER | EMS 147 | 0.3792580840 | $389,810 | $389,810 | $147.84 | | |
| EMSRFD | EMS REFUND 147 | 0.0000000000 | $389,810 | $389,810 | $0.00 | | |
| PORTRFD | PORT REFUND 640 | 0.0000000000 | $389,810 | $389,810 | $0.00 | | |
| PORTWWGEN | PORT OF WW 640 | 0.2460186015 | $389,810 | $389,810 | $95.90 | | |
| SD140BOND | SD #140 BOND 764 | 0.8342371393 | $389,810 | $389,810 | $325.19 | | |
| SD140GEN | SD #140 GENERAL 760 | 2.0646500647 | $389,810 | $389,810 | $804.82 | | |
| ST2 | STATE SCHOOL PART 2 600 | 0.8131451643 | $389,810 | $389,810 | $316.97 | | |
| STATESCHL | STATE SCHOOL 600 | 1.5158548041 | $389,810 | $389,810 | $590.90 | | |
| STREFUND | STATE REFUND LEVY 603 | 0.0000000000 | $389,810 | $389,810 | $0.00 | | |
| CWWBOND | C OF WW BOND 643 | 0.2760494372 | $389,810 | $389,810 | $107.61 | | |
| CWWGEN | CITY OF WW 631 | 1.6100204973 | $389,810 | $389,810 | $627.60 | | |
| CWWRFD | CITY OF WALLA WALLA REFUND 631 | 0.0000000000 | $389,810 | $389,810 | $0.00 | | |
| | Total Tax Rate: | 8.7973694689 | | | | | |
| | | | | Taxes w/Current Exemptions: | $3,429.31 | | |
| | | | | Taxes w/o Exemptions: | $3,429.31 | | |
Improvement / Building
| Improvement #1: | RESIDENTIAL | State Code: | 11 | 1506.0 sqft | Value: | $304,810 |
| Exterior Wall: | PLYWOOD | Heating/Cooling: | WARM & COOLED AIR | | Number of Bathrooms: | 2 | Number of Bedrooms: | 3 | | Plumbing: | 10 | Roof Covering: | COMP SHINGLE |
|
| | Type | Description | Class CD | Sub Class CD | Year Built | Area |
| | MA | Main Area | 1 | 35 | 2001 | 1506.0 |
| | SI1 | SITE IMPROVEMENT | 1 | 35 | 2001 | 3.0 |
| | ATG | Attached Garage | 1 | 35 | 2001 | 480.0 |
| | RPO | OPEN PORCH W/ROOF | 1 | 35 | 2001 | 86.0 |
| | CPC | COVERED CARPORT/PATIO | 1 | 35 | 2006 | 240.0 |
Sketch
Property Image
Land
| 1 | RES 1 | Converted: Residential | 0.2204 | 9601.00 | 0.00 | 0.00 | 1.00 | $85,000 | $0 |
Roll Value History
| 2026 | N/A | N/A | N/A | N/A | N/A |
| 2025 | $304,810 | $115,000 | $0 | $419,810 | $419,810 |
| 2024 | $304,810 | $85,000 | $0 | $389,810 | $389,810 |
| 2023 | $304,810 | $85,000 | $0 | $389,810 | $389,810 |
| 2022 | $290,290 | $75,000 | $0 | $365,290 | $365,290 |
| 2021 | $232,230 | $75,000 | $0 | $307,230 | $307,230 |
| 2020 | $165,880 | $75,000 | $0 | $240,880 | $240,880 |
| 2019 | $165,880 | $75,000 | $0 | $240,880 | $240,880 |
| 2018 | $180,720 | $50,000 | $0 | $230,720 | $230,720 |
| 2017 | $180,720 | $50,000 | $0 | $230,720 | $230,720 |
| 2016 | $150,600 | $50,000 | $0 | $200,600 | $200,600 |
| 2015 | $150,600 | $50,000 | $0 | $200,600 | $200,600 |
| 2014 | $150,600 | $50,000 | $0 | $200,600 | $200,600 |
| 2013 | $150,600 | $50,000 | $0 | $200,600 | $200,600 |
| 2012 | $150,600 | $50,000 | $0 | $0 | $0 |
| 2011 | $156,800 | $50,000 | $0 | $0 | $0 |
| 2010 | $138,000 | $50,000 | $0 | $0 | $0 |
| 2009 | $158,900 | $50,000 | $0 | $0 | $0 |
| 2008 | $158,900 | $50,000 | $0 | $0 | $0 |
| 2007 | $99,900 | $24,300 | $0 | $0 | $0 |
Deed and Sales History
| 1 | 04/01/2019 | SWD | STATUTORY WARRANTY DEED | FLETCHER EUGENE R & EVELYN F TRUSTEES OF | KOENIG DAVID R | | | $280,000.00 | 136594 | 2019-02038 |
| 2 | 10/28/2005 | WARRANTY D | WARRANTY DEED | SPEARS, WILLIAM R | FLETCHER, EUGENE R & EVELYN F | | | $209,000.00 | 108879 | 2005-13593 |
| 3 | 12/04/2002 | QCD | QUIT CLAIM DEED | SPEARS, WILLIAM R | SPEARS, WILLIAM R | | | | 100933 | 2002-13800 |
| 4 | 08/17/2001 | WARRANTY D | WARRANTY DEED | | | | | $124,415.00 | 97854 | 3180-108974 |
Payout Agreement
| No payout information available.. |