Property
Account |
| Property ID: | 10209 | Abbreviated Legal Description: | 29-7-36 TAX 123B |
| Parcel Number: | 360729140021 | Agent Code: | |
| Type: | Real | | |
| Tax Area: | 1 - OL-140-F | Land Use Code | 11 |
| Open Space: | N | DFL | N |
| Historic Property: | N | Remodel Property: | N |
| Multi-Family Redevelopment: | N | | |
| Township: | 7 | Section: | 29 |
| Range: | 36 |
Location |
| Address: | 205 BRYANT AVE WA 99362 | Mapsco: | |
| Neighborhood: | G Res | Map ID: | |
| Neighborhood CD: | 614011 |
Owner |
| Name: | WILKINSON ESTATES LLC | Owner ID: | 70466 |
| Mailing Address: | PO BOX 1425 WALLA WALLA, WA 99362 | % Ownership: | 100.0000000000% |
| | | Exemptions: | |
Taxes and Assessment Details
Property Tax Information as of
02/21/2026
Click on "Statement Details" to expand or collapse a tax statement.
* Please enter a valid date ** Please enter a valid date *
Statement Details |
| | TOTAL: | $0.00 | $0.00 | $0.00 | $0.00 | $0.00 | $0.00 |
|
| | $0.00 | $0.00 | $0.00 | $0.00 | $0.00 | $0.00 |
Values
| (+) Improvement Homesite Value: | + | $0 | |
| (+) Improvement Non-Homesite Value: | + | $419,740 | |
| (+) Land Homesite Value: | + | $0 | |
| (+) Land Non-Homesite Value: | + | $84,130 | |
| (+) Curr Use (HS): | + | $0 | $0 |
| (+) Curr Use (NHS): | + | $0 | $0 |
| | | -------------------------- | |
| (=) Market Value: | = | $503,870 | |
| (–) Productivity Loss: | – | $0 | |
| | | -------------------------- | |
| (=) Subtotal: | = | $503,870 | |
| (+) Senior Appraised Value: | + | $0 | |
| (+) Non-Senior Appraised Value: | + | $503,870 | |
| | | -------------------------- | |
| (=) Total Appraised Value: | = | $503,870 | |
| (–) Senior Exemption Loss: | – | $0 | |
| (–) Exemption Loss: | – | $0 | |
| | | -------------------------- | |
| (=) Taxable Value: | = | $503,870 | |
Taxing Jurisdiction
| Owner: | WILKINSON ESTATES LLC | | |
| % Ownership: | 100.0000000000% | | |
| Total Value: | $503,870 | | |
| Tax Area: | 1 - OL-140-F |
| CERFD | CURRENT EXPENSE REFUND 010 | 0.0000000000 | $503,870 | $503,870 | $0.00 | | |
| CURREXP | CURRENT EXPENSE 010 | 1.0175366760 | $503,870 | $503,870 | $512.71 | | |
| HUMNSERV | HUMAN SERVICES 119 | 0.0250000000 | $503,870 | $503,870 | $12.60 | | |
| SLDREL | SOLDIERS RELIEF 121 | 0.0155990005 | $503,870 | $503,870 | $7.86 | | |
| EMERGSER | EMS 147 | 0.3792580840 | $503,870 | $503,870 | $191.10 | | |
| EMSRFD | EMS REFUND 147 | 0.0000000000 | $503,870 | $503,870 | $0.00 | | |
| PORTRFD | PORT REFUND 640 | 0.0000000000 | $503,870 | $503,870 | $0.00 | | |
| PORTWWGEN | PORT OF WW 640 | 0.2460186015 | $503,870 | $503,870 | $123.96 | | |
| SD140BOND | SD #140 BOND 764 | 0.8342371393 | $503,870 | $503,870 | $420.35 | | |
| SD140GEN | SD #140 GENERAL 760 | 2.0646500647 | $503,870 | $503,870 | $1,040.32 | | |
| ST2 | STATE SCHOOL PART 2 600 | 0.8131451643 | $503,870 | $503,870 | $409.72 | | |
| STATESCHL | STATE SCHOOL 600 | 1.5158548041 | $503,870 | $503,870 | $763.79 | | |
| STREFUND | STATE REFUND LEVY 603 | 0.0000000000 | $503,870 | $503,870 | $0.00 | | |
| CWWBOND | C OF WW BOND 643 | 0.2760494372 | $503,870 | $503,870 | $139.09 | | |
| CWWGEN | CITY OF WW 631 | 1.6100204973 | $503,870 | $503,870 | $811.24 | | |
| CWWRFD | CITY OF WALLA WALLA REFUND 631 | 0.0000000000 | $503,870 | $503,870 | $0.00 | | |
| | Total Tax Rate: | 8.7973694689 | | | | | |
| | | | | Taxes w/Current Exemptions: | $4,432.74 | | |
| | | | | Taxes w/o Exemptions: | $4,432.74 | | |
Improvement / Building
| Improvement #1: | RESIDENTIAL | State Code: | 11 | 2011.0 sqft | Value: | $419,740 |
| Exterior Wall: | METAL/STEEL | Heating/Cooling: | WARM & COOLED AIR | | Number of Bathrooms: | 3 | Number of Bedrooms: | 4 | | Plumbing: | 13 | Roof Covering: | COMP SHINGLE |
|
| | Type | Description | Class CD | Sub Class CD | Year Built | Area |
| | MA | Main Area | 1 | 35 | 1948 | 2011.0 |
| | SI1 | SITE IMPROVEMENT | 1 | 35 | 1948 | 2.5 |
| | BASE | BASEMENT | 1 | 35 | 1948 | 630.0 |
| | BPF | BASEMENT -PARTITIONED FINISH | 1 | 35 | 1948 | 630.0 |
| | RPS | PORCH W/STEPS,ROOF | 1 | 35 | 1948 | 20.0 |
| | WOD | Wood Deck | 1 | 35 | 1948 | 210.0 |
| | S1F | Single One Story Fireplace | 1 | 35 | 1948 | 1.0 |
| | SMP | SWIMMING POOL | 1 | 35 | 1948 | 1.0 |
| | SWP | Solid Wall Porch | 1 | 35 | 1948 | 90.0 |
| | SHOP | SHOP BUILDING | 1 | 35 | 1948 | 576.0 |
Sketch
Property Image
Land
| 1 | RES 1 | Converted: Residential | 0.1931 | 8413.00 | 0.00 | 0.00 | 1.00 | $84,130 | $0 |
Roll Value History
| 2026 | N/A | N/A | N/A | N/A | N/A |
| 2025 | $331,730 | $100,960 | $0 | $432,690 | $432,690 |
| 2024 | $356,780 | $84,130 | $0 | $440,910 | $440,910 |
| 2023 | $419,740 | $84,130 | $0 | $503,870 | $503,870 |
| 2022 | $364,990 | $69,410 | $0 | $434,400 | $434,400 |
| 2021 | $347,610 | $69,410 | $0 | $417,020 | $417,020 |
| 2020 | $267,390 | $69,410 | $0 | $336,800 | $336,800 |
| 2019 | $267,390 | $69,410 | $0 | $336,800 | $336,800 |
| 2018 | $253,200 | $45,800 | $0 | $299,000 | $299,000 |
| 2017 | $253,200 | $45,800 | $0 | $299,000 | $299,000 |
| 2016 | $211,000 | $45,800 | $0 | $256,800 | $256,800 |
| 2015 | $211,000 | $45,800 | $0 | $256,800 | $256,800 |
| 2014 | $211,000 | $45,800 | $0 | $256,800 | $256,800 |
| 2013 | $211,000 | $45,800 | $0 | $256,800 | $256,800 |
| 2012 | $224,500 | $45,800 | $0 | $0 | $0 |
| 2011 | $224,500 | $45,800 | $0 | $0 | $0 |
| 2010 | $189,200 | $45,800 | $0 | $0 | $0 |
| 2009 | $215,300 | $45,800 | $0 | $0 | $0 |
| 2008 | $215,300 | $45,800 | $0 | $0 | $0 |
| 2007 | $191,000 | $23,300 | $0 | $0 | $0 |
Deed and Sales History
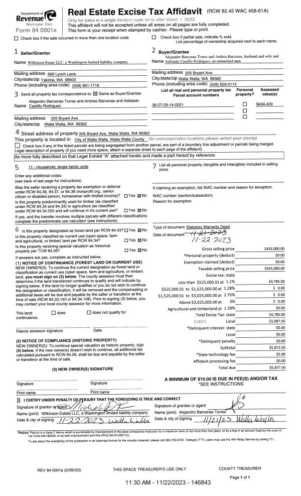
| 1 | 11/22/2023 | SWD | STATUTORY WARRANTY DEED | WILKINSON ESTATES LLC | TORRES ALEJANDRO BARCENAS & ANDREA BARCENAS | | | $435,000.00 | 146843 | 2023-06825 |
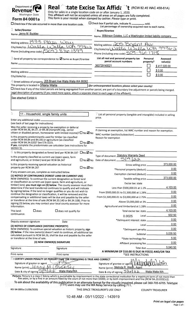
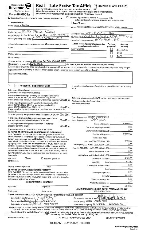
| 2 | 05/11/2022 | SWD | STATUTORY WARRANTY DEED | BUCKLEY JENNY M | WILKINSON ESTATES LLC | | | $373,000.00 | 143919 | 2022-03998 |
| 3 | 05/08/2006 | QCD | QUIT CLAIM DEED | TIDMARSH, LARRY & DONNA | BUCKLEY, JENNY M | | | | 110202 | 2006-05168 |
| 4 | 01/14/2005 | QCD | QUIT CLAIM DEED | BUCKLEY, JOHN T | BUCKLEY, JENNY M | | | | 106599 | 2005-00543 |
| 5 | 01/14/2005 | WARRANTY D | WARRANTY DEED | ALVAREZ, CHRISTINE | BUCKLEY, JENNY M | | | $227,000.00 | 106598 | 2005-00542 |
| 6 | 02/24/2004 | WARRANTY D | WARRANTY DEED | SMITH, B EIRGIL & SHARRON | ALVAREZ, CHRISTINE | | | $189,000.00 | 104115 | 2004-01934 |
| 7 | 11/16/1984 | QCD | QUIT CLAIM DEED | | | | | $65,000.00 | 0 | 1929-108322 |
Payout Agreement
| No payout information available.. |