Property
Account |
| Property ID: | 10181 | Abbreviated Legal Description: | MTN VIEW TAX 1C BLK 46 |
| Parcel Number: | 360728854704 | Agent Code: | |
| Type: | Real | | |
| Tax Area: | 1 - OL-140-F | Land Use Code | 11 |
| Open Space: | N | DFL | N |
| Historic Property: | N | Remodel Property: | N |
| Multi-Family Redevelopment: | N | | |
| Township: | 7 | Section: | 28 |
| Range: | 36 |
Location |
| Address: | 818 E TIETAN ST WA 99362 | Mapsco: | |
| Neighborhood: | G Res | Map ID: | |
| Neighborhood CD: | 614011 |
Owner |
| Name: | HALL BRENTLY H & RACHAEL K OWEN | Owner ID: | 69152 |
| Mailing Address: | 818 E TIETAN ST WALLA WALLA, WA 99362 | % Ownership: | 100.0000000000% |
| | | Exemptions: | |
Taxes and Assessment Details
Values
| (+) Improvement Homesite Value: | + | $0 | |
| (+) Improvement Non-Homesite Value: | + | $467,490 | |
| (+) Land Homesite Value: | + | $0 | |
| (+) Land Non-Homesite Value: | + | $134,440 | |
| (+) Curr Use (HS): | + | $0 | $0 |
| (+) Curr Use (NHS): | + | $0 | $0 |
| | | -------------------------- | |
| (=) Market Value: | = | $601,930 | |
| (–) Productivity Loss: | – | $0 | |
| | | -------------------------- | |
| (=) Subtotal: | = | $601,930 | |
| (+) Senior Appraised Value: | + | $0 | |
| (+) Non-Senior Appraised Value: | + | $601,930 | |
| | | -------------------------- | |
| (=) Total Appraised Value: | = | $601,930 | |
| (–) Senior Exemption Loss: | – | $0 | |
| (–) Exemption Loss: | – | $0 | |
| | | -------------------------- | |
| (=) Taxable Value: | = | $601,930 | |
Taxing Jurisdiction
| Owner: | HALL BRENTLY H & RACHAEL K OWEN | | |
| % Ownership: | 100.0000000000% | | |
| Total Value: | $601,930 | | |
| Tax Area: | 1 - OL-140-F |
| CERFD | CURRENT EXPENSE REFUND 010 | 0.0000000000 | $601,930 | $601,930 | $0.00 | | |
| CURREXP | CURRENT EXPENSE 010 | 1.0175366760 | $601,930 | $601,930 | $612.49 | | |
| HUMNSERV | HUMAN SERVICES 119 | 0.0250000000 | $601,930 | $601,930 | $15.05 | | |
| SLDREL | SOLDIERS RELIEF 121 | 0.0155990005 | $601,930 | $601,930 | $9.39 | | |
| EMERGSER | EMS 147 | 0.3792580840 | $601,930 | $601,930 | $228.29 | | |
| EMSRFD | EMS REFUND 147 | 0.0000000000 | $601,930 | $601,930 | $0.00 | | |
| PORTRFD | PORT REFUND 640 | 0.0000000000 | $601,930 | $601,930 | $0.00 | | |
| PORTWWGEN | PORT OF WW 640 | 0.2460186015 | $601,930 | $601,930 | $148.09 | | |
| SD140BOND | SD #140 BOND 764 | 0.8342371393 | $601,930 | $601,930 | $502.15 | | |
| SD140GEN | SD #140 GENERAL 760 | 2.0646500647 | $601,930 | $601,930 | $1,242.77 | | |
| ST2 | STATE SCHOOL PART 2 600 | 0.8131451643 | $601,930 | $601,930 | $489.46 | | |
| STATESCHL | STATE SCHOOL 600 | 1.5158548041 | $601,930 | $601,930 | $912.44 | | |
| STREFUND | STATE REFUND LEVY 603 | 0.0000000000 | $601,930 | $601,930 | $0.00 | | |
| CWWBOND | C OF WW BOND 643 | 0.2760494372 | $601,930 | $601,930 | $166.16 | | |
| CWWGEN | CITY OF WW 631 | 1.6100204973 | $601,930 | $601,930 | $969.12 | | |
| CWWRFD | CITY OF WALLA WALLA REFUND 631 | 0.0000000000 | $601,930 | $601,930 | $0.00 | | |
| | Total Tax Rate: | 8.7973694689 | | | | | |
| | | | | Taxes w/Current Exemptions: | $5,295.41 | | |
| | | | | Taxes w/o Exemptions: | $5,295.41 | | |
Improvement / Building
| Improvement #1: | RESIDENTIAL | State Code: | 11 | 2736.0 sqft | Value: | $467,490 |
| Exterior Wall: | SIDING | Heating/Cooling: | WARM & COOLED AIR | | Number of Bathrooms: | 3 | Number of Bedrooms: | 3 | | Plumbing: | 11 | Roof Covering: | COMP SHINGLE |
|
| | Type | Description | Class CD | Sub Class CD | Year Built | Area |
| | MA | Main Area | 1 | 35 | 1954 | 2736.0 |
| | SI1 | SITE IMPROVEMENT | 1 | 35 | 1954 | 5.0 |
| | BASE | BASEMENT | 1 | 35 | 1954 | 702.0 |
| | BPF | BASEMENT -PARTITIONED FINISH | 1 | 35 | 1954 | 425.0 |
| | ATG | Attached Garage | 1 | 35 | 1954 | 330.0 |
| | D2F | Double 2 Story Fireplace | 1 | 35 | 1954 | 1.0 |
| | CPC | COVERED CARPORT/PATIO | 1 | 35 | 1954 | 394.0 |
| | SMP | SWIMMING POOL | 1 | 35 | 1954 | 1.0 |
| | CPC | COVERED CARPORT/PATIO | 1 | 35 | 1954 | 182.0 |
| | GUH | GUEST HOUSE | 1 | 35 | 1954 | 940.0 |
| | DTG | Detached Garage | 1 | 35 | 1954 | 540.0 |
| | CPC | COVERED CARPORT/PATIO | 1 | 35 | 1954 | 224.0 |
Sketch
Property Image
Land
| 1 | RES 1 | Converted: Residential | 0.6260 | 27270.00 | 0.00 | 0.00 | 1.00 | $134,440 | $0 |
Roll Value History
| 2026 | N/A | N/A | N/A | N/A | N/A |
| 2025 | $467,890 | $156,530 | $0 | $624,420 | $624,420 |
| 2024 | $467,490 | $134,440 | $0 | $601,930 | $601,930 |
| 2023 | $467,490 | $134,440 | $0 | $601,930 | $601,930 |
| 2022 | $406,520 | $109,080 | $0 | $515,600 | $515,600 |
| 2021 | $406,520 | $109,080 | $0 | $515,600 | $515,600 |
| 2020 | $369,560 | $109,080 | $0 | $478,640 | $478,640 |
| 2019 | $369,560 | $109,080 | $0 | $478,640 | $478,640 |
| 2018 | $360,470 | $61,800 | $0 | $422,270 | $422,270 |
| 2017 | $360,470 | $61,800 | $0 | $422,270 | $422,270 |
| 2016 | $327,700 | $61,800 | $0 | $389,500 | $389,500 |
| 2015 | $327,700 | $61,800 | $0 | $389,500 | $389,500 |
| 2014 | $327,700 | $61,800 | $0 | $389,500 | $389,500 |
| 2013 | $327,700 | $61,800 | $0 | $389,500 | $389,500 |
| 2012 | $335,400 | $61,800 | $0 | $0 | $0 |
| 2011 | $335,400 | $61,800 | $0 | $0 | $0 |
| 2010 | $316,500 | $61,800 | $0 | $0 | $0 |
| 2009 | $338,500 | $61,800 | $0 | $0 | $0 |
| 2008 | $338,500 | $61,800 | $0 | $0 | $0 |
| 2007 | $219,100 | $39,300 | $0 | $0 | $0 |
Deed and Sales History
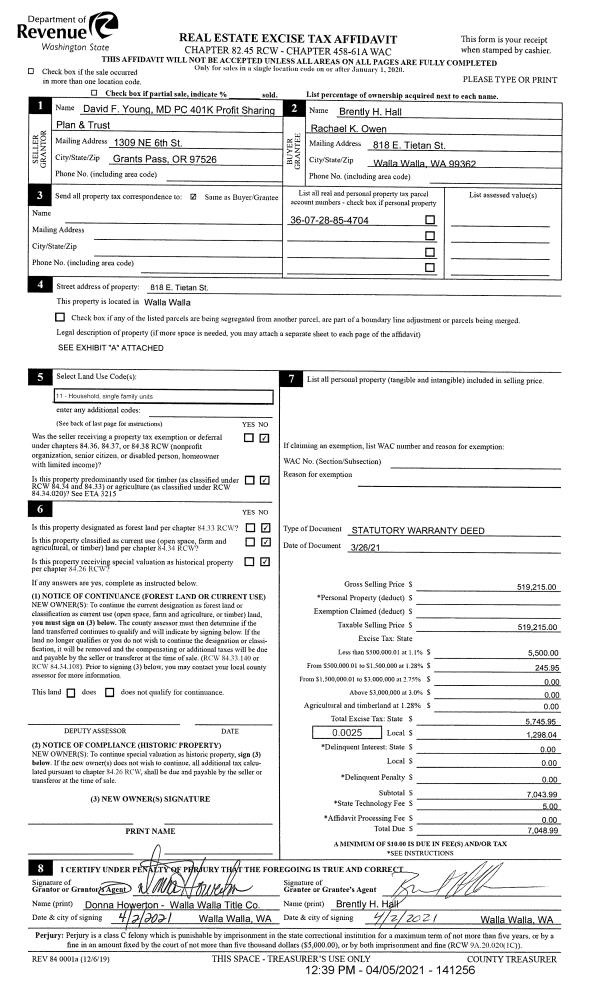
| 1 | 04/05/2021 | SWD | STATUTORY WARRANTY DEED | DAVID F YOUNG MD PC 401K | HALL BRENTLY H & RACHAEL K OWEN | | | $519,215.00 | 141256 | 2021-03909 |
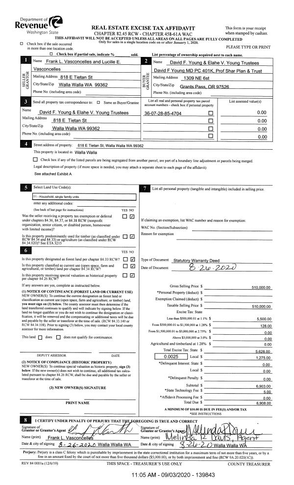
| 2 | 09/03/2020 | SWD | STATUTORY WARRANTY DEED | VASCONCELLES FRANK L & LUCILLE E | DAVID F YOUNG MD PC 401K | | | $510,000.00 | 139843 | 2020-08954 |
| 3 | 03/23/2004 | WARRANTY D | WARRANTY DEED | SPORLEDER, JAMES R & JILL L | VASCONCELLES, FRANK L & LUCILL | | | $319,999.00 | 104335 | 2004-03054 |
| 4 | 11/14/1996 | WARRANTY D | WARRANTY DEED | | | | | $224,000.00 | 87212 | 2469-611402 |
Payout Agreement
| No payout information available.. |