Property
Account |
| Property ID: | 10166 | Abbreviated Legal Description: | MTN VIEW PARCEL #35 BLK 35 |
| Parcel Number: | 360728853535 | Agent Code: | |
| Type: | Real | | |
| Tax Area: | 1 - OL-140-F | Land Use Code | 11 |
| Open Space: | N | DFL | N |
| Historic Property: | N | Remodel Property: | N |
| Multi-Family Redevelopment: | N | | |
| Township: | 7 | Section: | 28 |
| Range: | 36 |
Location |
| Address: | 865 E TIETAN ST WA 99362 | Mapsco: | |
| Neighborhood: | G Res | Map ID: | |
| Neighborhood CD: | 614011 |
Owner |
| Name: | BAEZ RICHARD & SHAMRA L | Owner ID: | 56872 |
| Mailing Address: | 865 E TIETAN ST WALLA WALLA, WA 99362 | % Ownership: | 100.0000000000% |
| | | Exemptions: | |
Taxes and Assessment Details
Property Tax Information as of
02/21/2026
Click on "Statement Details" to expand or collapse a tax statement.
* Please enter a valid date ** Please enter a valid date *
Statement Details |
| | TOTAL: | $0.00 | $0.00 | $0.00 | $0.00 | $0.00 | $0.00 |
|
| | $0.00 | $0.00 | $0.00 | $0.00 | $0.00 | $0.00 |
Values
| (+) Improvement Homesite Value: | + | $0 | |
| (+) Improvement Non-Homesite Value: | + | $448,150 | |
| (+) Land Homesite Value: | + | $0 | |
| (+) Land Non-Homesite Value: | + | $120,700 | |
| (+) Curr Use (HS): | + | $0 | $0 |
| (+) Curr Use (NHS): | + | $0 | $0 |
| | | -------------------------- | |
| (=) Market Value: | = | $568,850 | |
| (–) Productivity Loss: | – | $0 | |
| | | -------------------------- | |
| (=) Subtotal: | = | $568,850 | |
| (+) Senior Appraised Value: | + | $0 | |
| (+) Non-Senior Appraised Value: | + | $568,850 | |
| | | -------------------------- | |
| (=) Total Appraised Value: | = | $568,850 | |
| (–) Senior Exemption Loss: | – | $0 | |
| (–) Exemption Loss: | – | $0 | |
| | | -------------------------- | |
| (=) Taxable Value: | = | $568,850 | |
Taxing Jurisdiction
| Owner: | BAEZ RICHARD & SHAMRA L | | |
| % Ownership: | 100.0000000000% | | |
| Total Value: | $568,850 | | |
| Tax Area: | 1 - OL-140-F |
| CERFD | CURRENT EXPENSE REFUND 010 | 0.0000000000 | $568,850 | $568,850 | $0.00 | | |
| CURREXP | CURRENT EXPENSE 010 | 1.0175366760 | $568,850 | $568,850 | $578.83 | | |
| HUMNSERV | HUMAN SERVICES 119 | 0.0250000000 | $568,850 | $568,850 | $14.22 | | |
| SLDREL | SOLDIERS RELIEF 121 | 0.0155990005 | $568,850 | $568,850 | $8.87 | | |
| EMERGSER | EMS 147 | 0.3792580840 | $568,850 | $568,850 | $215.74 | | |
| EMSRFD | EMS REFUND 147 | 0.0000000000 | $568,850 | $568,850 | $0.00 | | |
| PORTRFD | PORT REFUND 640 | 0.0000000000 | $568,850 | $568,850 | $0.00 | | |
| PORTWWGEN | PORT OF WW 640 | 0.2460186015 | $568,850 | $568,850 | $139.95 | | |
| SD140BOND | SD #140 BOND 764 | 0.8342371393 | $568,850 | $568,850 | $474.56 | | |
| SD140GEN | SD #140 GENERAL 760 | 2.0646500647 | $568,850 | $568,850 | $1,174.48 | | |
| ST2 | STATE SCHOOL PART 2 600 | 0.8131451643 | $568,850 | $568,850 | $462.56 | | |
| STATESCHL | STATE SCHOOL 600 | 1.5158548041 | $568,850 | $568,850 | $862.29 | | |
| STREFUND | STATE REFUND LEVY 603 | 0.0000000000 | $568,850 | $568,850 | $0.00 | | |
| CWWBOND | C OF WW BOND 643 | 0.2760494372 | $568,850 | $568,850 | $157.03 | | |
| CWWGEN | CITY OF WW 631 | 1.6100204973 | $568,850 | $568,850 | $915.86 | | |
| CWWRFD | CITY OF WALLA WALLA REFUND 631 | 0.0000000000 | $568,850 | $568,850 | $0.00 | | |
| | Total Tax Rate: | 8.7973694689 | | | | | |
| | | | | Taxes w/Current Exemptions: | $5,004.39 | | |
| | | | | Taxes w/o Exemptions: | $5,004.39 | | |
Improvement / Building
| Improvement #1: | RESIDENTIAL | State Code: | 11 | 3112.0 sqft | Value: | $448,150 |
| Exterior Wall: | PLYWOOD | Foundation: | SLAB FOUNDATION | | Heating/Cooling: | WARM & COOLED AIR | Number of Bathrooms: | 3 | | Number of Bedrooms: | 5 | Plumbing: | 13 | | Roof Covering: | COMP SHINGLE |   |   |
|
| | Type | Description | Class CD | Sub Class CD | Year Built | Area |
| | MA | Main Area | 3 | 35 | 1978 | 3112.0 |
| | SI1 | SITE IMPROVEMENT | 3 | 35 | 1978 | 3.5 |
| | UPFL | Upper Floor (included in main area) | 3 | 35 | 1978 | 1170.0 |
| | ATG | Attached Garage | 3 | 35 | 1978 | 572.0 |
| | WOD | Wood Deck | 3 | 35 | 1978 | 409.0 |
| | S1F | Single One Story Fireplace | 3 | 35 | 1978 | 1.0 |
| | RPC | OPEN PORCH W/ROOF , CEILED | 3 | 35 | 1978 | 48.0 |
| | OUT | OUTSIDE BASEMENT ENTRY | 3 | 35 | 1978 | 1.0 |
| | SOLR | SOLAR POWER PANELS | 1 | 35 | 1978 | 36.0 |
Sketch
Property Image
Land
| 1 | RES 1 | Converted: Residential | 0.2898 | 12625.00 | 0.00 | 0.00 | 1.00 | $120,700 | $0 |
Roll Value History
| 2026 | N/A | N/A | N/A | N/A | N/A |
| 2025 | $437,280 | $144,560 | $0 | $581,840 | $581,840 |
| 2024 | $448,150 | $120,700 | $0 | $568,850 | $568,850 |
| 2023 | $448,150 | $120,700 | $0 | $568,850 | $568,850 |
| 2022 | $448,150 | $99,490 | $0 | $547,640 | $547,640 |
| 2021 | $309,070 | $99,490 | $0 | $408,560 | $408,560 |
| 2020 | $193,170 | $99,490 | $0 | $292,660 | $292,660 |
| 2019 | $193,170 | $99,490 | $0 | $292,660 | $292,660 |
| 2018 | $243,710 | $49,400 | $0 | $293,110 | $293,110 |
| 2017 | $243,710 | $49,400 | $0 | $293,110 | $293,110 |
| 2016 | $232,100 | $49,400 | $0 | $281,500 | $281,500 |
| 2015 | $232,100 | $49,400 | $0 | $281,500 | $281,500 |
| 2014 | $211,000 | $49,400 | $0 | $260,400 | $260,400 |
| 2013 | $211,000 | $49,400 | $0 | $260,400 | $260,400 |
| 2012 | $211,000 | $49,400 | $0 | $0 | $0 |
| 2011 | $211,000 | $49,400 | $0 | $0 | $0 |
| 2010 | $211,000 | $49,400 | $0 | $0 | $0 |
| 2009 | $239,900 | $49,400 | $0 | $0 | $0 |
| 2008 | $239,900 | $49,400 | $0 | $0 | $0 |
| 2007 | $185,200 | $26,900 | $0 | $0 | $0 |
Deed and Sales History
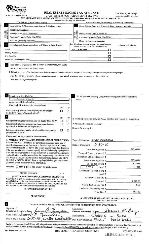
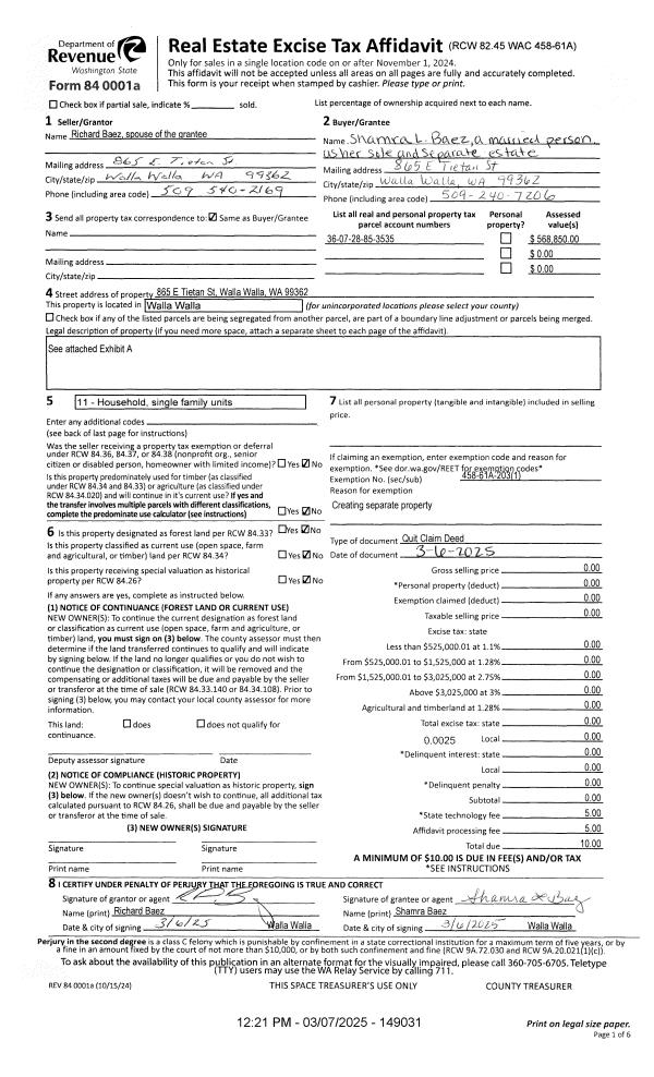
| 1 | 03/07/2025 | QCD | QUIT CLAIM DEED | BAEZ RICHARD & SHAMRA L | BAEZ SHAMRA L | | | | 149031 | 2025-01193 |
| 2 | 06/30/2015 | SWD | STATUTORY WARRANTY DEED | HODGSON JEANNE A | BAEZ RICHARD & SHAMRA L | | | $296,000.00 | 128296 | 2015-05561 |
| 3 | 08/13/2001 | WARRANTY D | WARRANTY DEED | | | | | $210,000.00 | 97812 | 3180-108717 |
Payout Agreement
| No payout information available.. |