Property
Account |
| Property ID: | 10159 | Abbreviated Legal Description: | MTN VIEW TAX 1 BLK 23 |
| Parcel Number: | 360728852301 | Agent Code: | |
| Type: | Real | | |
| Tax Area: | 1 - OL-140-F | Land Use Code | 11 |
| Open Space: | N | DFL | N |
| Historic Property: | N | Remodel Property: | N |
| Multi-Family Redevelopment: | N | | |
| Township: | 7 | Section: | 28 |
| Range: | 36 |
Location |
| Address: | 506 SHERIDAN RD WA 99362 | Mapsco: | |
| Neighborhood: | A Res | Map ID: | |
| Neighborhood CD: | 613011 |
Owner |
| Name: | AUSTIN TODD DAVID | Owner ID: | 11952 |
| Mailing Address: | 6072 BISCUIT RIDGE RD WAITSBURG, WA 99361 | % Ownership: | 100.0000000000% |
| | | Exemptions: | |
Taxes and Assessment Details
Values
| (+) Improvement Homesite Value: | + | $0 | |
| (+) Improvement Non-Homesite Value: | + | $280,920 | |
| (+) Land Homesite Value: | + | $0 | |
| (+) Land Non-Homesite Value: | + | $81,900 | |
| (+) Curr Use (HS): | + | $0 | $0 |
| (+) Curr Use (NHS): | + | $0 | $0 |
| | | -------------------------- | |
| (=) Market Value: | = | $362,820 | |
| (–) Productivity Loss: | – | $0 | |
| | | -------------------------- | |
| (=) Subtotal: | = | $362,820 | |
| (+) Senior Appraised Value: | + | $0 | |
| (+) Non-Senior Appraised Value: | + | $362,820 | |
| | | -------------------------- | |
| (=) Total Appraised Value: | = | $362,820 | |
| (–) Senior Exemption Loss: | – | $0 | |
| (–) Exemption Loss: | – | $0 | |
| | | -------------------------- | |
| (=) Taxable Value: | = | $362,820 | |
Taxing Jurisdiction
| Owner: | AUSTIN TODD DAVID | | |
| % Ownership: | 100.0000000000% | | |
| Total Value: | $362,820 | | |
| Tax Area: | 1 - OL-140-F |
| CERFD | CURRENT EXPENSE REFUND 010 | 0.0000000000 | $362,820 | $362,820 | $0.00 | | |
| CURREXP | CURRENT EXPENSE 010 | 1.0175366760 | $362,820 | $362,820 | $369.18 | | |
| HUMNSERV | HUMAN SERVICES 119 | 0.0250000000 | $362,820 | $362,820 | $9.07 | | |
| SLDREL | SOLDIERS RELIEF 121 | 0.0155990005 | $362,820 | $362,820 | $5.66 | | |
| EMERGSER | EMS 147 | 0.3792580840 | $362,820 | $362,820 | $137.60 | | |
| EMSRFD | EMS REFUND 147 | 0.0000000000 | $362,820 | $362,820 | $0.00 | | |
| PORTRFD | PORT REFUND 640 | 0.0000000000 | $362,820 | $362,820 | $0.00 | | |
| PORTWWGEN | PORT OF WW 640 | 0.2460186015 | $362,820 | $362,820 | $89.26 | | |
| SD140BOND | SD #140 BOND 764 | 0.8342371393 | $362,820 | $362,820 | $302.68 | | |
| SD140GEN | SD #140 GENERAL 760 | 2.0646500647 | $362,820 | $362,820 | $749.10 | | |
| ST2 | STATE SCHOOL PART 2 600 | 0.8131451643 | $362,820 | $362,820 | $295.03 | | |
| STATESCHL | STATE SCHOOL 600 | 1.5158548041 | $362,820 | $362,820 | $549.98 | | |
| STREFUND | STATE REFUND LEVY 603 | 0.0000000000 | $362,820 | $362,820 | $0.00 | | |
| CWWBOND | C OF WW BOND 643 | 0.2760494372 | $362,820 | $362,820 | $100.16 | | |
| CWWGEN | CITY OF WW 631 | 1.6100204973 | $362,820 | $362,820 | $584.15 | | |
| CWWRFD | CITY OF WALLA WALLA REFUND 631 | 0.0000000000 | $362,820 | $362,820 | $0.00 | | |
| | Total Tax Rate: | 8.7973694689 | | | | | |
| | | | | Taxes w/Current Exemptions: | $3,191.87 | | |
| | | | | Taxes w/o Exemptions: | $3,191.87 | | |
Improvement / Building
| Improvement #1: | RESIDENTIAL | State Code: | 11 | 1125.0 sqft | Value: | $280,920 |
| Exterior Wall: | SIDING | Heating/Cooling: | WARM & COOLED AIR | | Number of Bathrooms: | 1 | Number of Bedrooms: | 4 | | Plumbing: | 6 | Roof Covering: | COMP SHINGLE |
|
| | Type | Description | Class CD | Sub Class CD | Year Built | Area |
| | MA | Main Area | 1 | 30 | 1951 | 1125.0 |
| | SI1 | SITE IMPROVEMENT | 1 | 30 | 1951 | 2.5 |
| | BASE | BASEMENT | 1 | 30 | 1951 | 1125.0 |
| | BPF | BASEMENT -PARTITIONED FINISH | 1 | 30 | 1951 | 844.0 |
| | DTG | Detached Garage | 1 | 30 | 1951 | 308.0 |
| | S1F | Single One Story Fireplace | 1 | 30 | 1951 | 1.0 |
| | CPC | COVERED CARPORT/PATIO | 1 | 30 | 1951 | 360.0 |
| | PRC | PORCH W STEPS, ROOF,CEILED | 1 | 30 | 1951 | 30.0 |
Sketch
Property Image
Land
| 1 | RES 1 | Converted: Residential | 0.2089 | 9100.00 | 0.00 | 0.00 | 1.00 | $81,900 | $0 |
Roll Value History
| 2026 | N/A | N/A | N/A | N/A | N/A |
| 2025 | $267,700 | $100,100 | $0 | $367,800 | $367,800 |
| 2024 | $280,920 | $81,900 | $0 | $362,820 | $362,820 |
| 2023 | $280,920 | $81,900 | $0 | $362,820 | $362,820 |
| 2022 | $267,540 | $65,980 | $0 | $333,520 | $333,520 |
| 2021 | $198,180 | $65,980 | $0 | $264,160 | $264,160 |
| 2020 | $165,150 | $65,980 | $0 | $231,130 | $231,130 |
| 2019 | $165,150 | $65,980 | $0 | $231,130 | $231,130 |
| 2018 | $155,520 | $46,400 | $0 | $201,920 | $201,920 |
| 2017 | $129,600 | $46,400 | $0 | $176,000 | $176,000 |
| 2016 | $129,600 | $46,400 | $0 | $176,000 | $176,000 |
| 2015 | $129,600 | $46,400 | $0 | $176,000 | $176,000 |
| 2014 | $129,600 | $46,400 | $0 | $176,000 | $176,000 |
| 2013 | $129,600 | $46,400 | $0 | $176,000 | $176,000 |
| 2012 | $146,100 | $46,400 | $0 | $0 | $0 |
| 2011 | $146,100 | $46,400 | $0 | $0 | $0 |
| 2010 | $121,000 | $46,400 | $0 | $0 | $0 |
| 2009 | $139,600 | $46,400 | $0 | $0 | $0 |
| 2008 | $139,600 | $46,400 | $0 | $0 | $0 |
| 2007 | $92,600 | $23,900 | $0 | $0 | $0 |
Deed and Sales History
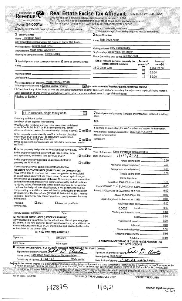
| 1 | 11/15/2021 | DPR | DEED OF PERSONAL REPRESENTATIVE | AUSTIN NANCY GAIL ESTATE OF | AUSTIN TODD DAVID | | | $0.00 | 142875 | 2021-13613 |
| 2 | 11/29/1974 | WARRANTY D | WARRANTY DEED | | | | | $17,500.00 | 64271 | 3110-460183 |
Payout Agreement
| No payout information available.. |