Property
Account |
| Property ID: | 10158 | Abbreviated Legal Description: | MTN VIEW TAX 1 BLK 18 LESS ST |
| Parcel Number: | 360728851818 | Agent Code: | |
| Type: | Real | | |
| Tax Area: | 1 - OL-140-F | Land Use Code | 11 |
| Open Space: | N | DFL | N |
| Historic Property: | N | Remodel Property: | N |
| Multi-Family Redevelopment: | N | | |
| Township: | 7 | Section: | 28 |
| Range: | 36 |
Location |
| Address: | 1704 FERN AVE WA 99362 | Mapsco: | |
| Neighborhood: | G Res | Map ID: | |
| Neighborhood CD: | 614011 |
Owner |
| Name: | WILKINSON ADAM & BRETT | Owner ID: | 65942 |
| Mailing Address: | 1704 FERN AVE WALLA WALLA, WA 99362 | % Ownership: | 100.0000000000% |
| | | Exemptions: | |
Taxes and Assessment Details
Values
| (+) Improvement Homesite Value: | + | $0 | |
| (+) Improvement Non-Homesite Value: | + | $488,540 | |
| (+) Land Homesite Value: | + | $0 | |
| (+) Land Non-Homesite Value: | + | $120,900 | |
| (+) Curr Use (HS): | + | $0 | $0 |
| (+) Curr Use (NHS): | + | $0 | $0 |
| | | -------------------------- | |
| (=) Market Value: | = | $609,440 | |
| (–) Productivity Loss: | – | $0 | |
| | | -------------------------- | |
| (=) Subtotal: | = | $609,440 | |
| (+) Senior Appraised Value: | + | $0 | |
| (+) Non-Senior Appraised Value: | + | $609,440 | |
| | | -------------------------- | |
| (=) Total Appraised Value: | = | $609,440 | |
| (–) Senior Exemption Loss: | – | $0 | |
| (–) Exemption Loss: | – | $0 | |
| | | -------------------------- | |
| (=) Taxable Value: | = | $609,440 | |
Taxing Jurisdiction
| Owner: | WILKINSON ADAM & BRETT | | |
| % Ownership: | 100.0000000000% | | |
| Total Value: | $609,440 | | |
| Tax Area: | 1 - OL-140-F |
| CERFD | CURRENT EXPENSE REFUND 010 | 0.0000000000 | $609,440 | $609,440 | $0.00 | | |
| CURREXP | CURRENT EXPENSE 010 | 1.0175366760 | $609,440 | $609,440 | $620.13 | | |
| HUMNSERV | HUMAN SERVICES 119 | 0.0250000000 | $609,440 | $609,440 | $15.24 | | |
| SLDREL | SOLDIERS RELIEF 121 | 0.0155990005 | $609,440 | $609,440 | $9.51 | | |
| EMERGSER | EMS 147 | 0.3792580840 | $609,440 | $609,440 | $231.14 | | |
| EMSRFD | EMS REFUND 147 | 0.0000000000 | $609,440 | $609,440 | $0.00 | | |
| PORTRFD | PORT REFUND 640 | 0.0000000000 | $609,440 | $609,440 | $0.00 | | |
| PORTWWGEN | PORT OF WW 640 | 0.2460186015 | $609,440 | $609,440 | $149.93 | | |
| SD140BOND | SD #140 BOND 764 | 0.8342371393 | $609,440 | $609,440 | $508.42 | | |
| SD140GEN | SD #140 GENERAL 760 | 2.0646500647 | $609,440 | $609,440 | $1,258.28 | | |
| ST2 | STATE SCHOOL PART 2 600 | 0.8131451643 | $609,440 | $609,440 | $495.56 | | |
| STATESCHL | STATE SCHOOL 600 | 1.5158548041 | $609,440 | $609,440 | $923.82 | | |
| STREFUND | STATE REFUND LEVY 603 | 0.0000000000 | $609,440 | $609,440 | $0.00 | | |
| CWWBOND | C OF WW BOND 643 | 0.2760494372 | $609,440 | $609,440 | $168.24 | | |
| CWWGEN | CITY OF WW 631 | 1.6100204973 | $609,440 | $609,440 | $981.21 | | |
| CWWRFD | CITY OF WALLA WALLA REFUND 631 | 0.0000000000 | $609,440 | $609,440 | $0.00 | | |
| | Total Tax Rate: | 8.7973694689 | | | | | |
| | | | | Taxes w/Current Exemptions: | $5,361.48 | | |
| | | | | Taxes w/o Exemptions: | $5,361.48 | | |
Improvement / Building
| Improvement #1: | RESIDENTIAL | State Code: | 11 | 2530.0 sqft | Value: | $488,540 |
| Exterior Wall: | PLYWOOD | Heating/Cooling: | HEAT PUMP | | Number of Bathrooms: | 2 | Number of Bedrooms: | 4 | | Plumbing: | 15 | Roof Covering: | COMP SHINGLE |
|
| | Type | Description | Class CD | Sub Class CD | Year Built | Area |
| | MA | Main Area | 1 | 40 | 1985 | 2530.0 |
| | SI1 | SITE IMPROVEMENT | 1 | 40 | 1985 | 3.0 |
| | BASE | BASEMENT | 1 | 40 | 1985 | 986.0 |
| | BPF | BASEMENT -PARTITIONED FINISH | 1 | 40 | 1985 | 986.0 |
| | ATG | Attached Garage | 1 | 40 | 1985 | 576.0 |
| | OPS | OPEN PORCH W/STEPS | 1 | 40 | 1985 | 30.0 |
| | D2F | Double 2 Story Fireplace | 1 | 40 | 1985 | 1.0 |
| | CPC | COVERED CARPORT/PATIO | 1 | 40 | 1985 | 232.0 |
Sketch
Property Image
Land
| 1 | RES 1 | Converted: Residential | 0.2984 | 13000.00 | 0.00 | 0.00 | 1.00 | $120,900 | $0 |
Roll Value History
| 2026 | N/A | N/A | N/A | N/A | N/A |
| 2025 | $267,130 | $144,820 | $0 | $411,950 | $411,950 |
| 2024 | $347,800 | $120,900 | $0 | $468,700 | $468,700 |
| 2023 | $488,540 | $120,900 | $0 | $609,440 | $609,440 |
| 2022 | $488,540 | $99,710 | $0 | $588,250 | $588,250 |
| 2021 | $305,340 | $99,710 | $0 | $405,050 | $405,050 |
| 2020 | $305,340 | $99,710 | $0 | $405,050 | $405,050 |
| 2019 | $305,340 | $99,710 | $0 | $405,050 | $405,050 |
| 2018 | $303,080 | $49,700 | $0 | $352,780 | $352,780 |
| 2017 | $288,650 | $49,700 | $0 | $338,350 | $338,350 |
| 2016 | $274,900 | $49,700 | $0 | $324,600 | $324,600 |
| 2015 | $274,900 | $49,700 | $0 | $324,600 | $324,600 |
| 2014 | $274,900 | $49,700 | $0 | $324,600 | $324,600 |
| 2013 | $274,900 | $49,700 | $0 | $324,600 | $324,600 |
| 2012 | $274,900 | $49,700 | $0 | $0 | $0 |
| 2011 | $274,900 | $49,700 | $0 | $0 | $0 |
| 2010 | $245,400 | $49,700 | $0 | $0 | $0 |
| 2009 | $295,500 | $49,700 | $0 | $0 | $0 |
| 2008 | $295,500 | $49,700 | $0 | $0 | $0 |
| 2007 | $166,500 | $27,200 | $0 | $0 | $0 |
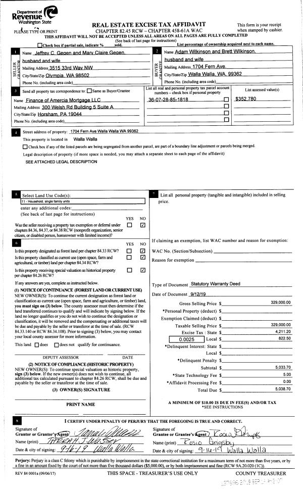
Deed and Sales History
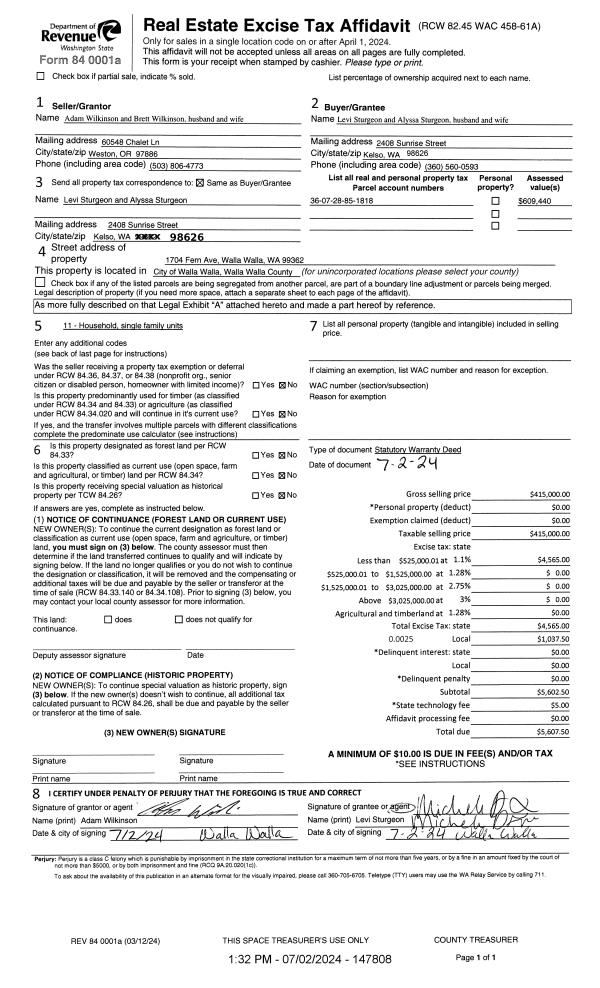
| 1 | 07/02/2024 | SWD | STATUTORY WARRANTY DEED | WILKINSON ADAM & BRETT | STURGEON LEVI & ALYSSA | | | $415,000.00 | 147808 | 2024-03552 |
| 2 | 09/16/2019 | SWD | STATUTORY WARRANTY DEED | GEGEN JEFFREY C & MARY CLAIRE | WILKINSON ADAM & BRETT | | | $329,000.00 | 137686 | 2019-07185 |
| 3 | 08/07/2007 | WARRANTY D | WARRANTY DEED | PAUTLER, MATILDA M AN UNMARRIE | GEGEN, JEFFREY C & MARY CLAIRE | | | $340,000.00 | 113462 | 2007-09184 |
| 4 | 11/29/1983 | WARRANTY D | WARRANTY DEED | | | | | $19,000.00 | 0 | 1418-308499 |
Payout Agreement
| No payout information available.. |