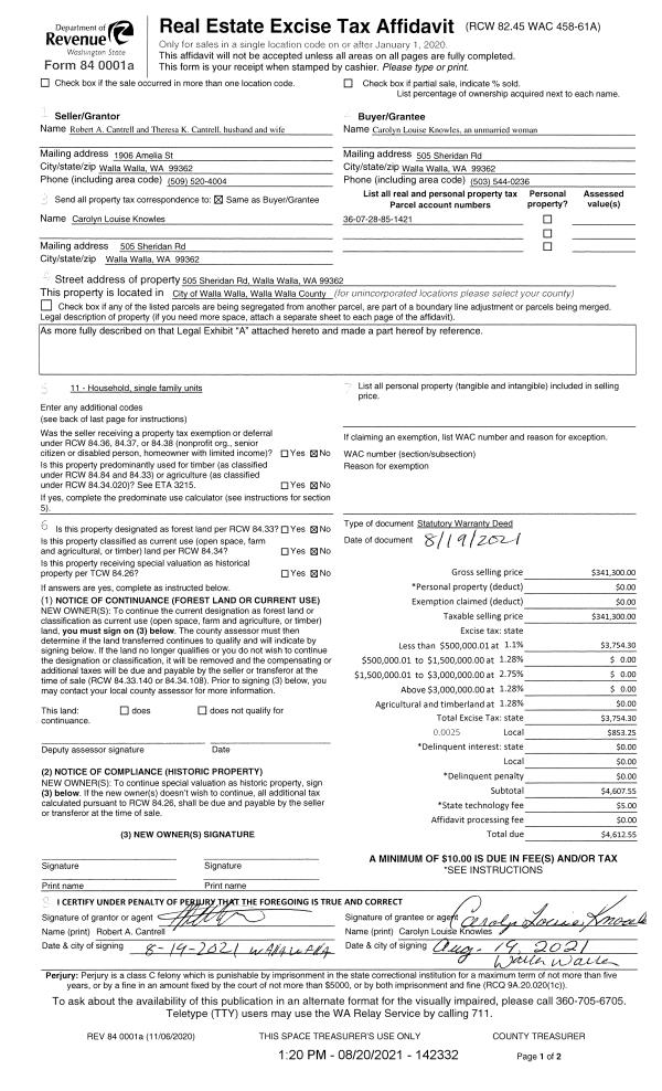
Property
Account |
| Property ID: | 10151 | Abbreviated Legal Description: | MTN VIEW LOTS 19 AND 20 BLK 14 AND 10' VAC ON S LESS N 60' |
| Parcel Number: | 360728851421 | Agent Code: | |
| Type: | Real | | |
| Tax Area: | 1 - OL-140-F | Land Use Code | 11 |
| Open Space: | N | DFL | N |
| Historic Property: | N | Remodel Property: | N |
| Multi-Family Redevelopment: | N | | |
| Township: | 7 | Section: | 28 |
| Range: | 36 |
Location |
| Address: | 505 SHERIDAN RD WA 99362 | Mapsco: | |
| Neighborhood: | A Res | Map ID: | |
| Neighborhood CD: | 613011 |
Owner |
| Name: | KNOWLES CAROLYN LOUISE | Owner ID: | 70143 |
| Mailing Address: | 505 SHERIDAN RD WALLA WALLA, WA 99362 | % Ownership: | 100.0000000000% |
| | | Exemptions: | |
Taxes and Assessment Details
Values
| (+) Improvement Homesite Value: | + | $0 | |
| (+) Improvement Non-Homesite Value: | + | $287,610 | |
| (+) Land Homesite Value: | + | $0 | |
| (+) Land Non-Homesite Value: | + | $63,000 | |
| (+) Curr Use (HS): | + | $0 | $0 |
| (+) Curr Use (NHS): | + | $0 | $0 |
| | | -------------------------- | |
| (=) Market Value: | = | $350,610 | |
| (–) Productivity Loss: | – | $0 | |
| | | -------------------------- | |
| (=) Subtotal: | = | $350,610 | |
| (+) Senior Appraised Value: | + | $0 | |
| (+) Non-Senior Appraised Value: | + | $350,610 | |
| | | -------------------------- | |
| (=) Total Appraised Value: | = | $350,610 | |
| (–) Senior Exemption Loss: | – | $0 | |
| (–) Exemption Loss: | – | $0 | |
| | | -------------------------- | |
| (=) Taxable Value: | = | $350,610 | |
Taxing Jurisdiction
| Owner: | KNOWLES CAROLYN LOUISE | | |
| % Ownership: | 100.0000000000% | | |
| Total Value: | $350,610 | | |
| Tax Area: | 1 - OL-140-F |
| CERFD | CURRENT EXPENSE REFUND 010 | 0.0000000000 | $350,610 | $350,610 | $0.00 | | |
| CURREXP | CURRENT EXPENSE 010 | 1.0175366760 | $350,610 | $350,610 | $356.76 | | |
| HUMNSERV | HUMAN SERVICES 119 | 0.0250000000 | $350,610 | $350,610 | $8.77 | | |
| SLDREL | SOLDIERS RELIEF 121 | 0.0155990005 | $350,610 | $350,610 | $5.47 | | |
| EMERGSER | EMS 147 | 0.3792580840 | $350,610 | $350,610 | $132.97 | | |
| EMSRFD | EMS REFUND 147 | 0.0000000000 | $350,610 | $350,610 | $0.00 | | |
| PORTRFD | PORT REFUND 640 | 0.0000000000 | $350,610 | $350,610 | $0.00 | | |
| PORTWWGEN | PORT OF WW 640 | 0.2460186015 | $350,610 | $350,610 | $86.26 | | |
| SD140BOND | SD #140 BOND 764 | 0.8342371393 | $350,610 | $350,610 | $292.49 | | |
| SD140GEN | SD #140 GENERAL 760 | 2.0646500647 | $350,610 | $350,610 | $723.89 | | |
| ST2 | STATE SCHOOL PART 2 600 | 0.8131451643 | $350,610 | $350,610 | $285.10 | | |
| STATESCHL | STATE SCHOOL 600 | 1.5158548041 | $350,610 | $350,610 | $531.47 | | |
| STREFUND | STATE REFUND LEVY 603 | 0.0000000000 | $350,610 | $350,610 | $0.00 | | |
| CWWBOND | C OF WW BOND 643 | 0.2760494372 | $350,610 | $350,610 | $96.79 | | |
| CWWGEN | CITY OF WW 631 | 1.6100204973 | $350,610 | $350,610 | $564.49 | | |
| CWWRFD | CITY OF WALLA WALLA REFUND 631 | 0.0000000000 | $350,610 | $350,610 | $0.00 | | |
| | Total Tax Rate: | 8.7973694689 | | | | | |
| | | | | Taxes w/Current Exemptions: | $3,084.46 | | |
| | | | | Taxes w/o Exemptions: | $3,084.46 | | |
Improvement / Building
| Improvement #1: | RESIDENTIAL | State Code: | 11 | 1349.0 sqft | Value: | $287,610 |
| Exterior Wall: | SIDING | Heating/Cooling: | WARM & COOLED AIR | | Number of Bathrooms: | 1 | Number of Bedrooms: | 3 | | Plumbing: | 8 | Roof Covering: | COMP SHINGLE |
|
| | Type | Description | Class CD | Sub Class CD | Year Built | Area |
| | MA | Main Area | 1 | 30 | 1951 | 1349.0 |
| | SI1 | SITE IMPROVEMENT | 1 | 30 | 1951 | 2.0 |
| | BASE | BASEMENT | 1 | 30 | 1951 | 646.0 |
| | CPCG | CARPORT/ GABLE ROOF | 1 | 30 | 1951 | 308.0 |
| | CPC | COVERED CARPORT/PATIO | 1 | 30 | 1951 | 192.0 |
| | RPC | OPEN PORCH W/ROOF , CEILED | 1 | 30 | 1951 | 44.0 |
Sketch
Property Image
Land
| 1 | RES 1 | Converted: Residential | 0.1607 | 7000.00 | 0.00 | 0.00 | 1.00 | $63,000 | $0 |
Roll Value History
| 2026 | N/A | N/A | N/A | N/A | N/A |
| 2025 | $285,610 | $77,000 | $0 | $362,610 | $362,610 |
| 2024 | $287,610 | $63,000 | $0 | $350,610 | $350,610 |
| 2023 | $287,610 | $63,000 | $0 | $350,610 | $350,610 |
| 2022 | $287,610 | $50,750 | $0 | $338,360 | $338,360 |
| 2021 | $198,350 | $50,750 | $0 | $249,100 | $249,100 |
| 2020 | $141,680 | $50,750 | $0 | $192,430 | $192,430 |
| 2019 | $141,680 | $50,750 | $0 | $192,430 | $192,430 |
| 2018 | $150,410 | $42,000 | $0 | $192,410 | $192,410 |
| 2017 | $130,790 | $42,000 | $0 | $172,790 | $172,790 |
| 2016 | $118,900 | $42,000 | $0 | $160,900 | $160,900 |
| 2015 | $118,900 | $42,000 | $0 | $160,900 | $160,900 |
| 2014 | $118,900 | $42,000 | $0 | $160,900 | $160,900 |
| 2013 | $118,900 | $42,000 | $0 | $160,900 | $160,900 |
| 2012 | $131,200 | $42,000 | $0 | $0 | $0 |
| 2011 | $131,200 | $42,000 | $0 | $0 | $0 |
| 2010 | $108,600 | $42,000 | $0 | $0 | $0 |
| 2009 | $125,300 | $42,000 | $0 | $0 | $0 |
| 2008 | $125,300 | $42,000 | $0 | $0 | $0 |
| 2007 | $99,000 | $21,000 | $0 | $0 | $0 |
Deed and Sales History
| 1 | 08/20/2021 | SWD | STATUTORY WARRANTY DEED | CANTRELL ROBERT A & THERESA K | KNOWLES CAROLYN LOUISE | | | $341,300.00 | 142332 | 2021-10274 |
| 2 | 08/29/2019 | SWD | STATUTORY WARRANTY DEED | WALKER KENNETH L & EDNA L | CANTRELL ROBERT A & THERESA K | | | $219,000.00 | 137581 | 2019-06697 |
| 3 | 03/06/1996 | WARRANTY D | WARRANTY DEED | | | | | $85,000.00 | 85709 | 2389-602123 |
Payout Agreement
| No payout information available.. |