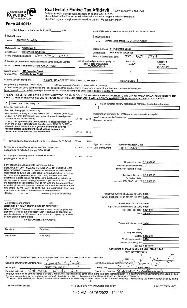
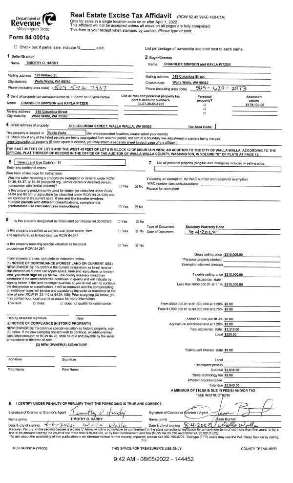
Property
Account |
| Property ID: | 10136 | Abbreviated Legal Description: | MTN VIEW LESS W 15' LOT 5 BLK 12; W 45' OF LOT 6 BLK 12 |
| Parcel Number: | 360728851205 | Agent Code: | |
| Type: | Real | | |
| Tax Area: | 1 - OL-140-F | Land Use Code | 11 |
| Open Space: | N | DFL | N |
| Historic Property: | N | Remodel Property: | N |
| Multi-Family Redevelopment: | N | | |
| Township: | 7 | Section: | 28 |
| Range: | 36 |
Location |
| Address: | 518 COLUMBIA ST WA 99362 | Mapsco: | |
| Neighborhood: | A Res | Map ID: | |
| Neighborhood CD: | 613011 |
Owner |
| Name: | SIMPSON CHANDLER & KAYLA PITZER | Owner ID: | 72061 |
| Mailing Address: | 518 COLUMBIA ST WALLA WALLA, WA 99362 | % Ownership: | 100.0000000000% |
| | | Exemptions: | |
Taxes and Assessment Details
Values
| (+) Improvement Homesite Value: | + | $0 | |
| (+) Improvement Non-Homesite Value: | + | $134,910 | |
| (+) Land Homesite Value: | + | $0 | |
| (+) Land Non-Homesite Value: | + | $82,800 | |
| (+) Curr Use (HS): | + | $0 | $0 |
| (+) Curr Use (NHS): | + | $0 | $0 |
| | | -------------------------- | |
| (=) Market Value: | = | $217,710 | |
| (–) Productivity Loss: | – | $0 | |
| | | -------------------------- | |
| (=) Subtotal: | = | $217,710 | |
| (+) Senior Appraised Value: | + | $0 | |
| (+) Non-Senior Appraised Value: | + | $217,710 | |
| | | -------------------------- | |
| (=) Total Appraised Value: | = | $217,710 | |
| (–) Senior Exemption Loss: | – | $0 | |
| (–) Exemption Loss: | – | $0 | |
| | | -------------------------- | |
| (=) Taxable Value: | = | $217,710 | |
Taxing Jurisdiction
| Owner: | SIMPSON CHANDLER & KAYLA PITZER | | |
| % Ownership: | 100.0000000000% | | |
| Total Value: | $217,710 | | |
| Tax Area: | 1 - OL-140-F |
| CERFD | CURRENT EXPENSE REFUND 010 | 0.0000000000 | $217,710 | $217,710 | $0.00 | | |
| CURREXP | CURRENT EXPENSE 010 | 1.0175366760 | $217,710 | $217,710 | $221.53 | | |
| HUMNSERV | HUMAN SERVICES 119 | 0.0250000000 | $217,710 | $217,710 | $5.44 | | |
| SLDREL | SOLDIERS RELIEF 121 | 0.0155990005 | $217,710 | $217,710 | $3.40 | | |
| EMERGSER | EMS 147 | 0.3792580840 | $217,710 | $217,710 | $82.57 | | |
| EMSRFD | EMS REFUND 147 | 0.0000000000 | $217,710 | $217,710 | $0.00 | | |
| PORTRFD | PORT REFUND 640 | 0.0000000000 | $217,710 | $217,710 | $0.00 | | |
| PORTWWGEN | PORT OF WW 640 | 0.2460186015 | $217,710 | $217,710 | $53.56 | | |
| SD140BOND | SD #140 BOND 764 | 0.8342371393 | $217,710 | $217,710 | $181.62 | | |
| SD140GEN | SD #140 GENERAL 760 | 2.0646500647 | $217,710 | $217,710 | $449.49 | | |
| ST2 | STATE SCHOOL PART 2 600 | 0.8131451643 | $217,710 | $217,710 | $177.03 | | |
| STATESCHL | STATE SCHOOL 600 | 1.5158548041 | $217,710 | $217,710 | $330.02 | | |
| STREFUND | STATE REFUND LEVY 603 | 0.0000000000 | $217,710 | $217,710 | $0.00 | | |
| CWWBOND | C OF WW BOND 643 | 0.2760494372 | $217,710 | $217,710 | $60.10 | | |
| CWWGEN | CITY OF WW 631 | 1.6100204973 | $217,710 | $217,710 | $350.52 | | |
| CWWRFD | CITY OF WALLA WALLA REFUND 631 | 0.0000000000 | $217,710 | $217,710 | $0.00 | | |
| | Total Tax Rate: | 8.7973694689 | | | | | |
| | | | | Taxes w/Current Exemptions: | $1,915.28 | | |
| | | | | Taxes w/o Exemptions: | $1,915.28 | | |
Improvement / Building
| Improvement #1: | RESIDENTIAL | State Code: | 11 | 1365.0 sqft | Value: | $134,910 |
| Exterior Wall: | CONCRETE BLOCK | Foundation: | SLAB FOUNDATION | | Heating/Cooling: | FLOOR FURNACE | Number of Bathrooms: | 1 | | Number of Bedrooms: | 3 | Plumbing: | 6 | | Roof Covering: | COMP SHINGLE |   |   |
|
| | Type | Description | Class CD | Sub Class CD | Year Built | Area |
| | MA | Main Area | 1 | 20 | 1947 | 1365.0 |
| | SI1 | SITE IMPROVEMENT | 1 | 20 | 1947 | 1.5 |
| | CPC | COVERED CARPORT/PATIO | 1 | 20 | 1947 | 435.0 |
Sketch
Property Image
Land
| 1 | RES 1 | Converted: Residential | 0.2112 | 9200.00 | 0.00 | 0.00 | 1.00 | $82,800 | $0 |
Roll Value History
| 2026 | N/A | N/A | N/A | N/A | N/A |
| 2025 | $125,300 | $101,200 | $0 | $226,500 | $226,500 |
| 2024 | $134,910 | $82,800 | $0 | $217,710 | $217,710 |
| 2023 | $134,910 | $82,800 | $0 | $217,710 | $217,710 |
| 2022 | $134,910 | $66,700 | $0 | $201,610 | $201,610 |
| 2021 | $112,430 | $66,700 | $0 | $179,130 | $179,130 |
| 2020 | $93,690 | $66,700 | $0 | $160,390 | $160,390 |
| 2019 | $93,690 | $66,700 | $0 | $160,390 | $160,390 |
| 2018 | $88,310 | $46,400 | $0 | $134,710 | $134,710 |
| 2017 | $67,930 | $46,400 | $0 | $114,330 | $114,330 |
| 2016 | $67,930 | $46,400 | $0 | $114,330 | $114,330 |
| 2015 | $67,930 | $46,400 | $0 | $114,330 | $114,330 |
| 2014 | $66,600 | $46,400 | $0 | $113,000 | $113,000 |
| 2013 | $66,600 | $46,400 | $0 | $113,000 | $113,000 |
| 2012 | $66,600 | $46,400 | $0 | $0 | $0 |
| 2011 | $66,600 | $46,400 | $0 | $0 | $0 |
| 2010 | $66,600 | $46,400 | $0 | $0 | $0 |
| 2009 | $79,100 | $46,400 | $0 | $0 | $0 |
| 2008 | $79,100 | $46,400 | $0 | $0 | $0 |
| 2007 | $57,000 | $23,900 | $0 | $0 | $0 |
Deed and Sales History
| 1 | 08/05/2022 | SWD | STATUTORY WARRANTY DEED | HARDY TIMOTHY O | SIMPSON CHANDLER & KAYLA PITZER | | | $210,000.00 | 144452 | 2022-06576 |
| 2 | 12/22/2005 | WARRANTY D | WARRANTY DEED | GOODALL, MILDRED J | HARDY, TIMOTHY O | | | $125,000.00 | 109313 | 2005-15984 |
| 3 | 04/16/1969 | WARRANTY D | WARRANTY DEED | | | | | $0.00 | 0 | 3310-500915 |
Payout Agreement
| No payout information available.. |