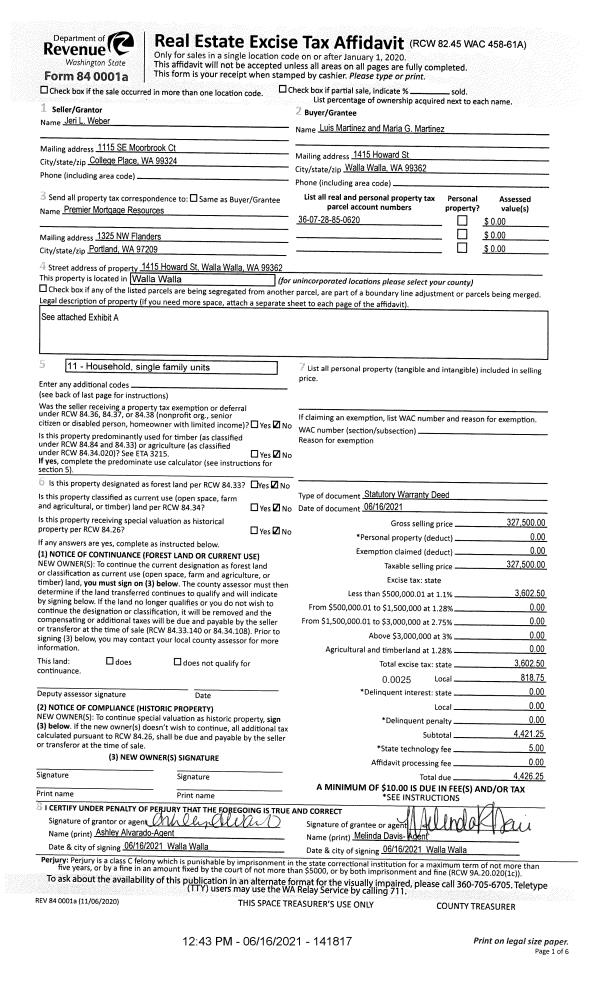
Property
Account |
| Property ID: | 10113 | Abbreviated Legal Description: | MTN VIEW W1/2 LOT 19 BLK 6; LOT 20 BLK 6 |
| Parcel Number: | 360728850620 | Agent Code: | |
| Type: | Real | | |
| Tax Area: | 1 - OL-140-F | Land Use Code | 11 |
| Open Space: | N | DFL | N |
| Historic Property: | N | Remodel Property: | N |
| Multi-Family Redevelopment: | N | | |
| Township: | 7 | Section: | 28 |
| Range: | 36 |
Location |
| Address: | 1415 HOWARD ST WA 99362 | Mapsco: | |
| Neighborhood: | A Res | Map ID: | |
| Neighborhood CD: | 613011 |
Owner |
| Name: | MARTINEZ LUIS & MARIA G | Owner ID: | 69625 |
| Mailing Address: | 1415 HOWARD ST WALLA WALLA, WA 99362 | % Ownership: | 100.0000000000% |
| | | Exemptions: | |
Taxes and Assessment Details
Property Tax Information as of
02/21/2026
Click on "Statement Details" to expand or collapse a tax statement.
* Please enter a valid date ** Please enter a valid date *
Statement Details |
| | TOTAL: | $0.00 | $0.00 | $0.00 | $0.00 | $0.00 | $0.00 |
|
| | $0.00 | $0.00 | $0.00 | $0.00 | $0.00 | $0.00 |
Values
| (+) Improvement Homesite Value: | + | $0 | |
| (+) Improvement Non-Homesite Value: | + | $258,420 | |
| (+) Land Homesite Value: | + | $0 | |
| (+) Land Non-Homesite Value: | + | $81,000 | |
| (+) Curr Use (HS): | + | $0 | $0 |
| (+) Curr Use (NHS): | + | $0 | $0 |
| | | -------------------------- | |
| (=) Market Value: | = | $339,420 | |
| (–) Productivity Loss: | – | $0 | |
| | | -------------------------- | |
| (=) Subtotal: | = | $339,420 | |
| (+) Senior Appraised Value: | + | $0 | |
| (+) Non-Senior Appraised Value: | + | $339,420 | |
| | | -------------------------- | |
| (=) Total Appraised Value: | = | $339,420 | |
| (–) Senior Exemption Loss: | – | $0 | |
| (–) Exemption Loss: | – | $0 | |
| | | -------------------------- | |
| (=) Taxable Value: | = | $339,420 | |
Taxing Jurisdiction
| Owner: | MARTINEZ LUIS & MARIA G | | |
| % Ownership: | 100.0000000000% | | |
| Total Value: | $339,420 | | |
| Tax Area: | 1 - OL-140-F |
| CERFD | CURRENT EXPENSE REFUND 010 | 0.0000000000 | $339,420 | $339,420 | $0.00 | | |
| CURREXP | CURRENT EXPENSE 010 | 1.0175366760 | $339,420 | $339,420 | $345.37 | | |
| HUMNSERV | HUMAN SERVICES 119 | 0.0250000000 | $339,420 | $339,420 | $8.49 | | |
| SLDREL | SOLDIERS RELIEF 121 | 0.0155990005 | $339,420 | $339,420 | $5.29 | | |
| EMERGSER | EMS 147 | 0.3792580840 | $339,420 | $339,420 | $128.73 | | |
| EMSRFD | EMS REFUND 147 | 0.0000000000 | $339,420 | $339,420 | $0.00 | | |
| PORTRFD | PORT REFUND 640 | 0.0000000000 | $339,420 | $339,420 | $0.00 | | |
| PORTWWGEN | PORT OF WW 640 | 0.2460186015 | $339,420 | $339,420 | $83.50 | | |
| SD140BOND | SD #140 BOND 764 | 0.8342371393 | $339,420 | $339,420 | $283.16 | | |
| SD140GEN | SD #140 GENERAL 760 | 2.0646500647 | $339,420 | $339,420 | $700.78 | | |
| ST2 | STATE SCHOOL PART 2 600 | 0.8131451643 | $339,420 | $339,420 | $276.00 | | |
| STATESCHL | STATE SCHOOL 600 | 1.5158548041 | $339,420 | $339,420 | $514.51 | | |
| STREFUND | STATE REFUND LEVY 603 | 0.0000000000 | $339,420 | $339,420 | $0.00 | | |
| CWWBOND | C OF WW BOND 643 | 0.2760494372 | $339,420 | $339,420 | $93.70 | | |
| CWWGEN | CITY OF WW 631 | 1.6100204973 | $339,420 | $339,420 | $546.47 | | |
| CWWRFD | CITY OF WALLA WALLA REFUND 631 | 0.0000000000 | $339,420 | $339,420 | $0.00 | | |
| | Total Tax Rate: | 8.7973694689 | | | | | |
| | | | | Taxes w/Current Exemptions: | $2,986.00 | | |
| | | | | Taxes w/o Exemptions: | $2,986.00 | | |
Improvement / Building
| Improvement #1: | RESIDENTIAL | State Code: | 11 | 1520.0 sqft | Value: | $258,420 |
| Exterior Wall: | METAL/STEEL | Foundation: | SLAB FOUNDATION | | Heating/Cooling: | WARM & COOLED AIR | Number of Bathrooms: | 2 | | Number of Bedrooms: | 2 | Plumbing: | 8 | | Roof Covering: | COMP SHINGLE |   |   |
|
| | Type | Description | Class CD | Sub Class CD | Year Built | Area |
| | MA | Main Area | 3 | 30 | 1965 | 1520.0 |
| | SI1 | SITE IMPROVEMENT | 3 | 30 | 1965 | 1.5 |
| | UPFL | Upper Floor (included in main area) | 3 | 30 | 1965 | 432.0 |
| | ATG | Attached Garage | 3 | 30 | 1965 | 645.0 |
| | S1F | Single One Story Fireplace | 3 | 30 | 1965 | 1.0 |
| | RPC | OPEN PORCH W/ROOF , CEILED | 3 | 30 | 1965 | 12.0 |
| | LEAN TO | LEAN TO | 1 | 30 | 1965 | 84.0 |
| | OSP | Open | 1 | 30 | 1965 | 391.0 |
| | OUT | OUTSIDE BASEMENT ENTRY | 1 | 30 | 1965 | 1.0 |
Sketch
Property Image
Land
| 1 | RES 1 | Converted: Residential | 0.2066 | 9000.00 | 0.00 | 0.00 | 1.00 | $81,000 | $0 |
Roll Value History
| 2026 | N/A | N/A | N/A | N/A | N/A |
| 2025 | $248,480 | $99,000 | $0 | $347,480 | $347,480 |
| 2024 | $258,420 | $81,000 | $0 | $339,420 | $339,420 |
| 2023 | $258,420 | $81,000 | $0 | $339,420 | $339,420 |
| 2022 | $246,120 | $65,250 | $0 | $311,370 | $311,370 |
| 2021 | $189,320 | $65,250 | $0 | $254,570 | $254,570 |
| 2020 | $145,630 | $65,250 | $0 | $210,880 | $210,880 |
| 2019 | $145,630 | $65,250 | $0 | $210,880 | $210,880 |
| 2018 | $128,670 | $46,300 | $0 | $174,970 | $174,970 |
| 2017 | $128,670 | $46,300 | $0 | $174,970 | $174,970 |
| 2016 | $122,540 | $46,300 | $0 | $168,840 | $168,840 |
| 2015 | $122,540 | $46,300 | $0 | $168,840 | $168,840 |
| 2014 | $111,400 | $46,300 | $0 | $157,700 | $157,700 |
| 2013 | $111,400 | $46,300 | $0 | $157,700 | $157,700 |
| 2012 | $103,100 | $46,300 | $0 | $0 | $0 |
| 2011 | $103,100 | $46,300 | $0 | $0 | $0 |
| 2010 | $103,100 | $46,300 | $0 | $0 | $0 |
| 2009 | $119,700 | $46,300 | $0 | $0 | $0 |
| 2008 | $119,700 | $46,300 | $0 | $0 | $0 |
| 2007 | $95,400 | $23,800 | $0 | $0 | $0 |
Deed and Sales History
| 1 | 06/16/2021 | SWD | STATUTORY WARRANTY DEED | JOHNSON JERI L | MARTINEZ LUIS & MARIA G | | | $327,500.00 | 141817 | 2021-07344 |
| 2 | 04/11/2005 | WARRANTY D | WARRANTY DEED | MCKENZIE, THOMAS ET UX | JOHNSON, JERI L | | | $151,000.00 | 107211 | 2005-04078 |
| 3 | 08/03/1981 | WARRANTY D | WARRANTY DEED | | | | | $56,650.00 | 0 | 1298-105813 |
Payout Agreement
| No payout information available.. |