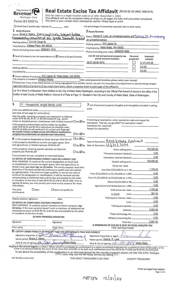
Property
Account |
| Property ID: | 10105 | Abbreviated Legal Description: | MTN VIEW LOT 16 BLK 5 |
| Parcel Number: | 360728850516 | Agent Code: | |
| Type: | Real | | |
| Tax Area: | 1 - OL-140-F | Land Use Code | 11 |
| Open Space: | N | DFL | N |
| Historic Property: | N | Remodel Property: | N |
| Multi-Family Redevelopment: | N | | |
| Township: | 7 | Section: | 28 |
| Range: | 36 |
Location |
| Address: | 615 LIBERTY ST WA 99362 | Mapsco: | |
| Neighborhood: | A Res | Map ID: | |
| Neighborhood CD: | 613011 |
Owner |
| Name: | NAIMY BRUCE A | Owner ID: | 53196 |
| Mailing Address: | 514 NE OMAK AVE COLLEGE PLACE, WA 99324 | % Ownership: | 100.0000000000% |
| | | Exemptions: | |
Taxes and Assessment Details
Values
| (+) Improvement Homesite Value: | + | $0 | |
| (+) Improvement Non-Homesite Value: | + | $89,860 | |
| (+) Land Homesite Value: | + | $0 | |
| (+) Land Non-Homesite Value: | + | $51,750 | |
| (+) Curr Use (HS): | + | $0 | $0 |
| (+) Curr Use (NHS): | + | $0 | $0 |
| | | -------------------------- | |
| (=) Market Value: | = | $141,610 | |
| (–) Productivity Loss: | – | $0 | |
| | | -------------------------- | |
| (=) Subtotal: | = | $141,610 | |
| (+) Senior Appraised Value: | + | $0 | |
| (+) Non-Senior Appraised Value: | + | $141,610 | |
| | | -------------------------- | |
| (=) Total Appraised Value: | = | $141,610 | |
| (–) Senior Exemption Loss: | – | $0 | |
| (–) Exemption Loss: | – | $0 | |
| | | -------------------------- | |
| (=) Taxable Value: | = | $141,610 | |
Taxing Jurisdiction
| Owner: | NAIMY BRUCE A | | |
| % Ownership: | 100.0000000000% | | |
| Total Value: | $141,610 | | |
| Tax Area: | 1 - OL-140-F |
| CERFD | CURRENT EXPENSE REFUND 010 | 0.0000000000 | $141,610 | $141,610 | $0.00 | | |
| CURREXP | CURRENT EXPENSE 010 | 1.0175366760 | $141,610 | $141,610 | $144.09 | | |
| HUMNSERV | HUMAN SERVICES 119 | 0.0250000000 | $141,610 | $141,610 | $3.54 | | |
| SLDREL | SOLDIERS RELIEF 121 | 0.0155990005 | $141,610 | $141,610 | $2.21 | | |
| EMERGSER | EMS 147 | 0.3792580840 | $141,610 | $141,610 | $53.71 | | |
| EMSRFD | EMS REFUND 147 | 0.0000000000 | $141,610 | $141,610 | $0.00 | | |
| PORTRFD | PORT REFUND 640 | 0.0000000000 | $141,610 | $141,610 | $0.00 | | |
| PORTWWGEN | PORT OF WW 640 | 0.2460186015 | $141,610 | $141,610 | $34.84 | | |
| SD140BOND | SD #140 BOND 764 | 0.8342371393 | $141,610 | $141,610 | $118.14 | | |
| SD140GEN | SD #140 GENERAL 760 | 2.0646500647 | $141,610 | $141,610 | $292.38 | | |
| ST2 | STATE SCHOOL PART 2 600 | 0.8131451643 | $141,610 | $141,610 | $115.15 | | |
| STATESCHL | STATE SCHOOL 600 | 1.5158548041 | $141,610 | $141,610 | $214.66 | | |
| STREFUND | STATE REFUND LEVY 603 | 0.0000000000 | $141,610 | $141,610 | $0.00 | | |
| CWWBOND | C OF WW BOND 643 | 0.2760494372 | $141,610 | $141,610 | $39.09 | | |
| CWWGEN | CITY OF WW 631 | 1.6100204973 | $141,610 | $141,610 | $228.00 | | |
| CWWRFD | CITY OF WALLA WALLA REFUND 631 | 0.0000000000 | $141,610 | $141,610 | $0.00 | | |
| | Total Tax Rate: | 8.7973694689 | | | | | |
| | | | | Taxes w/Current Exemptions: | $1,245.81 | | |
| | | | | Taxes w/o Exemptions: | $1,245.81 | | |
Improvement / Building
| Improvement #1: | RESIDENTIAL | State Code: | 11 | 576.0 sqft | Value: | $89,860 |
| Exterior Wall: | STUCCO | Heating/Cooling: | GRAVITY FURNACE | | Number of Bathrooms: | 1 | Number of Bedrooms: | 2 | | Plumbing: | 6 | Roof Covering: | COMP SHINGLE |
|
| | Type | Description | Class CD | Sub Class CD | Year Built | Area |
| | MA | Main Area | 1 | 20 | 1935 | 576.0 |
| | SI1 | SITE IMPROVEMENT | 1 | 20 | 1935 | 1.0 |
| | CPC | COVERED CARPORT/PATIO | 1 | 20 | 1935 | 456.0 |
| | TOOL | TOOL SHED | 1 | 20 | 1935 | 148.0 |
Sketch
Property Image
Land
| 1 | RES 1 | Converted: Residential | 0.1320 | 5750.00 | 0.00 | 0.00 | 1.00 | $51,750 | $0 |
Roll Value History
| 2026 | N/A | N/A | N/A | N/A | N/A |
| 2025 | $78,780 | $63,250 | $0 | $142,030 | $142,030 |
| 2024 | $89,860 | $51,750 | $0 | $141,610 | $141,610 |
| 2023 | $89,860 | $51,750 | $0 | $141,610 | $141,610 |
| 2022 | $74,890 | $41,690 | $0 | $116,580 | $116,580 |
| 2021 | $49,920 | $41,690 | $0 | $91,610 | $91,610 |
| 2020 | $35,660 | $41,690 | $0 | $77,350 | $77,350 |
| 2019 | $35,660 | $41,690 | $0 | $77,350 | $77,350 |
| 2018 | $27,050 | $34,500 | $0 | $61,550 | $61,550 |
| 2017 | $20,810 | $34,500 | $0 | $55,310 | $55,310 |
| 2016 | $20,810 | $34,500 | $0 | $55,310 | $55,310 |
| 2015 | $20,810 | $34,500 | $0 | $55,310 | $55,310 |
| 2014 | $20,400 | $34,500 | $0 | $54,900 | $54,900 |
| 2013 | $20,400 | $34,500 | $0 | $54,900 | $54,900 |
| 2012 | $6,800 | $34,500 | $0 | $0 | $0 |
| 2011 | $6,800 | $34,500 | $0 | $0 | $0 |
| 2010 | $14,100 | $34,500 | $0 | $0 | $0 |
| 2009 | $19,500 | $34,500 | $0 | $0 | $0 |
| 2008 | $19,500 | $34,500 | $0 | $0 | $0 |
| 2007 | $17,500 | $17,300 | $0 | $0 | $0 |
Deed and Sales History
| 1 | 12/31/2024 | REAL ESTAT | REAL ESTATE CONTRACT | NAIMY BRUCE A | LUKE DENNIS R | | | $155,000.00 | 148738 | 2024-07497 |
| 2 | 08/06/2013 | WARRANTY D | WARRANTY DEED | "NAIMY, BRUCE & SANDRA" | NAIMY BRUCE A | | | | 124410 | 2013-07974 |
| 3 | 11/06/2003 | WARRANTY D | WARRANTY DEED | JOHNSON, PAT & KATHY | NAIMY, BRUCE & SANDRA | | | $45,000.00 | 103466 | 2003-17240 |
| 4 | 12/19/2000 | WARRANTY D | WARRANTY DEED | | | | | $35,000.00 | 96335 | 3060-011947 |
Payout Agreement
| No payout information available.. |