Property
Account |
| Property ID: | 10080 | Abbreviated Legal Description: | AMENDED SHADE TREE P.U.D. LOT 6 |
| Parcel Number: | 360728830006 | Agent Code: | |
| Type: | Real | | |
| Tax Area: | 6 - OL-140-F-FB | Land Use Code | 11 |
| Open Space: | N | DFL | N |
| Historic Property: | N | Remodel Property: | N |
| Multi-Family Redevelopment: | N | | |
| Township: | 7 | Section: | 28 |
| Range: | 36 |
Location |
| Address: | 1395 SHADE TREE LN WA 99362 | Mapsco: | |
| Neighborhood: | VG Res | Map ID: | |
| Neighborhood CD: | 615011 |
Owner |
| Name: | NAPIER SCOTT B | Owner ID: | 62259 |
| Mailing Address: | JOLIE E WELCH 1395 SHADE TREE LN WALLA WALLA, WA 99362 | % Ownership: | 100.0000000000% |
| | | Exemptions: | |
Taxes and Assessment Details
Values
| (+) Improvement Homesite Value: | + | $0 | |
| (+) Improvement Non-Homesite Value: | + | $528,540 | |
| (+) Land Homesite Value: | + | $0 | |
| (+) Land Non-Homesite Value: | + | $120,000 | |
| (+) Curr Use (HS): | + | $0 | $0 |
| (+) Curr Use (NHS): | + | $0 | $0 |
| | | -------------------------- | |
| (=) Market Value: | = | $648,540 | |
| (–) Productivity Loss: | – | $0 | |
| | | -------------------------- | |
| (=) Subtotal: | = | $648,540 | |
| (+) Senior Appraised Value: | + | $0 | |
| (+) Non-Senior Appraised Value: | + | $648,540 | |
| | | -------------------------- | |
| (=) Total Appraised Value: | = | $648,540 | |
| (–) Senior Exemption Loss: | – | $0 | |
| (–) Exemption Loss: | – | $0 | |
| | | -------------------------- | |
| (=) Taxable Value: | = | $648,540 | |
Taxing Jurisdiction
| Owner: | NAPIER SCOTT B | | |
| % Ownership: | 100.0000000000% | | |
| Total Value: | $648,540 | | |
| Tax Area: | 6 - OL-140-F-FB |
| CERFD | CURRENT EXPENSE REFUND 010 | 0.0000000000 | $648,540 | $648,540 | $0.00 | | |
| CURREXP | CURRENT EXPENSE 010 | 1.0175366760 | $648,540 | $648,540 | $659.91 | | |
| HUMNSERV | HUMAN SERVICES 119 | 0.0250000000 | $648,540 | $648,540 | $16.21 | | |
| SLDREL | SOLDIERS RELIEF 121 | 0.0155990005 | $648,540 | $648,540 | $10.12 | | |
| EMERGSER | EMS 147 | 0.3792580840 | $648,540 | $648,540 | $245.96 | | |
| EMSRFD | EMS REFUND 147 | 0.0000000000 | $648,540 | $648,540 | $0.00 | | |
| PORTRFD | PORT REFUND 640 | 0.0000000000 | $648,540 | $648,540 | $0.00 | | |
| PORTWWGEN | PORT OF WW 640 | 0.2460186015 | $648,540 | $648,540 | $159.55 | | |
| SD140BOND | SD #140 BOND 764 | 0.8342371393 | $648,540 | $648,540 | $541.04 | | |
| SD140GEN | SD #140 GENERAL 760 | 2.0646500647 | $648,540 | $648,540 | $1,339.01 | | |
| ST2 | STATE SCHOOL PART 2 600 | 0.8131451643 | $648,540 | $648,540 | $527.36 | | |
| STATESCHL | STATE SCHOOL 600 | 1.5158548041 | $648,540 | $648,540 | $983.09 | | |
| STREFUND | STATE REFUND LEVY 603 | 0.0000000000 | $648,540 | $648,540 | $0.00 | | |
| CWWBOND | C OF WW BOND 643 | 0.2760494372 | $648,540 | $648,540 | $179.03 | | |
| CWWGEN | CITY OF WW 631 | 1.6100204973 | $648,540 | $648,540 | $1,044.16 | | |
| CWWRFD | CITY OF WALLA WALLA REFUND 631 | 0.0000000000 | $648,540 | $648,540 | $0.00 | | |
| | Total Tax Rate: | 8.7973694689 | | | | | |
| | | | | Taxes w/Current Exemptions: | $5,705.44 | | |
| | | | | Taxes w/o Exemptions: | $5,705.44 | | |
Improvement / Building
| Improvement #1: | RESIDENTIAL | State Code: | 11 | 2672.0 sqft | Value: | $528,540 |
| Exterior Wall: | SIDING | Heating/Cooling: | WARM & COOLED AIR | | Number of Bathrooms: | 3 | Number of Bedrooms: | 3 | | Plumbing: | 13 | Roof Covering: | COMP SHINGLE |
|
| | Type | Description | Class CD | Sub Class CD | Year Built | Area |
| | MA | Main Area | 1 | 40 | 2000 | 2672.0 |
| | SI1 | SITE IMPROVEMENT | 1 | 40 | 2000 | 5.0 |
| | ATG | Attached Garage | 1 | 40 | 2000 | 1170.0 |
| | CPC | COVERED CARPORT/PATIO | 1 | 40 | 2000 | 327.0 |
| | RCD | WOOD DECK W/ROOF, CEILED | 1 | 40 | 2000 | 208.0 |
Sketch
Property Image
Land
| 1 | RES 1 | Converted: Residential | 0.2210 | 9627.00 | 0.00 | 0.00 | 1.00 | $120,000 | $0 |
Roll Value History
| 2026 | N/A | N/A | N/A | N/A | N/A |
| 2025 | $479,840 | $150,000 | $0 | $629,840 | $629,840 |
| 2024 | $528,540 | $120,000 | $0 | $648,540 | $648,540 |
| 2023 | $528,540 | $120,000 | $0 | $648,540 | $648,540 |
| 2022 | $480,490 | $95,000 | $0 | $575,490 | $575,490 |
| 2021 | $436,810 | $95,000 | $0 | $531,810 | $531,810 |
| 2020 | $349,450 | $95,000 | $0 | $444,450 | $444,450 |
| 2019 | $349,450 | $95,000 | $0 | $444,450 | $444,450 |
| 2018 | $343,960 | $60,000 | $0 | $403,960 | $403,960 |
| 2017 | $327,580 | $60,000 | $0 | $387,580 | $387,580 |
| 2016 | $327,580 | $60,000 | $0 | $387,580 | $387,580 |
| 2015 | $327,580 | $60,000 | $0 | $387,580 | $387,580 |
| 2014 | $297,800 | $60,000 | $0 | $357,800 | $357,800 |
| 2013 | $297,800 | $60,000 | $0 | $357,800 | $357,800 |
| 2012 | $307,300 | $60,000 | $0 | $0 | $0 |
| 2011 | $307,300 | $60,000 | $0 | $0 | $0 |
| 2010 | $307,300 | $60,000 | $0 | $0 | $0 |
| 2009 | $328,700 | $60,000 | $0 | $0 | $0 |
| 2008 | $328,700 | $60,000 | $0 | $0 | $0 |
| 2007 | $249,500 | $38,000 | $0 | $0 | $0 |
Deed and Sales History
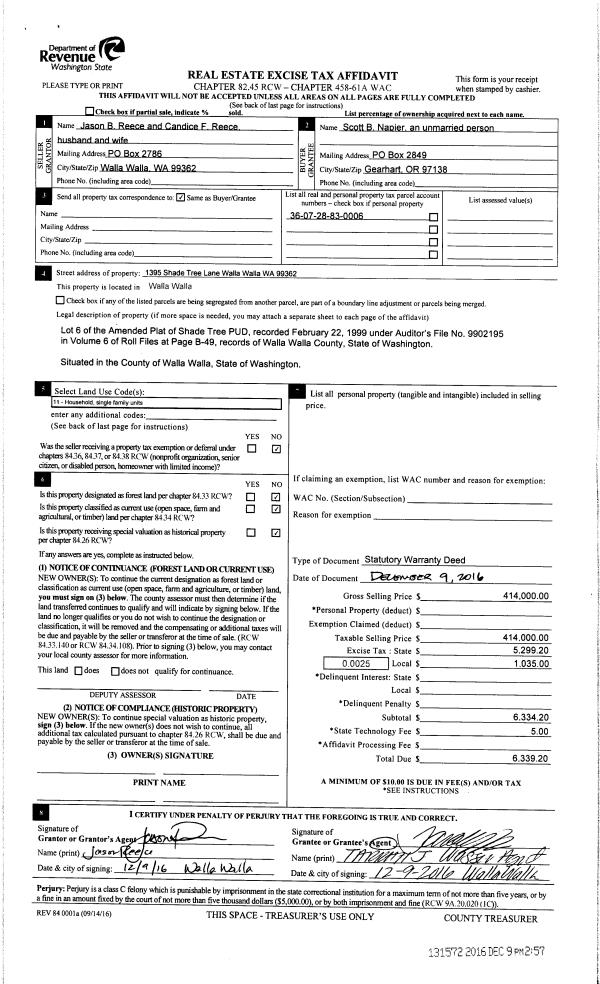
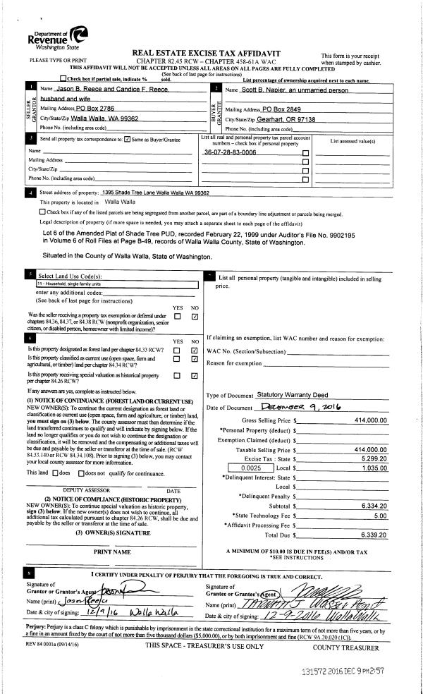
| 1 | 12/12/2017 | QCD | QUIT CLAIM DEED | NAPIER SCOTT B | NAPIER SCOTT B | | | $0.00 | 133789 | 2017-10043 |
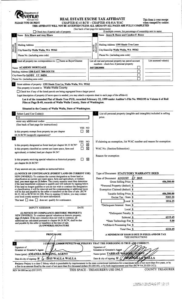
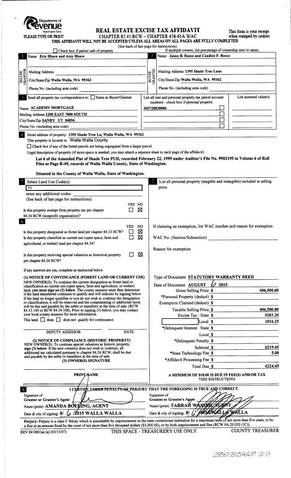
| 2 | 12/09/2016 | SWD | STATUTORY WARRANTY DEED | REECE JASON B & CANDICE F | NAPIER SCOTT B | | | $414,000.00 | 131572 | 2016-10139 |
| 3 | 08/07/2015 | SWD | STATUTORY WARRANTY DEED | HISAW ERIC & AMY | REECE JASON B & CANDICE F | | | $406,500.00 | 128560 | 2015-06848 |
| 4 | 07/02/2004 | WARRANTY D | WARRANTY DEED | WATSON, THOMAS B & MELISSA K | HISAW, ERIC & AMY | | | $379,000.00 | 105162 | 2004-07476 |
| 5 | 06/25/2001 | WARRANTY D | WARRANTY DEED | | | | | $288,000.00 | 97457 | 3150-106701 |
Payout Agreement
| No payout information available.. |