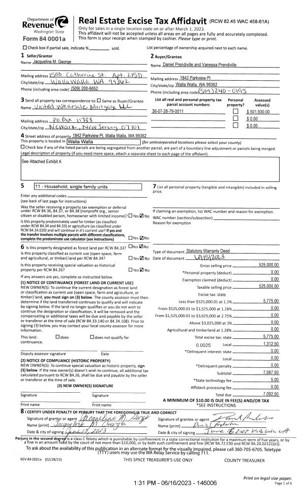
Property
Account |
| Property ID: | 10065 | Abbreviated Legal Description: | PARK VALE ADDN PARCEL #11 (LESS STRIP ON NW) |
| Parcel Number: | 360728790011 | Agent Code: | |
| Type: | Real | | |
| Tax Area: | 1 - OL-140-F | Land Use Code | 11 |
| Open Space: | N | DFL | N |
| Historic Property: | N | Remodel Property: | N |
| Multi-Family Redevelopment: | N | | |
| Township: | 7 | Section: | 28 |
| Range: | 36 |
Location |
| Address: | 1842 PARKVIEW PL WA 99362 | Mapsco: | |
| Neighborhood: | A Res | Map ID: | |
| Neighborhood CD: | 613011 |
Owner |
| Name: | PRENDIVILLE VANESSA & DANIEL | Owner ID: | 73770 |
| Mailing Address: | 1842 PARKVIEW PL WALLA WALLA, WA 99362 | % Ownership: | 100.0000000000% |
| | | Exemptions: | |
Taxes and Assessment Details
Property Tax Information as of
02/21/2026
Click on "Statement Details" to expand or collapse a tax statement.
* Please enter a valid date ** Please enter a valid date *
Statement Details |
| | TOTAL: | $0.00 | $0.00 | $0.00 | $0.00 | $0.00 | $0.00 |
|
| | $0.00 | $0.00 | $0.00 | $0.00 | $0.00 | $0.00 |
Values
| (+) Improvement Homesite Value: | + | $0 | |
| (+) Improvement Non-Homesite Value: | + | $439,940 | |
| (+) Land Homesite Value: | + | $0 | |
| (+) Land Non-Homesite Value: | + | $82,940 | |
| (+) Curr Use (HS): | + | $0 | $0 |
| (+) Curr Use (NHS): | + | $0 | $0 |
| | | -------------------------- | |
| (=) Market Value: | = | $522,880 | |
| (–) Productivity Loss: | – | $0 | |
| | | -------------------------- | |
| (=) Subtotal: | = | $522,880 | |
| (+) Senior Appraised Value: | + | $0 | |
| (+) Non-Senior Appraised Value: | + | $522,880 | |
| | | -------------------------- | |
| (=) Total Appraised Value: | = | $522,880 | |
| (–) Senior Exemption Loss: | – | $0 | |
| (–) Exemption Loss: | – | $0 | |
| | | -------------------------- | |
| (=) Taxable Value: | = | $522,880 | |
Taxing Jurisdiction
| Owner: | PRENDIVILLE VANESSA & DANIEL | | |
| % Ownership: | 100.0000000000% | | |
| Total Value: | $522,880 | | |
| Tax Area: | 1 - OL-140-F |
| CERFD | CURRENT EXPENSE REFUND 010 | 0.0000000000 | $522,880 | $522,880 | $0.00 | | |
| CURREXP | CURRENT EXPENSE 010 | 1.0175366760 | $522,880 | $522,880 | $532.05 | | |
| HUMNSERV | HUMAN SERVICES 119 | 0.0250000000 | $522,880 | $522,880 | $13.07 | | |
| SLDREL | SOLDIERS RELIEF 121 | 0.0155990005 | $522,880 | $522,880 | $8.16 | | |
| EMERGSER | EMS 147 | 0.3792580840 | $522,880 | $522,880 | $198.31 | | |
| EMSRFD | EMS REFUND 147 | 0.0000000000 | $522,880 | $522,880 | $0.00 | | |
| PORTRFD | PORT REFUND 640 | 0.0000000000 | $522,880 | $522,880 | $0.00 | | |
| PORTWWGEN | PORT OF WW 640 | 0.2460186015 | $522,880 | $522,880 | $128.64 | | |
| SD140BOND | SD #140 BOND 764 | 0.8342371393 | $522,880 | $522,880 | $436.21 | | |
| SD140GEN | SD #140 GENERAL 760 | 2.0646500647 | $522,880 | $522,880 | $1,079.56 | | |
| ST2 | STATE SCHOOL PART 2 600 | 0.8131451643 | $522,880 | $522,880 | $425.18 | | |
| STATESCHL | STATE SCHOOL 600 | 1.5158548041 | $522,880 | $522,880 | $792.61 | | |
| STREFUND | STATE REFUND LEVY 603 | 0.0000000000 | $522,880 | $522,880 | $0.00 | | |
| CWWBOND | C OF WW BOND 643 | 0.2760494372 | $522,880 | $522,880 | $144.34 | | |
| CWWGEN | CITY OF WW 631 | 1.6100204973 | $522,880 | $522,880 | $841.85 | | |
| CWWRFD | CITY OF WALLA WALLA REFUND 631 | 0.0000000000 | $522,880 | $522,880 | $0.00 | | |
| | Total Tax Rate: | 8.7973694689 | | | | | |
| | | | | Taxes w/Current Exemptions: | $4,599.98 | | |
| | | | | Taxes w/o Exemptions: | $4,599.98 | | |
Improvement / Building
| Improvement #1: | RESIDENTIAL | State Code: | 11 | 1556.0 sqft | Value: | $439,940 |
| Exterior Wall: | SIDING | Heating/Cooling: | WARM & COOLED AIR | | Number of Bathrooms: | 3 | Number of Bedrooms: | 5 | | Plumbing: | 12 | Roof Covering: | COMP SHINGLE |
|
| | Type | Description | Class CD | Sub Class CD | Year Built | Area |
| | MA | Main Area | 1 | 40 | 1977 | 1556.0 |
| | SI1 | SITE IMPROVEMENT | 1 | 40 | 1977 | 3.5 |
| | BASE | BASEMENT | 1 | 40 | 1977 | 1000.0 |
| | BPF | BASEMENT -PARTITIONED FINISH | 1 | 40 | 1977 | 1000.0 |
| | ATG | Attached Garage | 1 | 40 | 1977 | 528.0 |
| | S1F | Single One Story Fireplace | 1 | 40 | 1977 | 1.0 |
| | RPC | OPEN PORCH W/ROOF , CEILED | 1 | 40 | 1977 | 30.0 |
Sketch
Property Image
Land
| 1 | RES 1 | Converted: Residential | 0.2116 | 9216.00 | 0.00 | 0.00 | 1.00 | $82,940 | $0 |
Roll Value History
| 2026 | N/A | N/A | N/A | N/A | N/A |
| 2025 | $430,530 | $110,590 | $0 | $541,120 | $541,120 |
| 2024 | $439,940 | $82,940 | $0 | $522,880 | $522,880 |
| 2023 | $439,940 | $82,940 | $0 | $522,880 | $522,880 |
| 2022 | $418,990 | $66,820 | $0 | $485,810 | $485,810 |
| 2021 | $299,280 | $66,820 | $0 | $366,100 | $366,100 |
| 2020 | $260,240 | $66,820 | $0 | $327,060 | $327,060 |
| 2019 | $260,240 | $66,820 | $0 | $327,060 | $327,060 |
| 2018 | $235,050 | $46,500 | $0 | $281,550 | $281,550 |
| 2017 | $235,050 | $46,500 | $0 | $281,550 | $281,550 |
| 2016 | $223,860 | $46,500 | $0 | $270,360 | $270,360 |
| 2015 | $223,860 | $46,500 | $0 | $270,360 | $270,360 |
| 2014 | $213,200 | $46,500 | $0 | $259,700 | $259,700 |
| 2013 | $213,200 | $46,500 | $0 | $259,700 | $259,700 |
| 2012 | $213,200 | $46,500 | $0 | $0 | $0 |
| 2011 | $213,200 | $46,500 | $0 | $0 | $0 |
| 2010 | $189,600 | $46,500 | $0 | $0 | $0 |
| 2009 | $215,800 | $46,500 | $0 | $0 | $0 |
| 2008 | $215,800 | $46,500 | $0 | $0 | $0 |
| 2007 | $149,500 | $24,000 | $0 | $0 | $0 |
Deed and Sales History
| 1 | 06/16/2023 | SWD | STATUTORY WARRANTY DEED | GEORGE JACQUELINE MAE | PRENDIVILLE VANESSA & DANIEL | | | $525,000.00 | 146006 | 2023-03350 |
| 2 | 07/10/2020 | LOPA | LACK OF PROBATE AFFIDAVIT | GEORGE EDWARD H III | GEORGE JACQUELINE MAE | | | $0.00 | 139467 | 2020-06659 |
| 3 | 05/04/2001 | WARRANTY D | WARRANTY DEED | | | | | $170,000.00 | 97094 | 3120-104464 |
Payout Agreement
| No payout information available.. |