Property
Account |
| Property ID: | 1006 | Abbreviated Legal Description: | SYDNEY HEIGHTS #2 LT 29 |
| Parcel Number: | 360605520029 | Agent Code: | |
| Type: | Real | | |
| Tax Area: | 101 - 140-4 | Land Use Code | 11 |
| Open Space: | N | DFL | N |
| Historic Property: | N | Remodel Property: | N |
| Multi-Family Redevelopment: | N | | |
| Township: | 6 | Section: | 5 |
| Range: | 36 |
Location |
| Address: | 3006 BRISBANE ST WA 99362 | Mapsco: | |
| Neighborhood: | G Res Rural/City Inf | Map ID: | |
| Neighborhood CD: | 614012 |
Owner |
| Name: | TEMPLETON J CHARLES & PATRICIA M | Owner ID: | 57019 |
| Mailing Address: | 3006 BRISBANE ST WALLA WALLA, WA 99362 | % Ownership: | 100.0000000000% |
| | | Exemptions: | |
Taxes and Assessment Details
Values
| (+) Improvement Homesite Value: | + | $0 | |
| (+) Improvement Non-Homesite Value: | + | $408,930 | |
| (+) Land Homesite Value: | + | $0 | |
| (+) Land Non-Homesite Value: | + | $150,000 | |
| (+) Curr Use (HS): | + | $0 | $0 |
| (+) Curr Use (NHS): | + | $0 | $0 |
| | | -------------------------- | |
| (=) Market Value: | = | $558,930 | |
| (–) Productivity Loss: | – | $0 | |
| | | -------------------------- | |
| (=) Subtotal: | = | $558,930 | |
| (+) Senior Appraised Value: | + | $0 | |
| (+) Non-Senior Appraised Value: | + | $558,930 | |
| | | -------------------------- | |
| (=) Total Appraised Value: | = | $558,930 | |
| (–) Senior Exemption Loss: | – | $0 | |
| (–) Exemption Loss: | – | $0 | |
| | | -------------------------- | |
| (=) Taxable Value: | = | $558,930 | |
Taxing Jurisdiction
| Owner: | TEMPLETON J CHARLES & PATRICIA M | | |
| % Ownership: | 100.0000000000% | | |
| Total Value: | $558,930 | | |
| Tax Area: | 101 - 140-4 |
| CERFD | CURRENT EXPENSE REFUND 010 | 0.0000000000 | $558,930 | $558,930 | $0.00 | | |
| CURREXP | CURRENT EXPENSE 010 | 1.0175366760 | $558,930 | $558,930 | $568.73 | | |
| HUMNSERV | HUMAN SERVICES 119 | 0.0250000000 | $558,930 | $558,930 | $13.97 | | |
| SLDREL | SOLDIERS RELIEF 121 | 0.0155990005 | $558,930 | $558,930 | $8.72 | | |
| EMERGSER | EMS 147 | 0.3792580840 | $558,930 | $558,930 | $211.98 | | |
| EMSRFD | EMS REFUND 147 | 0.0000000000 | $558,930 | $558,930 | $0.00 | | |
| FD4EXP | FD #4 EXPENSE 686 | 0.8836993059 | $558,930 | $558,930 | $493.93 | | |
| RLBRFD | RURAL LIBRARY REFUND 623 | 0.0000000000 | $558,930 | $558,930 | $0.00 | | |
| RURALLIB | RURAL LIBRARY 623 | 0.3710609029 | $558,930 | $558,930 | $207.40 | | |
| PORTRFD | PORT REFUND 640 | 0.0000000000 | $558,930 | $558,930 | $0.00 | | |
| PORTWWGEN | PORT OF WW 640 | 0.2460186015 | $558,930 | $558,930 | $137.51 | | |
| SD140BOND | SD #140 BOND 764 | 0.8342371393 | $558,930 | $558,930 | $466.28 | | |
| SD140GEN | SD #140 GENERAL 760 | 2.0646500647 | $558,930 | $558,930 | $1,153.99 | | |
| ST2 | STATE SCHOOL PART 2 600 | 0.8131451643 | $558,930 | $558,930 | $454.49 | | |
| STATESCHL | STATE SCHOOL 600 | 1.5158548041 | $558,930 | $558,930 | $847.26 | | |
| STREFUND | STATE REFUND LEVY 603 | 0.0000000000 | $558,930 | $558,930 | $0.00 | | |
| COROAD | COUNTY ROAD 115 | 1.6549953990 | $558,930 | $558,930 | $925.03 | | |
| CRPRD | COUNTY ROAD REFUND 115 | 0.0000000000 | $558,930 | $558,930 | $0.00 | | |
| | Total Tax Rate: | 9.8210551422 | | | | | |
| | | | | Taxes w/Current Exemptions: | $5,489.29 | | |
| | | | | Taxes w/o Exemptions: | $5,489.29 | | |
Improvement / Building
| Improvement #1: | RESIDENTIAL | State Code: | 11 | 1924.0 sqft | Value: | $408,930 |
| Exterior Wall: | PLYWOOD | Foundation: | SLAB FOUNDATION | | Heating/Cooling: | WARM & COOLED AIR | Number of Bathrooms: | 3 | | Number of Bedrooms: | 3 | Plumbing: | 13 | | Roof Covering: | COMP SHINGLE |   |   |
|
| | Type | Description | Class CD | Sub Class CD | Year Built | Area |
| | MA | Main Area | 3 | 35 | 1974 | 1924.0 |
| | SI1 | SITE IMPROVEMENT | 3 | 35 | 1974 | 3.2 |
| | UPFL | Upper Floor (included in main area) | 3 | 35 | 1974 | 660.0 |
| | ATG | Attached Garage | 3 | 35 | 1974 | 528.0 |
| | RPO | OPEN PORCH W/ROOF | 3 | 35 | 1974 | 24.0 |
| | S1F | Single One Story Fireplace | 3 | 35 | 1974 | 1.0 |
| | CPC | COVERED CARPORT/PATIO | 3 | 35 | 1974 | 210.0 |
Sketch
Property Image
Land
| 1 | RES 1 | Converted: Residential | 1.0000 | 0.00 | 0.00 | 0.00 | 1.00 | $150,000 | $0 |
Roll Value History
| 2026 | N/A | N/A | N/A | N/A | N/A |
| 2025 | $414,630 | $170,000 | $0 | $584,630 | $584,630 |
| 2024 | $408,930 | $150,000 | $0 | $558,930 | $558,930 |
| 2023 | $408,930 | $150,000 | $0 | $558,930 | $558,930 |
| 2022 | $408,930 | $100,000 | $0 | $508,930 | $508,930 |
| 2021 | $382,180 | $100,000 | $0 | $482,180 | $482,180 |
| 2020 | $238,860 | $100,000 | $0 | $338,860 | $338,860 |
| 2019 | $238,860 | $100,000 | $0 | $338,860 | $338,860 |
| 2018 | $227,650 | $90,000 | $0 | $317,650 | $317,650 |
| 2017 | $227,650 | $90,000 | $0 | $317,650 | $317,650 |
| 2016 | $216,810 | $90,000 | $0 | $306,810 | $306,810 |
| 2015 | $216,810 | $90,000 | $0 | $306,810 | $306,810 |
| 2014 | $160,600 | $90,000 | $0 | $250,600 | $250,600 |
| 2013 | $160,600 | $90,000 | $0 | $250,600 | $250,600 |
| 2012 | $160,600 | $90,000 | $0 | $0 | $0 |
| 2011 | $130,600 | $120,000 | $0 | $0 | $0 |
| 2010 | $130,600 | $120,000 | $0 | $0 | $0 |
| 2009 | $158,400 | $120,000 | $0 | $0 | $0 |
| 2008 | $158,400 | $120,000 | $0 | $0 | $0 |
| 2007 | $149,300 | $44,000 | $0 | $0 | $0 |
Deed and Sales History
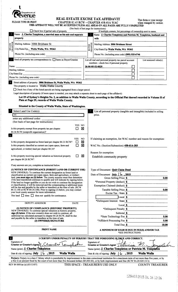
| 1 | 07/16/2015 | QCD | QUIT CLAIM DEED | TEMPLETON J CHARLES | TEMPLETON J CHARLES & PATRICIA M | | | $0.00 | 128403 | 2015-06083 |
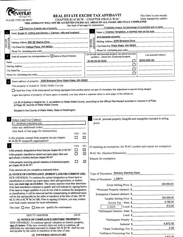
| 2 | 02/02/2015 | SWD | STATUTORY WARRANTY DEED | CANNON DENNIS J | TEMPLETON J CHARLES | | | $325,000.00 | 127374 | 2015-00971 |
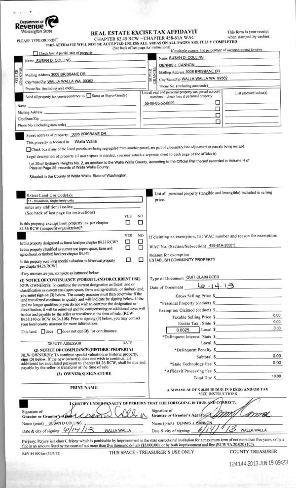
| 3 | 06/19/2013 | QCD | QUIT CLAIM DEED | COLLINS, SUSAN D | CANNON, DENNIS J | | | $0.00 | 124144 | 2013-06121 |
| 4 | 12/31/2002 | WARRANTY D | WARRANTY DEED | BLAKEMORE, DON L & RHONDA K | COLLINS, JOHN C & SUSAN D | | | $192,500.00 | 101122 | 2002-15088 |
| 5 | 01/17/1992 | WARRANTY D | WARRANTY DEED | | | | | $101,000.00 | 0 | 1949-200629 |
Payout Agreement
| No payout information available.. |