Property
Account |
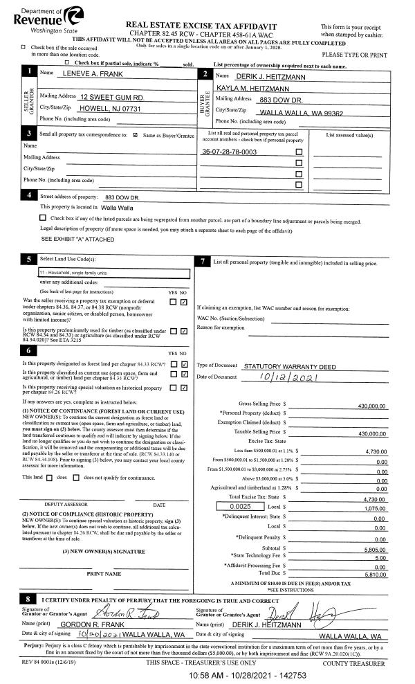
| Property ID: | 10049 | Abbreviated Legal Description: | HOMELAND ADDN LOT 3 |
| Parcel Number: | 360728780003 | Agent Code: | |
| Type: | Real | | |
| Tax Area: | 1 - OL-140-F | Land Use Code | 11 |
| Open Space: | N | DFL | N |
| Historic Property: | N | Remodel Property: | N |
| Multi-Family Redevelopment: | N | | |
| Township: | 7 | Section: | 28 |
| Range: | 36 |
Location |
| Address: | 883 DOW DR WA 99362 | Mapsco: | |
| Neighborhood: | G Res | Map ID: | |
| Neighborhood CD: | 614011 |
Owner |
| Name: | HEITZMANN DERIK J & KAYLA M | Owner ID: | 67205 |
| Mailing Address: | 883 DOW DR WALLA WALLA, WA 99362 | % Ownership: | 100.0000000000% |
| | | Exemptions: | |
Taxes and Assessment Details
Property Tax Information as of
02/21/2026
Click on "Statement Details" to expand or collapse a tax statement.
* Please enter a valid date ** Please enter a valid date *
Statement Details |
| | TOTAL: | $0.00 | $0.00 | $0.00 | $0.00 | $0.00 | $0.00 |
|
| | $0.00 | $0.00 | $0.00 | $0.00 | $0.00 | $0.00 |
Values
| (+) Improvement Homesite Value: | + | $0 | |
| (+) Improvement Non-Homesite Value: | + | $454,080 | |
| (+) Land Homesite Value: | + | $0 | |
| (+) Land Non-Homesite Value: | + | $100,500 | |
| (+) Curr Use (HS): | + | $0 | $0 |
| (+) Curr Use (NHS): | + | $0 | $0 |
| | | -------------------------- | |
| (=) Market Value: | = | $554,580 | |
| (–) Productivity Loss: | – | $0 | |
| | | -------------------------- | |
| (=) Subtotal: | = | $554,580 | |
| (+) Senior Appraised Value: | + | $0 | |
| (+) Non-Senior Appraised Value: | + | $554,580 | |
| | | -------------------------- | |
| (=) Total Appraised Value: | = | $554,580 | |
| (–) Senior Exemption Loss: | – | $0 | |
| (–) Exemption Loss: | – | $0 | |
| | | -------------------------- | |
| (=) Taxable Value: | = | $554,580 | |
Taxing Jurisdiction
| Owner: | HEITZMANN DERIK J & KAYLA M | | |
| % Ownership: | 100.0000000000% | | |
| Total Value: | $554,580 | | |
| Tax Area: | 1 - OL-140-F |
| CERFD | CURRENT EXPENSE REFUND 010 | 0.0000000000 | $554,580 | $554,580 | $0.00 | | |
| CURREXP | CURRENT EXPENSE 010 | 1.0175366760 | $554,580 | $554,580 | $564.31 | | |
| HUMNSERV | HUMAN SERVICES 119 | 0.0250000000 | $554,580 | $554,580 | $13.86 | | |
| SLDREL | SOLDIERS RELIEF 121 | 0.0155990005 | $554,580 | $554,580 | $8.65 | | |
| EMERGSER | EMS 147 | 0.3792580840 | $554,580 | $554,580 | $210.33 | | |
| EMSRFD | EMS REFUND 147 | 0.0000000000 | $554,580 | $554,580 | $0.00 | | |
| PORTRFD | PORT REFUND 640 | 0.0000000000 | $554,580 | $554,580 | $0.00 | | |
| PORTWWGEN | PORT OF WW 640 | 0.2460186015 | $554,580 | $554,580 | $136.44 | | |
| SD140BOND | SD #140 BOND 764 | 0.8342371393 | $554,580 | $554,580 | $462.65 | | |
| SD140GEN | SD #140 GENERAL 760 | 2.0646500647 | $554,580 | $554,580 | $1,145.01 | | |
| ST2 | STATE SCHOOL PART 2 600 | 0.8131451643 | $554,580 | $554,580 | $450.95 | | |
| STATESCHL | STATE SCHOOL 600 | 1.5158548041 | $554,580 | $554,580 | $840.66 | | |
| STREFUND | STATE REFUND LEVY 603 | 0.0000000000 | $554,580 | $554,580 | $0.00 | | |
| CWWBOND | C OF WW BOND 643 | 0.2760494372 | $554,580 | $554,580 | $153.09 | | |
| CWWGEN | CITY OF WW 631 | 1.6100204973 | $554,580 | $554,580 | $892.89 | | |
| CWWRFD | CITY OF WALLA WALLA REFUND 631 | 0.0000000000 | $554,580 | $554,580 | $0.00 | | |
| | Total Tax Rate: | 8.7973694689 | | | | | |
| | | | | Taxes w/Current Exemptions: | $4,878.84 | | |
| | | | | Taxes w/o Exemptions: | $4,878.84 | | |
Improvement / Building
| Improvement #1: | RESIDENTIAL | State Code: | 11 | 1512.0 sqft | Value: | $454,080 |
| Exterior Wall: | HARDBOARD | Heating/Cooling: | HEAT PUMP | | Number of Bathrooms: | 3 | Number of Bedrooms: | 4 | | Plumbing: | 14 | Roof Covering: | COMP SHINGLE |
|
| | Type | Description | Class CD | Sub Class CD | Year Built | Area |
| | MA | Main Area | 1 | 35 | 1985 | 1512.0 |
| | SI1 | SITE IMPROVEMENT | 1 | 35 | 1985 | 4.5 |
| | BASE | BASEMENT | 1 | 35 | 1985 | 1242.0 |
| | BPF | BASEMENT -PARTITIONED FINISH | 1 | 35 | 1985 | 1242.0 |
| | ATG | Attached Garage | 1 | 35 | 1985 | 598.0 |
| | S1F | Single One Story Fireplace | 1 | 35 | 1985 | 1.0 |
| | RPC | OPEN PORCH W/ROOF , CEILED | 1 | 35 | 1985 | 120.0 |
| | OSP | Open | 1 | 35 | 1985 | 192.0 |
Sketch
Property Image
Land
| 1 | RES 1 | Converted: Residential | 0.2307 | 10050.00 | 0.00 | 0.00 | 1.00 | $100,500 | $0 |
Roll Value History
| 2026 | N/A | N/A | N/A | N/A | N/A |
| 2025 | $432,660 | $120,600 | $0 | $553,260 | $553,260 |
| 2024 | $454,080 | $100,500 | $0 | $554,580 | $554,580 |
| 2023 | $454,080 | $100,500 | $0 | $554,580 | $554,580 |
| 2022 | $504,530 | $82,910 | $0 | $587,440 | $587,440 |
| 2021 | $301,510 | $82,910 | $0 | $384,420 | $384,420 |
| 2020 | $231,930 | $82,910 | $0 | $314,840 | $314,840 |
| 2019 | $231,930 | $82,910 | $0 | $314,840 | $314,840 |
| 2018 | $246,990 | $47,200 | $0 | $294,190 | $294,190 |
| 2017 | $235,220 | $47,200 | $0 | $282,420 | $282,420 |
| 2016 | $213,840 | $47,200 | $0 | $261,040 | $261,040 |
| 2015 | $213,840 | $47,200 | $0 | $261,040 | $261,040 |
| 2014 | $194,400 | $47,200 | $0 | $241,600 | $241,600 |
| 2013 | $194,400 | $47,200 | $0 | $241,600 | $241,600 |
| 2012 | $194,400 | $47,200 | $0 | $0 | $0 |
| 2011 | $194,400 | $47,200 | $0 | $0 | $0 |
| 2010 | $172,400 | $47,200 | $0 | $0 | $0 |
| 2009 | $196,800 | $47,200 | $0 | $0 | $0 |
| 2008 | $196,800 | $47,200 | $0 | $0 | $0 |
| 2007 | $129,300 | $24,700 | $0 | $0 | $0 |
Deed and Sales History
| 1 | 10/28/2021 | SWD | STATUTORY WARRANTY DEED | FRANK LENEVE A | HEITZMANN DERIK J & KAYLA M | | | $430,000.00 | 142753 | 2021-12985 |
| 2 | 10/13/1983 | WARRANTY D | WARRANTY DEED | | | | | $94,300.00 | 0 | 1408-307438 |
Payout Agreement
| No payout information available.. |