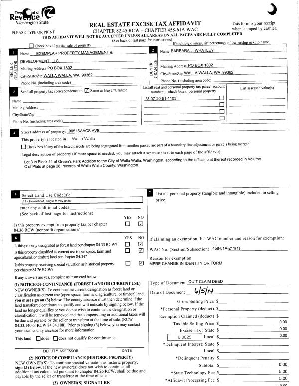
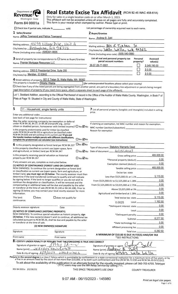
Property
Account |
| Property ID: | 10044 | Abbreviated Legal Description: | STODDARDS LOT 1 |
| Parcel Number: | 360728770001 | Agent Code: | |
| Type: | Real | | |
| Tax Area: | 1 - OL-140-F | Land Use Code | 11 |
| Open Space: | N | DFL | N |
| Historic Property: | N | Remodel Property: | N |
| Multi-Family Redevelopment: | N | | |
| Township: | 7 | Section: | 28 |
| Range: | 36 |
Location |
| Address: | 801 E TIETAN ST WA 99362 | Mapsco: | |
| Neighborhood: | G Res | Map ID: | |
| Neighborhood CD: | 614011 |
Owner |
| Name: | ZAHL ANDREW B | Owner ID: | 73755 |
| Mailing Address: | 801 E TIETAN ST WALLA WALLA, WA 99362 | % Ownership: | 100.0000000000% |
| | | Exemptions: | |
Taxes and Assessment Details
Values
| (+) Improvement Homesite Value: | + | $0 | |
| (+) Improvement Non-Homesite Value: | + | $343,110 | |
| (+) Land Homesite Value: | + | $0 | |
| (+) Land Non-Homesite Value: | + | $120,300 | |
| (+) Curr Use (HS): | + | $0 | $0 |
| (+) Curr Use (NHS): | + | $0 | $0 |
| | | -------------------------- | |
| (=) Market Value: | = | $463,410 | |
| (–) Productivity Loss: | – | $0 | |
| | | -------------------------- | |
| (=) Subtotal: | = | $463,410 | |
| (+) Senior Appraised Value: | + | $0 | |
| (+) Non-Senior Appraised Value: | + | $463,410 | |
| | | -------------------------- | |
| (=) Total Appraised Value: | = | $463,410 | |
| (–) Senior Exemption Loss: | – | $0 | |
| (–) Exemption Loss: | – | $0 | |
| | | -------------------------- | |
| (=) Taxable Value: | = | $463,410 | |
Taxing Jurisdiction
| Owner: | ZAHL ANDREW B | | |
| % Ownership: | 100.0000000000% | | |
| Total Value: | $463,410 | | |
| Tax Area: | 1 - OL-140-F |
| CERFD | CURRENT EXPENSE REFUND 010 | 0.0000000000 | $463,410 | $463,410 | $0.00 | | |
| CURREXP | CURRENT EXPENSE 010 | 1.0175366760 | $463,410 | $463,410 | $471.54 | | |
| HUMNSERV | HUMAN SERVICES 119 | 0.0250000000 | $463,410 | $463,410 | $11.59 | | |
| SLDREL | SOLDIERS RELIEF 121 | 0.0155990005 | $463,410 | $463,410 | $7.23 | | |
| EMERGSER | EMS 147 | 0.3792580840 | $463,410 | $463,410 | $175.75 | | |
| EMSRFD | EMS REFUND 147 | 0.0000000000 | $463,410 | $463,410 | $0.00 | | |
| PORTRFD | PORT REFUND 640 | 0.0000000000 | $463,410 | $463,410 | $0.00 | | |
| PORTWWGEN | PORT OF WW 640 | 0.2460186015 | $463,410 | $463,410 | $114.01 | | |
| SD140BOND | SD #140 BOND 764 | 0.8342371393 | $463,410 | $463,410 | $386.59 | | |
| SD140GEN | SD #140 GENERAL 760 | 2.0646500647 | $463,410 | $463,410 | $956.78 | | |
| ST2 | STATE SCHOOL PART 2 600 | 0.8131451643 | $463,410 | $463,410 | $376.82 | | |
| STATESCHL | STATE SCHOOL 600 | 1.5158548041 | $463,410 | $463,410 | $702.46 | | |
| STREFUND | STATE REFUND LEVY 603 | 0.0000000000 | $463,410 | $463,410 | $0.00 | | |
| CWWBOND | C OF WW BOND 643 | 0.2760494372 | $463,410 | $463,410 | $127.92 | | |
| CWWGEN | CITY OF WW 631 | 1.6100204973 | $463,410 | $463,410 | $746.10 | | |
| CWWRFD | CITY OF WALLA WALLA REFUND 631 | 0.0000000000 | $463,410 | $463,410 | $0.00 | | |
| | Total Tax Rate: | 8.7973694689 | | | | | |
| | | | | Taxes w/Current Exemptions: | $4,076.79 | | |
| | | | | Taxes w/o Exemptions: | $4,076.79 | | |
Improvement / Building
| Improvement #1: | RESIDENTIAL | State Code: | 11 | 2048.0 sqft | Value: | $343,110 |
| Exterior Wall: | PLYWOOD | Heating/Cooling: | WARM & COOLED AIR | | Number of Bathrooms: | 2.5 | Number of Bedrooms: | 3 | | Plumbing: | 12 | Roof Covering: | COMP SHINGLE |
|
| | Type | Description | Class CD | Sub Class CD | Year Built | Area |
| | MA | Main Area | 1 | 35 | 1960 | 2048.0 |
| | BASE | BASEMENT | 1 | 35 | 1960 | 676.0 |
| | BPF | BASEMENT -PARTITIONED FINISH | 1 | 35 | 1960 | 600.0 |
| | SI1 | SITE IMPROVEMENT | 1 | 35 | 1960 | 3.5 |
| | S1F | Single One Story Fireplace | 1 | 35 | 1960 | 1.0 |
| | SMP | SWIMMING POOL | 1 | 35 | 1960 | 1.0 |
| | RPC | OPEN PORCH W/ROOF , CEILED | 1 | 35 | 1960 | 12.0 |
| | WOD | Wood Deck | 1 | 35 | 1960 | 115.0 |
| | ATG | Attached Garage | 1 | 35 | 1960 | 624.0 |
Sketch
Property Image
Land
| 1 | RES 1 | Converted: Residential | 0.2812 | 12250.00 | 0.00 | 0.00 | 1.00 | $120,300 | $0 |
Roll Value History
| 2026 | N/A | N/A | N/A | N/A | N/A |
| 2025 | $349,470 | $144,310 | $0 | $493,780 | $493,780 |
| 2024 | $343,110 | $120,300 | $0 | $463,410 | $463,410 |
| 2023 | $343,110 | $120,300 | $0 | $463,410 | $463,410 |
| 2022 | $428,890 | $99,230 | $0 | $528,120 | $528,120 |
| 2021 | $357,410 | $99,230 | $0 | $456,640 | $456,640 |
| 2020 | $238,270 | $99,230 | $0 | $337,500 | $337,500 |
| 2019 | $238,270 | $99,230 | $0 | $337,500 | $337,500 |
| 2018 | $253,880 | $49,000 | $0 | $302,880 | $302,880 |
| 2017 | $253,880 | $49,000 | $0 | $302,880 | $302,880 |
| 2016 | $230,800 | $49,000 | $0 | $279,800 | $279,800 |
| 2015 | $230,800 | $49,000 | $0 | $279,800 | $279,800 |
| 2014 | $230,800 | $49,000 | $0 | $279,800 | $279,800 |
| 2013 | $230,800 | $49,000 | $0 | $279,800 | $279,800 |
| 2012 | $230,800 | $49,000 | $0 | $0 | $0 |
| 2011 | $230,800 | $49,000 | $0 | $0 | $0 |
| 2010 | $205,400 | $49,000 | $0 | $0 | $0 |
| 2009 | $233,700 | $49,000 | $0 | $0 | $0 |
| 2008 | $233,700 | $49,000 | $0 | $0 | $0 |
| 2007 | $165,400 | $26,500 | $0 | $0 | $0 |
Deed and Sales History
| 1 | 06/15/2023 | SWD | STATUTORY WARRANTY DEED | TOWNSEND JEFFREY & PATRICE | ZAHL ANDREW B | | | $465,000.00 | 145980 | 2023-03282 |
| 2 | 06/06/2014 | SWD | STATUTORY WARRANTY DEED | EISELE PAT W & TERRI J | TOWNSEND JEFFREY & PATRICE | | | $275,000.00 | 126025 | 2014-03869 |
| 3 | 08/15/2001 | WARRANTY D | WARRANTY DEED | | | | | $197,000.00 | 97826 | 3180-108834 |
Payout Agreement
| No payout information available.. |