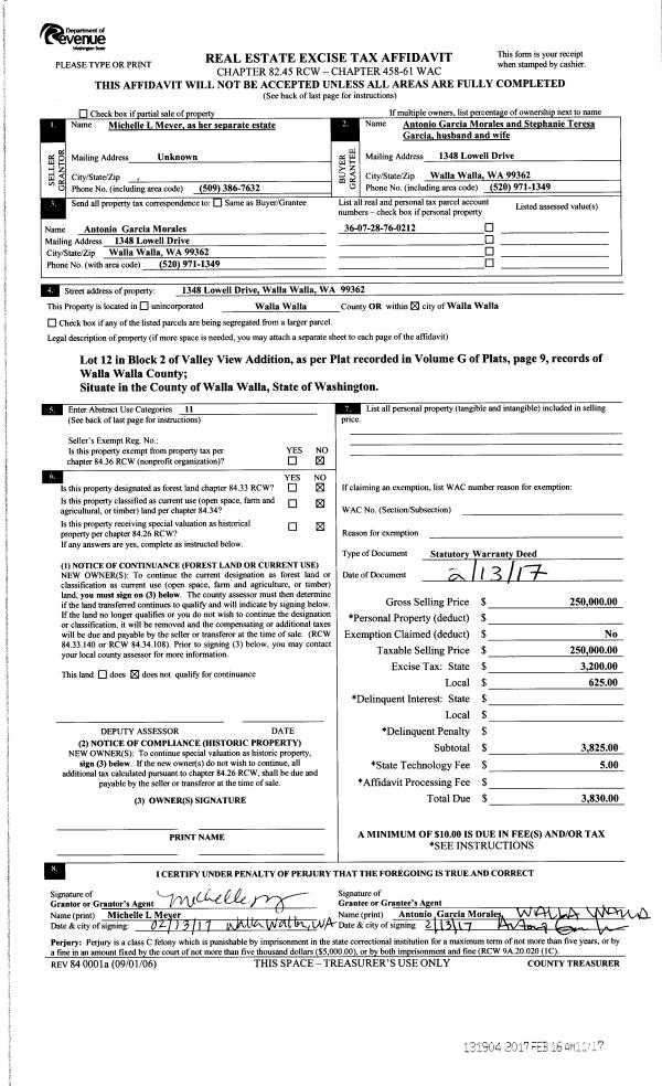
Property
Account |
| Property ID: | 10037 | Abbreviated Legal Description: | VALLEY VIEW LOT 12 BLK 2 |
| Parcel Number: | 360728760212 | Agent Code: | |
| Type: | Real | | |
| Tax Area: | 105 - 140-F-4 | Land Use Code | 11 |
| Open Space: | N | DFL | N |
| Historic Property: | N | Remodel Property: | N |
| Multi-Family Redevelopment: | N | | |
| Township: | 7 | Section: | 28 |
| Range: | 36 |
Location |
| Address: | 1348 LOWELL DR WA 99362 | Mapsco: | |
| Neighborhood: | G Res | Map ID: | |
| Neighborhood CD: | 614011 |
Owner |
| Name: | MORALES ANTONIO GARCIA | Owner ID: | 60397 |
| Mailing Address: | STEPHANIE TERESA GARCIA 1348 LOWELL DR WALLA WALLA, WA 99362 | % Ownership: | 100.0000000000% |
| | | Exemptions: | |
Taxes and Assessment Details
Property Tax Information as of
02/21/2026
Click on "Statement Details" to expand or collapse a tax statement.
* Please enter a valid date ** Please enter a valid date *
Statement Details |
| | TOTAL: | $0.00 | $0.00 | $0.00 | $0.00 | $0.00 | $0.00 |
|
| | $0.00 | $0.00 | $0.00 | $0.00 | $0.00 | $0.00 |
Values
| (+) Improvement Homesite Value: | + | $0 | |
| (+) Improvement Non-Homesite Value: | + | $304,570 | |
| (+) Land Homesite Value: | + | $0 | |
| (+) Land Non-Homesite Value: | + | $128,170 | |
| (+) Curr Use (HS): | + | $0 | $0 |
| (+) Curr Use (NHS): | + | $0 | $0 |
| | | -------------------------- | |
| (=) Market Value: | = | $432,740 | |
| (–) Productivity Loss: | – | $0 | |
| | | -------------------------- | |
| (=) Subtotal: | = | $432,740 | |
| (+) Senior Appraised Value: | + | $0 | |
| (+) Non-Senior Appraised Value: | + | $432,740 | |
| | | -------------------------- | |
| (=) Total Appraised Value: | = | $432,740 | |
| (–) Senior Exemption Loss: | – | $0 | |
| (–) Exemption Loss: | – | $0 | |
| | | -------------------------- | |
| (=) Taxable Value: | = | $432,740 | |
Taxing Jurisdiction
| Owner: | MORALES ANTONIO GARCIA | | |
| % Ownership: | 100.0000000000% | | |
| Total Value: | $432,740 | | |
| Tax Area: | 105 - 140-F-4 |
| CERFD | CURRENT EXPENSE REFUND 010 | 0.0000000000 | $432,740 | $432,740 | $0.00 | | |
| CURREXP | CURRENT EXPENSE 010 | 1.0175366760 | $432,740 | $432,740 | $440.33 | | |
| HUMNSERV | HUMAN SERVICES 119 | 0.0250000000 | $432,740 | $432,740 | $10.82 | | |
| SLDREL | SOLDIERS RELIEF 121 | 0.0155990005 | $432,740 | $432,740 | $6.75 | | |
| EMERGSER | EMS 147 | 0.3792580840 | $432,740 | $432,740 | $164.12 | | |
| EMSRFD | EMS REFUND 147 | 0.0000000000 | $432,740 | $432,740 | $0.00 | | |
| FD4EXP | FD #4 EXPENSE 686 | 0.8836993059 | $432,740 | $432,740 | $382.41 | | |
| RLBRFD | RURAL LIBRARY REFUND 623 | 0.0000000000 | $432,740 | $432,740 | $0.00 | | |
| RURALLIB | RURAL LIBRARY 623 | 0.3710609029 | $432,740 | $432,740 | $160.57 | | |
| PORTRFD | PORT REFUND 640 | 0.0000000000 | $432,740 | $432,740 | $0.00 | | |
| PORTWWGEN | PORT OF WW 640 | 0.2460186015 | $432,740 | $432,740 | $106.46 | | |
| SD140BOND | SD #140 BOND 764 | 0.8342371393 | $432,740 | $432,740 | $361.01 | | |
| SD140GEN | SD #140 GENERAL 760 | 2.0646500647 | $432,740 | $432,740 | $893.46 | | |
| ST2 | STATE SCHOOL PART 2 600 | 0.8131451643 | $432,740 | $432,740 | $351.88 | | |
| STATESCHL | STATE SCHOOL 600 | 1.5158548041 | $432,740 | $432,740 | $655.97 | | |
| STREFUND | STATE REFUND LEVY 603 | 0.0000000000 | $432,740 | $432,740 | $0.00 | | |
| COROAD | COUNTY ROAD 115 | 1.6549953990 | $432,740 | $432,740 | $716.18 | | |
| CRPRD | COUNTY ROAD REFUND 115 | 0.0000000000 | $432,740 | $432,740 | $0.00 | | |
| | Total Tax Rate: | 9.8210551422 | | | | | |
| | | | | Taxes w/Current Exemptions: | $4,249.96 | | |
| | | | | Taxes w/o Exemptions: | $4,249.96 | | |
Improvement / Building
| Improvement #1: | RESIDENTIAL | State Code: | 11 | 1777.0 sqft | Value: | $304,570 |
| Exterior Wall: | VINYL | Foundation: | SLAB FOUNDATION | | Heating/Cooling: | WARM & COOLED AIR | Number of Bathrooms: | 2 | | Number of Bedrooms: | 4 | Plumbing: | 9 | | Roof Covering: | COMP SHINGLE |   |   |
|
| | Type | Description | Class CD | Sub Class CD | Year Built | Area |
| | MA | Main Area | 3 | 35 | 1975 | 1777.0 |
| | UPFL | Upper Floor (included in main area) | 3 | 35 | 1975 | 625.0 |
| | SI1 | SITE IMPROVEMENT | 3 | 35 | 1975 | 2.0 |
| | S1F | Single One Story Fireplace | 3 | 35 | 1975 | 1.0 |
| | RPC | OPEN PORCH W/ROOF , CEILED | 3 | 35 | 1975 | 138.0 |
| | WDR | WOOD DECK W/ROOF | 3 | 35 | 1975 | 500.0 |
| | ATG | Attached Garage | 3 | 35 | 1975 | 504.0 |
Sketch
Property Image
Land
| 1 | RES 1 | Converted: Residential | 0.4700 | 20475.00 | 0.00 | 0.00 | 1.00 | $128,170 | $0 |
Roll Value History
| 2026 | N/A | N/A | N/A | N/A | N/A |
| 2025 | $318,390 | $150,900 | $0 | $469,290 | $469,290 |
| 2024 | $335,020 | $128,170 | $0 | $463,190 | $463,190 |
| 2023 | $304,570 | $128,170 | $0 | $432,740 | $432,740 |
| 2022 | $304,570 | $104,830 | $0 | $409,400 | $409,400 |
| 2021 | $217,550 | $104,830 | $0 | $322,380 | $322,380 |
| 2020 | $181,290 | $104,830 | $0 | $286,120 | $286,120 |
| 2019 | $181,290 | $104,830 | $0 | $286,120 | $286,120 |
| 2018 | $171,110 | $56,000 | $0 | $227,110 | $227,110 |
| 2017 | $162,960 | $56,000 | $0 | $218,960 | $218,960 |
| 2016 | $155,200 | $56,000 | $0 | $211,200 | $211,200 |
| 2015 | $155,200 | $56,000 | $0 | $211,200 | $211,200 |
| 2014 | $155,200 | $56,000 | $0 | $211,200 | $211,200 |
| 2013 | $155,200 | $56,000 | $0 | $211,200 | $211,200 |
| 2012 | $149,500 | $56,000 | $0 | $0 | $0 |
| 2011 | $149,500 | $56,000 | $0 | $0 | $0 |
| 2010 | $149,500 | $56,000 | $0 | $0 | $0 |
| 2009 | $172,300 | $56,000 | $0 | $0 | $0 |
| 2008 | $172,300 | $56,000 | $0 | $0 | $0 |
| 2007 | $108,800 | $33,500 | $0 | $0 | $0 |
Deed and Sales History
| 1 | 02/16/2017 | SWD | STATUTORY WARRANTY DEED | MEYER DAVID J | MORALES ANTONIO GARCIA | | | $250,000.00 | 131904 | 2017-01266 |
| 2 | 09/15/2005 | COMMUNITY | COMMUNITY PROPERTY AGREEMENT | MEYER DAVID J | MEYER DAVID J | | | | 0 | 2005-11475 |
| 3 | 11/05/2003 | WARRANTY D | WARRANTY DEED | RAINWATER, PATRICK C & JAYNE M | MEYER, DAVID J | | | $178,000.00 | 103459 | 2003-17180 |
| 4 | 12/06/1990 | WARRANTY D | WARRANTY DEED | | | | | $95,000.00 | 71287 | 1869-008497 |
Payout Agreement
| No payout information available.. |