Property
Account |
| Property ID: | 10029 | Abbreviated Legal Description: | VALLEY VIEW LOT 7 BLK 1 |
| Parcel Number: | 360728760107 | Agent Code: | |
| Type: | Real | | |
| Tax Area: | 105 - 140-F-4 | Land Use Code | 11 |
| Open Space: | N | DFL | N |
| Historic Property: | N | Remodel Property: | N |
| Multi-Family Redevelopment: | N | | |
| Township: | 7 | Section: | 28 |
| Range: | 36 |
Location |
| Address: | 1351 LOWELL DR WA 99362 | Mapsco: | |
| Neighborhood: | G Res | Map ID: | |
| Neighborhood CD: | 614011 |
Owner |
| Name: | BERG ADAM D & LAUREN | Owner ID: | 65781 |
| Mailing Address: | 1351 LOWELL DR WALLA WALLA, WA 99362 | % Ownership: | 100.0000000000% |
| | | Exemptions: | |
Taxes and Assessment Details
Property Tax Information as of
02/21/2026
Click on "Statement Details" to expand or collapse a tax statement.
* Please enter a valid date ** Please enter a valid date *
Statement Details |
| | TOTAL: | $0.00 | $0.00 | $0.00 | $0.00 | $0.00 | $0.00 |
|
| | $0.00 | $0.00 | $0.00 | $0.00 | $0.00 | $0.00 |
Values
| (+) Improvement Homesite Value: | + | $0 | |
| (+) Improvement Non-Homesite Value: | + | $440,490 | |
| (+) Land Homesite Value: | + | $0 | |
| (+) Land Non-Homesite Value: | + | $130,280 | |
| (+) Curr Use (HS): | + | $0 | $0 |
| (+) Curr Use (NHS): | + | $0 | $0 |
| | | -------------------------- | |
| (=) Market Value: | = | $570,770 | |
| (–) Productivity Loss: | – | $0 | |
| | | -------------------------- | |
| (=) Subtotal: | = | $570,770 | |
| (+) Senior Appraised Value: | + | $0 | |
| (+) Non-Senior Appraised Value: | + | $570,770 | |
| | | -------------------------- | |
| (=) Total Appraised Value: | = | $570,770 | |
| (–) Senior Exemption Loss: | – | $0 | |
| (–) Exemption Loss: | – | $0 | |
| | | -------------------------- | |
| (=) Taxable Value: | = | $570,770 | |
Taxing Jurisdiction
| Owner: | BERG ADAM D & LAUREN | | |
| % Ownership: | 100.0000000000% | | |
| Total Value: | $570,770 | | |
| Tax Area: | 105 - 140-F-4 |
| CERFD | CURRENT EXPENSE REFUND 010 | 0.0000000000 | $570,770 | $570,770 | $0.00 | | |
| CURREXP | CURRENT EXPENSE 010 | 1.0175366760 | $570,770 | $570,770 | $580.78 | | |
| HUMNSERV | HUMAN SERVICES 119 | 0.0250000000 | $570,770 | $570,770 | $14.27 | | |
| SLDREL | SOLDIERS RELIEF 121 | 0.0155990005 | $570,770 | $570,770 | $8.90 | | |
| EMERGSER | EMS 147 | 0.3792580840 | $570,770 | $570,770 | $216.47 | | |
| EMSRFD | EMS REFUND 147 | 0.0000000000 | $570,770 | $570,770 | $0.00 | | |
| FD4EXP | FD #4 EXPENSE 686 | 0.8836993059 | $570,770 | $570,770 | $504.39 | | |
| RLBRFD | RURAL LIBRARY REFUND 623 | 0.0000000000 | $570,770 | $570,770 | $0.00 | | |
| RURALLIB | RURAL LIBRARY 623 | 0.3710609029 | $570,770 | $570,770 | $211.79 | | |
| PORTRFD | PORT REFUND 640 | 0.0000000000 | $570,770 | $570,770 | $0.00 | | |
| PORTWWGEN | PORT OF WW 640 | 0.2460186015 | $570,770 | $570,770 | $140.42 | | |
| SD140BOND | SD #140 BOND 764 | 0.8342371393 | $570,770 | $570,770 | $476.16 | | |
| SD140GEN | SD #140 GENERAL 760 | 2.0646500647 | $570,770 | $570,770 | $1,178.44 | | |
| ST2 | STATE SCHOOL PART 2 600 | 0.8131451643 | $570,770 | $570,770 | $464.12 | | |
| STATESCHL | STATE SCHOOL 600 | 1.5158548041 | $570,770 | $570,770 | $865.20 | | |
| STREFUND | STATE REFUND LEVY 603 | 0.0000000000 | $570,770 | $570,770 | $0.00 | | |
| COROAD | COUNTY ROAD 115 | 1.6549953990 | $570,770 | $570,770 | $944.62 | | |
| CRPRD | COUNTY ROAD REFUND 115 | 0.0000000000 | $570,770 | $570,770 | $0.00 | | |
| | Total Tax Rate: | 9.8210551422 | | | | | |
| | | | | Taxes w/Current Exemptions: | $5,605.56 | | |
| | | | | Taxes w/o Exemptions: | $5,605.56 | | |
Improvement / Building
| Improvement #1: | RESIDENTIAL | State Code: | 11 | 1393.0 sqft | Value: | $440,490 |
| Exterior Wall: | PLYWOOD | Heating/Cooling: | WARM & COOLED AIR | | Number of Bathrooms: | 3 | Number of Bedrooms: | 4 | | Plumbing: | 12 | Roof Covering: | COMP SHINGLE |
|
| | Type | Description | Class CD | Sub Class CD | Year Built | Area |
| | MA | Main Area | 11 | 35 | 1973 | 1393.0 |
| | SI1 | SITE IMPROVEMENT | 11 | 35 | 1973 | 3.0 |
| | BASE | BASEMENT | 11 | 35 | 1973 | 1350.0 |
| | BPF | BASEMENT -PARTITIONED FINISH | 11 | 35 | 1973 | 1350.0 |
| | D2F | Double 2 Story Fireplace | 11 | 35 | 1973 | 1.0 |
| | RPO | OPEN PORCH W/ROOF | 11 | 35 | 1973 | 35.0 |
| | WOD | Wood Deck | 11 | 35 | 1973 | 264.0 |
| | ATG | Attached Garage | 11 | 35 | 1973 | 528.0 |
Sketch
Property Image
Land
| 1 | RES 1 | Converted: Residential | 0.5219 | 22736.00 | 0.00 | 0.00 | 1.00 | $130,280 | $0 |
Roll Value History
| 2026 | N/A | N/A | N/A | N/A | N/A |
| 2025 | $426,250 | $152,790 | $0 | $579,040 | $579,040 |
| 2024 | $440,490 | $130,280 | $0 | $570,770 | $570,770 |
| 2023 | $440,490 | $130,280 | $0 | $570,770 | $570,770 |
| 2022 | $440,490 | $106,180 | $0 | $546,670 | $546,670 |
| 2021 | $303,790 | $106,180 | $0 | $409,970 | $409,970 |
| 2020 | $243,030 | $106,180 | $0 | $349,210 | $349,210 |
| 2019 | $243,030 | $106,180 | $0 | $349,210 | $349,210 |
| 2018 | $213,890 | $58,000 | $0 | $271,890 | $271,890 |
| 2017 | $203,700 | $58,000 | $0 | $261,700 | $261,700 |
| 2016 | $194,000 | $58,000 | $0 | $252,000 | $252,000 |
| 2015 | $194,000 | $58,000 | $0 | $252,000 | $252,000 |
| 2014 | $194,000 | $58,000 | $0 | $252,000 | $252,000 |
| 2013 | $194,000 | $58,000 | $0 | $252,000 | $252,000 |
| 2012 | $194,000 | $58,000 | $0 | $0 | $0 |
| 2011 | $194,000 | $58,000 | $0 | $0 | $0 |
| 2010 | $194,000 | $58,000 | $0 | $0 | $0 |
| 2009 | $222,000 | $58,000 | $0 | $0 | $0 |
| 2008 | $222,000 | $58,000 | $0 | $0 | $0 |
| 2007 | $150,600 | $35,500 | $0 | $0 | $0 |
Deed and Sales History
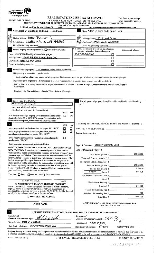
| 1 | 08/23/2019 | SWD | STATUTORY WARRANTY DEED | BRADDOCK MIKE D & LISA R | BERG ADAM D & LAUREN | | | $421,500.00 | 137551 | 2019-06525 |
| 2 | 02/12/2002 | WARRANTY D | WARRANTY DEED | | | | | $187,000.00 | 98913 | 3280-201748 |
Payout Agreement
| No payout information available.. |