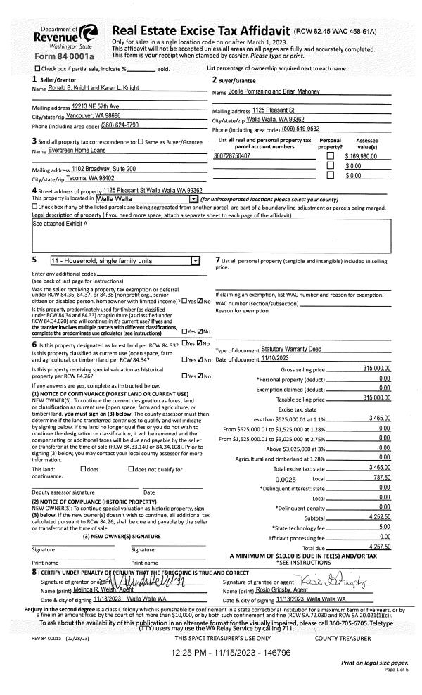
Property
Account |
| Property ID: | 10024 | Abbreviated Legal Description: | TAYLORS S 19' OF E 1/2 OF LOT 1 BLK 4; E1/2 OF LOT 4 BLK 4 |
| Parcel Number: | 360728750407 | Agent Code: | |
| Type: | Real | | |
| Tax Area: | 1 - OL-140-F | Land Use Code | 11 |
| Open Space: | N | DFL | N |
| Historic Property: | N | Remodel Property: | N |
| Multi-Family Redevelopment: | N | | |
| Township: | 7 | Section: | 28 |
| Range: | 36 |
Location |
| Address: | 1125 PLEASANT ST WA 99362 | Mapsco: | |
| Neighborhood: | G Res | Map ID: | |
| Neighborhood CD: | 614011 |
Owner |
| Name: | KNIGHT RONALD B & KAREN L | Owner ID: | 11513 |
| Mailing Address: | 12213 NE 57TH AVE VANCOUVER, WA 98686 | % Ownership: | 100.0000000000% |
| | | Exemptions: | |
Taxes and Assessment Details
Property Tax Information as of
02/21/2026
Click on "Statement Details" to expand or collapse a tax statement.
* Please enter a valid date ** Please enter a valid date *
Statement Details |
| | TOTAL: | $0.00 | $0.00 | $0.00 | $0.00 | $0.00 | $0.00 |
|
| | $0.00 | $0.00 | $0.00 | $0.00 | $0.00 | $0.00 |
Values
| (+) Improvement Homesite Value: | + | $0 | |
| (+) Improvement Non-Homesite Value: | + | $169,980 | |
| (+) Land Homesite Value: | + | $0 | |
| (+) Land Non-Homesite Value: | + | $110,160 | |
| (+) Curr Use (HS): | + | $0 | $0 |
| (+) Curr Use (NHS): | + | $0 | $0 |
| | | -------------------------- | |
| (=) Market Value: | = | $280,140 | |
| (–) Productivity Loss: | – | $0 | |
| | | -------------------------- | |
| (=) Subtotal: | = | $280,140 | |
| (+) Senior Appraised Value: | + | $0 | |
| (+) Non-Senior Appraised Value: | + | $280,140 | |
| | | -------------------------- | |
| (=) Total Appraised Value: | = | $280,140 | |
| (–) Senior Exemption Loss: | – | $0 | |
| (–) Exemption Loss: | – | $0 | |
| | | -------------------------- | |
| (=) Taxable Value: | = | $280,140 | |
Taxing Jurisdiction
| Owner: | KNIGHT RONALD B & KAREN L | | |
| % Ownership: | 100.0000000000% | | |
| Total Value: | $280,140 | | |
| Tax Area: | 1 - OL-140-F |
| CERFD | CURRENT EXPENSE REFUND 010 | 0.0000000000 | $280,140 | $280,140 | $0.00 | | |
| CURREXP | CURRENT EXPENSE 010 | 1.0175366760 | $280,140 | $280,140 | $285.05 | | |
| HUMNSERV | HUMAN SERVICES 119 | 0.0250000000 | $280,140 | $280,140 | $7.00 | | |
| SLDREL | SOLDIERS RELIEF 121 | 0.0155990005 | $280,140 | $280,140 | $4.37 | | |
| EMERGSER | EMS 147 | 0.3792580840 | $280,140 | $280,140 | $106.25 | | |
| EMSRFD | EMS REFUND 147 | 0.0000000000 | $280,140 | $280,140 | $0.00 | | |
| PORTRFD | PORT REFUND 640 | 0.0000000000 | $280,140 | $280,140 | $0.00 | | |
| PORTWWGEN | PORT OF WW 640 | 0.2460186015 | $280,140 | $280,140 | $68.92 | | |
| SD140BOND | SD #140 BOND 764 | 0.8342371393 | $280,140 | $280,140 | $233.70 | | |
| SD140GEN | SD #140 GENERAL 760 | 2.0646500647 | $280,140 | $280,140 | $578.39 | | |
| ST2 | STATE SCHOOL PART 2 600 | 0.8131451643 | $280,140 | $280,140 | $227.79 | | |
| STATESCHL | STATE SCHOOL 600 | 1.5158548041 | $280,140 | $280,140 | $424.65 | | |
| STREFUND | STATE REFUND LEVY 603 | 0.0000000000 | $280,140 | $280,140 | $0.00 | | |
| CWWBOND | C OF WW BOND 643 | 0.2760494372 | $280,140 | $280,140 | $77.33 | | |
| CWWGEN | CITY OF WW 631 | 1.6100204973 | $280,140 | $280,140 | $451.03 | | |
| CWWRFD | CITY OF WALLA WALLA REFUND 631 | 0.0000000000 | $280,140 | $280,140 | $0.00 | | |
| | Total Tax Rate: | 8.7973694689 | | | | | |
| | | | | Taxes w/Current Exemptions: | $2,464.48 | | |
| | | | | Taxes w/o Exemptions: | $2,464.48 | | |
Improvement / Building
| Improvement #1: | RESIDENTIAL | State Code: | 11 | 1120.0 sqft | Value: | $169,980 |
| Exterior Wall: | SHINGLE | Heating/Cooling: | FORCED AIR | | Number of Bathrooms: | 1 | Number of Bedrooms: | 2 | | Plumbing: | 6 | Roof Covering: | COMP SHINGLE |
|
| | Type | Description | Class CD | Sub Class CD | Year Built | Area |
| | MA | Main Area | 1 | 30 | 1916 | 1120.0 |
| | SI1 | SITE IMPROVEMENT | 1 | 30 | 1916 | 1.0 |
| | BASE | BASEMENT | 1 | 30 | 1916 | 336.0 |
| | RCD | WOOD DECK W/ROOF, CEILED | 1 | 30 | 1916 | 128.0 |
| | CPC | COVERED CARPORT/PATIO | 1 | 30 | 1916 | 616.0 |
Sketch
Property Image
Land
| 1 | RES 1 | Converted: Residential | 0.2529 | 11016.00 | 0.00 | 0.00 | 1.00 | $110,160 | $0 |
Roll Value History
| 2026 | N/A | N/A | N/A | N/A | N/A |
| 2025 | $191,890 | $132,190 | $0 | $324,080 | $324,080 |
| 2024 | $203,980 | $110,160 | $0 | $314,140 | $314,140 |
| 2023 | $169,980 | $110,160 | $0 | $280,140 | $280,140 |
| 2022 | $169,980 | $90,880 | $0 | $260,860 | $260,860 |
| 2021 | $141,650 | $90,880 | $0 | $232,530 | $232,530 |
| 2020 | $101,180 | $90,880 | $0 | $192,060 | $192,060 |
| 2019 | $101,180 | $90,880 | $0 | $192,060 | $192,060 |
| 2018 | $109,540 | $48,000 | $0 | $157,540 | $157,540 |
| 2017 | $104,330 | $48,000 | $0 | $152,330 | $152,330 |
| 2016 | $90,720 | $48,000 | $0 | $138,720 | $138,720 |
| 2015 | $90,720 | $48,000 | $0 | $138,720 | $138,720 |
| 2014 | $64,800 | $48,000 | $0 | $112,800 | $112,800 |
| 2013 | $64,800 | $48,000 | $0 | $112,800 | $112,800 |
| 2012 | $53,500 | $48,000 | $0 | $0 | $0 |
| 2011 | $53,500 | $48,000 | $0 | $0 | $0 |
| 2010 | $53,500 | $48,000 | $0 | $0 | $0 |
| 2009 | $64,800 | $48,000 | $0 | $0 | $0 |
| 2008 | $64,800 | $48,000 | $0 | $0 | $0 |
| 2007 | $61,100 | $25,500 | $0 | $0 | $0 |
Deed and Sales History
| 1 | 04/29/2025 | QCD | QUIT CLAIM DEED | POMRANING JOELLE | POMRANING JOELLE | | | | 149300 | 2025-02288 |
| 2 | 11/15/2023 | SWD | STATUTORY WARRANTY DEED | KNIGHT RONALD B & KAREN L | POMRANING JOELLE | | | $315,000.00 | 146796 | 2023-06686 |
| 3 | 05/09/2002 | WARRANTY D | WARRANTY DEED | | | | | $85,400.00 | 99474 | 2002-0005513 |
Payout Agreement
| No payout information available.. |