Property
Account |
| Property ID: | 10023 | Abbreviated Legal Description: | TAYLORS E 1/2 OF LOT 1 BLK 4 LESS S 19' |
| Parcel Number: | 360728750406 | Agent Code: | |
| Type: | Real | | |
| Tax Area: | 1 - OL-140-F | Land Use Code | 11 |
| Open Space: | N | DFL | N |
| Historic Property: | N | Remodel Property: | N |
| Multi-Family Redevelopment: | N | | |
| Township: | 7 | Section: | 28 |
| Range: | 36 |
Location |
| Address: | 1124 DAKOTA ST WA 99362 | Mapsco: | |
| Neighborhood: | G Res | Map ID: | |
| Neighborhood CD: | 614011 |
Owner |
| Name: | HARWOOD ANDREA S & REED LYONS | Owner ID: | 68754 |
| Mailing Address: | 1124 DAKOTA ST WALLA WALLA, WA 99362 | % Ownership: | 100.0000000000% |
| | | Exemptions: | |
Taxes and Assessment Details
Values
| (+) Improvement Homesite Value: | + | $0 | |
| (+) Improvement Non-Homesite Value: | + | $252,970 | |
| (+) Land Homesite Value: | + | $0 | |
| (+) Land Non-Homesite Value: | + | $82,960 | |
| (+) Curr Use (HS): | + | $0 | $0 |
| (+) Curr Use (NHS): | + | $0 | $0 |
| | | -------------------------- | |
| (=) Market Value: | = | $335,930 | |
| (–) Productivity Loss: | – | $0 | |
| | | -------------------------- | |
| (=) Subtotal: | = | $335,930 | |
| (+) Senior Appraised Value: | + | $0 | |
| (+) Non-Senior Appraised Value: | + | $335,930 | |
| | | -------------------------- | |
| (=) Total Appraised Value: | = | $335,930 | |
| (–) Senior Exemption Loss: | – | $0 | |
| (–) Exemption Loss: | – | $0 | |
| | | -------------------------- | |
| (=) Taxable Value: | = | $335,930 | |
Taxing Jurisdiction
| Owner: | HARWOOD ANDREA S & REED LYONS | | |
| % Ownership: | 100.0000000000% | | |
| Total Value: | $335,930 | | |
| Tax Area: | 1 - OL-140-F |
| CERFD | CURRENT EXPENSE REFUND 010 | 0.0000000000 | $335,930 | $335,930 | $0.00 | | |
| CURREXP | CURRENT EXPENSE 010 | 1.0175366760 | $335,930 | $335,930 | $341.82 | | |
| HUMNSERV | HUMAN SERVICES 119 | 0.0250000000 | $335,930 | $335,930 | $8.40 | | |
| SLDREL | SOLDIERS RELIEF 121 | 0.0155990005 | $335,930 | $335,930 | $5.24 | | |
| EMERGSER | EMS 147 | 0.3792580840 | $335,930 | $335,930 | $127.40 | | |
| EMSRFD | EMS REFUND 147 | 0.0000000000 | $335,930 | $335,930 | $0.00 | | |
| PORTRFD | PORT REFUND 640 | 0.0000000000 | $335,930 | $335,930 | $0.00 | | |
| PORTWWGEN | PORT OF WW 640 | 0.2460186015 | $335,930 | $335,930 | $82.65 | | |
| SD140BOND | SD #140 BOND 764 | 0.8342371393 | $335,930 | $335,930 | $280.25 | | |
| SD140GEN | SD #140 GENERAL 760 | 2.0646500647 | $335,930 | $335,930 | $693.58 | | |
| ST2 | STATE SCHOOL PART 2 600 | 0.8131451643 | $335,930 | $335,930 | $273.16 | | |
| STATESCHL | STATE SCHOOL 600 | 1.5158548041 | $335,930 | $335,930 | $509.22 | | |
| STREFUND | STATE REFUND LEVY 603 | 0.0000000000 | $335,930 | $335,930 | $0.00 | | |
| CWWBOND | C OF WW BOND 643 | 0.2760494372 | $335,930 | $335,930 | $92.73 | | |
| CWWGEN | CITY OF WW 631 | 1.6100204973 | $335,930 | $335,930 | $540.85 | | |
| CWWRFD | CITY OF WALLA WALLA REFUND 631 | 0.0000000000 | $335,930 | $335,930 | $0.00 | | |
| | Total Tax Rate: | 8.7973694689 | | | | | |
| | | | | Taxes w/Current Exemptions: | $2,955.30 | | |
| | | | | Taxes w/o Exemptions: | $2,955.30 | | |
Improvement / Building
| Improvement #1: | RESIDENTIAL | State Code: | 11 | 1120.0 sqft | Value: | $252,970 |
| Exterior Wall: | SIDING | Heating/Cooling: | FORCED AIR | | Number of Bathrooms: | 1 | Number of Bedrooms: | 2 | | Plumbing: | 6 | Roof Covering: | COMP SHINGLE |
|
| | Type | Description | Class CD | Sub Class CD | Year Built | Area |
| | MA | Main Area | 1 | 30 | 1913 | 1120.0 |
| | SI1 | SITE IMPROVEMENT | 1 | 30 | 1913 | 1.0 |
| | BASE | BASEMENT | 1 | 30 | 1913 | 560.0 |
| | BRF | BASEMENT - REC FINISH | 1 | 30 | 1913 | 560.0 |
| | SWP | Solid Wall Porch | 1 | 30 | 1913 | 140.0 |
| | WDR | WOOD DECK W/ROOF | 1 | 30 | 1913 | 140.0 |
| | GSTO | GARAGE STORAGE-NO VALUE | 1 | 30 | 1913 | 400.0 |
| | OUT | OUTSIDE BASEMENT ENTRY | 1 | 30 | 1913 | 1.0 |
| | SOLR | SOLAR POWER PANELS | 1 | 30 | 2018 | 18.0 |
Sketch
Property Image
Land
| 1 | RES 1 | Converted: Residential | 0.1904 | 8296.00 | 0.00 | 0.00 | 1.00 | $82,960 | $0 |
Roll Value History
| 2026 | N/A | N/A | N/A | N/A | N/A |
| 2025 | $240,640 | $99,550 | $0 | $340,190 | $340,190 |
| 2024 | $252,970 | $82,960 | $0 | $335,930 | $335,930 |
| 2023 | $252,970 | $82,960 | $0 | $335,930 | $335,930 |
| 2022 | $229,980 | $68,440 | $0 | $298,420 | $298,420 |
| 2021 | $176,900 | $68,440 | $0 | $245,340 | $245,340 |
| 2020 | $136,080 | $68,440 | $0 | $204,520 | $204,520 |
| 2019 | $136,080 | $68,440 | $0 | $204,520 | $204,520 |
| 2018 | $91,980 | $45,700 | $0 | $137,680 | $137,680 |
| 2017 | $83,620 | $45,700 | $0 | $129,320 | $129,320 |
| 2016 | $76,020 | $45,700 | $0 | $121,720 | $121,720 |
| 2015 | $76,020 | $45,700 | $0 | $121,720 | $121,720 |
| 2014 | $72,400 | $45,700 | $0 | $118,100 | $118,100 |
| 2013 | $72,400 | $45,700 | $0 | $118,100 | $118,100 |
| 2012 | $61,900 | $45,700 | $0 | $0 | $0 |
| 2011 | $61,900 | $45,700 | $0 | $0 | $0 |
| 2010 | $61,900 | $45,700 | $0 | $0 | $0 |
| 2009 | $73,900 | $45,700 | $0 | $0 | $0 |
| 2008 | $73,900 | $45,700 | $0 | $0 | $0 |
| 2007 | $45,700 | $23,200 | $0 | $0 | $0 |
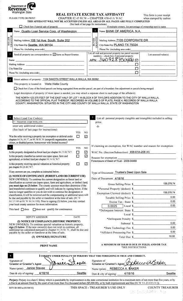
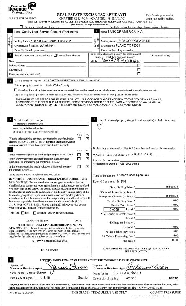
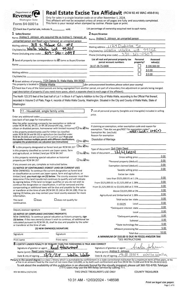
Deed and Sales History
| 1 | 12/03/2024 | QCD | QUIT CLAIM DEED | HARWOOD ANDREA S & REED LYONS | JOHNSON ANDREA S | | | | 148598 | 2024-06958 |
| 2 | 01/25/2021 | SWD | STATUTORY WARRANTY DEED | GROVE CHRISTOPHER & MICHELLE | HARWOOD ANDREA S & REED LYONS | | | $245,000.00 | 140792 | 2021-00939 |
| 3 | 11/14/2016 | SWP | Special Warranty Deed | SECRETARY OF HOUSING & URBAN DEVELOPMENT | GROVE CHRISTOPHER & MICHELLE | | | $0.00 | 131436 | 2016-09460 |
| 4 | 06/23/2016 | SWP | Special Warranty Deed | BANK OF AMERICA NA | SECRETARY OF HOUSING & URBAN DEVELOPMENT | | | $0.00 | 130648 | 2016-05605 |
| 5 | 04/18/2016 | TRUSTEES D | TRUSTEE'S DEED | BENEDICT TAMMY J | BANK OF AMERICA NA | | | $158,078.00 | 130058 | 2016-02889 |
| 6 | 04/02/2004 | QCD | QUIT CLAIM DEED | BENEDICT, WILLIAM | BENEDICT, TAMMY J | | | | 104415 | 2004-03488 |
| 7 | 12/12/2003 | WARRANTY D | WARRANTY DEED | BENEDICT, WILLIAM H | BENEDICT, TAMMY J | | | | 0 | 03-3-00280-6 |
| 8 | 09/13/1999 | WARRANTY D | WARRANTY DEED | | | | | $49,500.00 | 93610 | 2899-910569 |
Payout Agreement
| No payout information available.. |