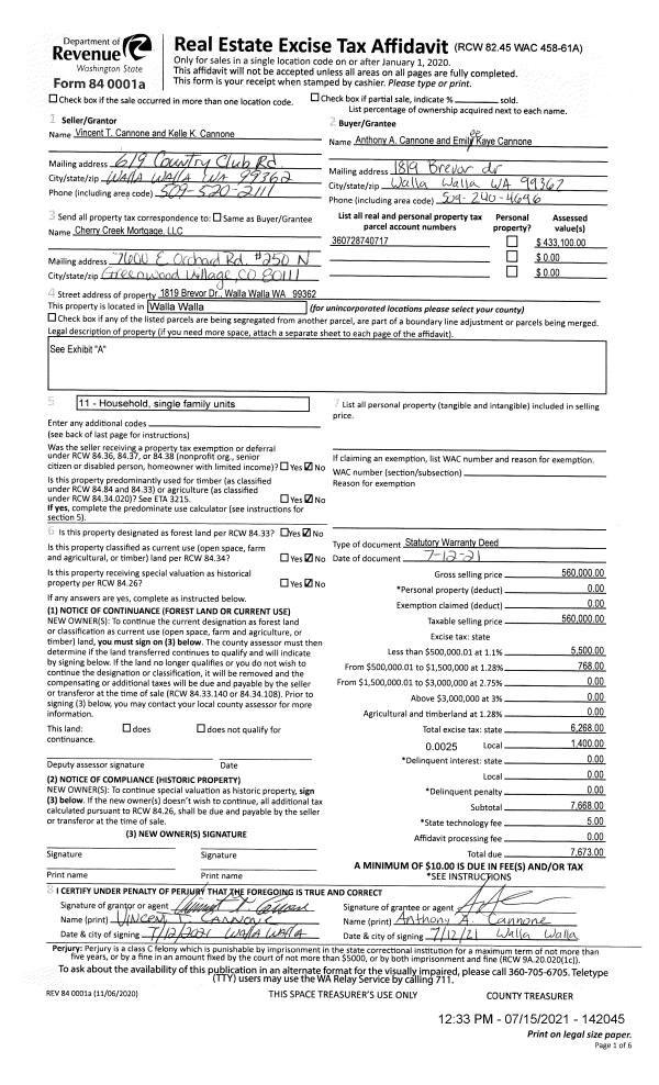
Property
Account |
| Property ID: | 10016 | Abbreviated Legal Description: | STUBBLEFIELD SUB DVN LOT 17 BLK 7 LESS TAX 3 |
| Parcel Number: | 360728740717 | Agent Code: | |
| Type: | Real | | |
| Tax Area: | 1 - OL-140-F | Land Use Code | 11 |
| Open Space: | N | DFL | N |
| Historic Property: | N | Remodel Property: | N |
| Multi-Family Redevelopment: | N | | |
| Township: | 7 | Section: | 28 |
| Range: | 36 |
Location |
| Address: | 1819 BREVOR DR WA 99362 | Mapsco: | |
| Neighborhood: | G Res | Map ID: | |
| Neighborhood CD: | 614011 |
Owner |
| Name: | CANNONE ANTHONY A & EMILEE KAYE | Owner ID: | 57037 |
| Mailing Address: | 1819 BREVOR DR WALLA WALLA, WA 99362 | % Ownership: | 100.0000000000% |
| | | Exemptions: | |
Taxes and Assessment Details
Property Tax Information as of
02/21/2026
Click on "Statement Details" to expand or collapse a tax statement.
* Please enter a valid date ** Please enter a valid date *
Statement Details |
| | TOTAL: | $0.00 | $0.00 | $0.00 | $0.00 | $0.00 | $0.00 |
|
| | $0.00 | $0.00 | $0.00 | $0.00 | $0.00 | $0.00 |
Values
| (+) Improvement Homesite Value: | + | $0 | |
| (+) Improvement Non-Homesite Value: | + | $452,530 | |
| (+) Land Homesite Value: | + | $0 | |
| (+) Land Non-Homesite Value: | + | $120,000 | |
| (+) Curr Use (HS): | + | $0 | $0 |
| (+) Curr Use (NHS): | + | $0 | $0 |
| | | -------------------------- | |
| (=) Market Value: | = | $572,530 | |
| (–) Productivity Loss: | – | $0 | |
| | | -------------------------- | |
| (=) Subtotal: | = | $572,530 | |
| (+) Senior Appraised Value: | + | $0 | |
| (+) Non-Senior Appraised Value: | + | $572,530 | |
| | | -------------------------- | |
| (=) Total Appraised Value: | = | $572,530 | |
| (–) Senior Exemption Loss: | – | $0 | |
| (–) Exemption Loss: | – | $0 | |
| | | -------------------------- | |
| (=) Taxable Value: | = | $572,530 | |
Taxing Jurisdiction
| Owner: | CANNONE ANTHONY A & EMILEE KAYE | | |
| % Ownership: | 100.0000000000% | | |
| Total Value: | $572,530 | | |
| Tax Area: | 1 - OL-140-F |
| CERFD | CURRENT EXPENSE REFUND 010 | 0.0000000000 | $572,530 | $572,530 | $0.00 | | |
| CURREXP | CURRENT EXPENSE 010 | 1.0175366760 | $572,530 | $572,530 | $582.57 | | |
| HUMNSERV | HUMAN SERVICES 119 | 0.0250000000 | $572,530 | $572,530 | $14.31 | | |
| SLDREL | SOLDIERS RELIEF 121 | 0.0155990005 | $572,530 | $572,530 | $8.93 | | |
| EMERGSER | EMS 147 | 0.3792580840 | $572,530 | $572,530 | $217.14 | | |
| EMSRFD | EMS REFUND 147 | 0.0000000000 | $572,530 | $572,530 | $0.00 | | |
| PORTRFD | PORT REFUND 640 | 0.0000000000 | $572,530 | $572,530 | $0.00 | | |
| PORTWWGEN | PORT OF WW 640 | 0.2460186015 | $572,530 | $572,530 | $140.85 | | |
| SD140BOND | SD #140 BOND 764 | 0.8342371393 | $572,530 | $572,530 | $477.63 | | |
| SD140GEN | SD #140 GENERAL 760 | 2.0646500647 | $572,530 | $572,530 | $1,182.07 | | |
| ST2 | STATE SCHOOL PART 2 600 | 0.8131451643 | $572,530 | $572,530 | $465.55 | | |
| STATESCHL | STATE SCHOOL 600 | 1.5158548041 | $572,530 | $572,530 | $867.87 | | |
| STREFUND | STATE REFUND LEVY 603 | 0.0000000000 | $572,530 | $572,530 | $0.00 | | |
| CWWBOND | C OF WW BOND 643 | 0.2760494372 | $572,530 | $572,530 | $158.05 | | |
| CWWGEN | CITY OF WW 631 | 1.6100204973 | $572,530 | $572,530 | $921.79 | | |
| CWWRFD | CITY OF WALLA WALLA REFUND 631 | 0.0000000000 | $572,530 | $572,530 | $0.00 | | |
| | Total Tax Rate: | 8.7973694689 | | | | | |
| | | | | Taxes w/Current Exemptions: | $5,036.76 | | |
| | | | | Taxes w/o Exemptions: | $5,036.76 | | |
Improvement / Building
| Improvement #1: | RESIDENTIAL | State Code: | 11 | 1794.0 sqft | Value: | $452,530 |
| Exterior Wall: | SIDING | Heating/Cooling: | WARM & COOLED AIR | | Number of Bathrooms: | 3 | Number of Bedrooms: | 4 | | Plumbing: | 15 | Roof Covering: | COMP SHINGLE |
|
| | Type | Description | Class CD | Sub Class CD | Year Built | Area |
| | MA | Main Area | 1 | 35 | 1973 | 1794.0 |
| | SI1 | SITE IMPROVEMENT | 1 | 35 | 1973 | 4.5 |
| | BASE | BASEMENT | 1 | 35 | 1973 | 1696.0 |
| | BPF | BASEMENT -PARTITIONED FINISH | 1 | 35 | 1973 | 1270.0 |
| | DTG | Detached Garage | 1 | 35 | 1973 | 484.0 |
| | WOD | Wood Deck | 1 | 35 | 1973 | 386.0 |
| | D2F | Double 2 Story Fireplace | 1 | 35 | 1973 | 1.0 |
| | RPC | OPEN PORCH W/ROOF , CEILED | 1 | 35 | 1973 | 101.0 |
Sketch
Property Image
Land
| 1 | RES 1 | Converted: Residential | 0.2386 | 10395.00 | 0.00 | 0.00 | 1.00 | $120,000 | $0 |
Roll Value History
| 2026 | N/A | N/A | N/A | N/A | N/A |
| 2025 | $451,070 | $150,000 | $0 | $601,070 | $601,070 |
| 2024 | $452,530 | $120,000 | $0 | $572,530 | $572,530 |
| 2023 | $452,530 | $120,000 | $0 | $572,530 | $572,530 |
| 2022 | $452,530 | $85,000 | $0 | $537,530 | $537,530 |
| 2021 | $348,100 | $85,000 | $0 | $433,100 | $433,100 |
| 2020 | $290,080 | $85,000 | $0 | $375,080 | $375,080 |
| 2019 | $290,080 | $85,000 | $0 | $375,080 | $375,080 |
| 2018 | $316,750 | $50,000 | $0 | $366,750 | $366,750 |
| 2017 | $301,670 | $50,000 | $0 | $351,670 | $351,670 |
| 2016 | $301,670 | $50,000 | $0 | $351,670 | $351,670 |
| 2015 | $287,300 | $50,000 | $0 | $337,300 | $337,300 |
| 2014 | $221,000 | $50,000 | $0 | $271,000 | $271,000 |
| 2013 | $221,000 | $50,000 | $0 | $271,000 | $271,000 |
| 2012 | $231,400 | $50,000 | $0 | $0 | $0 |
| 2011 | $231,400 | $50,000 | $0 | $0 | $0 |
| 2010 | $231,400 | $50,000 | $0 | $0 | $0 |
| 2009 | $262,700 | $50,000 | $0 | $0 | $0 |
| 2008 | $262,700 | $50,000 | $0 | $0 | $0 |
| 2007 | $204,600 | $30,000 | $0 | $0 | $0 |
Deed and Sales History
| 1 | 07/15/2021 | SWD | STATUTORY WARRANTY DEED | CANNONE VINCENT T & KELLE K | CANNONE ANTHONY A & EMILEE KAYE | | | $560,000.00 | 142045 | 2021-08615 |
| 2 | 05/20/2014 | SWD | STATUTORY WARRANTY DEED | HAND GERALD H & ERDENE L | CANNONE VINCENT T & KELLE K | | | $370,000.00 | 125921 | 2014-03420 |
| 3 | 10/13/1999 | WARRANTY D | WARRANTY DEED | | | | | $245,000.00 | 93817 | 2909-911847 |
Payout Agreement
| No payout information available.. |