Property
Account |
| Property ID: | 10008 | Abbreviated Legal Description: | STUBBLEFIELD SUB DVN LOT 1 BLK 7 |
| Parcel Number: | 360728740701 | Agent Code: | |
| Type: | Real | | |
| Tax Area: | 1 - OL-140-F | Land Use Code | 11 |
| Open Space: | N | DFL | N |
| Historic Property: | N | Remodel Property: | N |
| Multi-Family Redevelopment: | N | | |
| Township: | 7 | Section: | 28 |
| Range: | 36 |
Location |
| Address: | 1098 AUBIN RD WA 99362 | Mapsco: | |
| Neighborhood: | G Res | Map ID: | |
| Neighborhood CD: | 614011 |
Owner |
| Name: | HAINES JOSHUA L | Owner ID: | 62637 |
| Mailing Address: | 1098 AUBIN RD WALLA WALLA, WA 99362 | % Ownership: | 100.0000000000% |
| | | Exemptions: | |
Taxes and Assessment Details
Values
| (+) Improvement Homesite Value: | + | $0 | |
| (+) Improvement Non-Homesite Value: | + | $287,800 | |
| (+) Land Homesite Value: | + | $0 | |
| (+) Land Non-Homesite Value: | + | $120,000 | |
| (+) Curr Use (HS): | + | $0 | $0 |
| (+) Curr Use (NHS): | + | $0 | $0 |
| | | -------------------------- | |
| (=) Market Value: | = | $407,800 | |
| (–) Productivity Loss: | – | $0 | |
| | | -------------------------- | |
| (=) Subtotal: | = | $407,800 | |
| (+) Senior Appraised Value: | + | $0 | |
| (+) Non-Senior Appraised Value: | + | $407,800 | |
| | | -------------------------- | |
| (=) Total Appraised Value: | = | $407,800 | |
| (–) Senior Exemption Loss: | – | $0 | |
| (–) Exemption Loss: | – | $0 | |
| | | -------------------------- | |
| (=) Taxable Value: | = | $407,800 | |
Taxing Jurisdiction
| Owner: | HAINES JOSHUA L | | |
| % Ownership: | 100.0000000000% | | |
| Total Value: | $407,800 | | |
| Tax Area: | 1 - OL-140-F |
| CERFD | CURRENT EXPENSE REFUND 010 | 0.0000000000 | $407,800 | $407,800 | $0.00 | | |
| CURREXP | CURRENT EXPENSE 010 | 1.0175366760 | $407,800 | $407,800 | $414.95 | | |
| HUMNSERV | HUMAN SERVICES 119 | 0.0250000000 | $407,800 | $407,800 | $10.20 | | |
| SLDREL | SOLDIERS RELIEF 121 | 0.0155990005 | $407,800 | $407,800 | $6.36 | | |
| EMERGSER | EMS 147 | 0.3792580840 | $407,800 | $407,800 | $154.66 | | |
| EMSRFD | EMS REFUND 147 | 0.0000000000 | $407,800 | $407,800 | $0.00 | | |
| PORTRFD | PORT REFUND 640 | 0.0000000000 | $407,800 | $407,800 | $0.00 | | |
| PORTWWGEN | PORT OF WW 640 | 0.2460186015 | $407,800 | $407,800 | $100.33 | | |
| SD140BOND | SD #140 BOND 764 | 0.8342371393 | $407,800 | $407,800 | $340.20 | | |
| SD140GEN | SD #140 GENERAL 760 | 2.0646500647 | $407,800 | $407,800 | $841.96 | | |
| ST2 | STATE SCHOOL PART 2 600 | 0.8131451643 | $407,800 | $407,800 | $331.60 | | |
| STATESCHL | STATE SCHOOL 600 | 1.5158548041 | $407,800 | $407,800 | $618.17 | | |
| STREFUND | STATE REFUND LEVY 603 | 0.0000000000 | $407,800 | $407,800 | $0.00 | | |
| CWWBOND | C OF WW BOND 643 | 0.2760494372 | $407,800 | $407,800 | $112.57 | | |
| CWWGEN | CITY OF WW 631 | 1.6100204973 | $407,800 | $407,800 | $656.57 | | |
| CWWRFD | CITY OF WALLA WALLA REFUND 631 | 0.0000000000 | $407,800 | $407,800 | $0.00 | | |
| | Total Tax Rate: | 8.7973694689 | | | | | |
| | | | | Taxes w/Current Exemptions: | $3,587.57 | | |
| | | | | Taxes w/o Exemptions: | $3,587.57 | | |
Improvement / Building
| Improvement #1: | RESIDENTIAL | State Code: | 11 | 1984.0 sqft | Value: | $287,800 |
| Exterior Wall: | SIDING | Foundation: | SLAB FOUNDATION | | Heating/Cooling: | WARM & COOLED AIR | Number of Bathrooms: | 2.5 | | Number of Bedrooms: | 3 | Plumbing: | 11 | | Roof Covering: | WOOD SHAKE |   |   |
|
| | Type | Description | Class CD | Sub Class CD | Year Built | Area |
| | MA | Main Area | 3 | 40 | 1972 | 1984.0 |
| | SI1 | SITE IMPROVEMENT | 3 | 40 | 1972 | 3.5 |
| | UPFL | Upper Floor (included in main area) | 3 | 40 | 1972 | 672.0 |
| | ATG | Attached Garage | 3 | 40 | 1972 | 528.0 |
| | S1F | Single One Story Fireplace | 3 | 40 | 1972 | 1.0 |
| | CPC | COVERED CARPORT/PATIO | 3 | 40 | 1972 | 160.0 |
| | RPC | OPEN PORCH W/ROOF , CEILED | 3 | 40 | 1972 | 72.0 |
| | RCD | WOOD DECK W/ROOF, CEILED | 3 | 40 | 1972 | 120.0 |
Sketch
Property Image
Land
| 1 | RES 1 | Converted: Residential | 0.2518 | 10967.00 | 0.00 | 0.00 | 1.00 | $120,000 | $0 |
Roll Value History
| 2026 | N/A | N/A | N/A | N/A | N/A |
| 2025 | $301,650 | $150,000 | $0 | $451,650 | $451,650 |
| 2024 | $287,800 | $120,000 | $0 | $407,800 | $407,800 |
| 2023 | $287,800 | $120,000 | $0 | $407,800 | $407,800 |
| 2022 | $287,800 | $85,000 | $0 | $372,800 | $372,800 |
| 2021 | $198,480 | $85,000 | $0 | $283,480 | $283,480 |
| 2020 | $165,400 | $85,000 | $0 | $250,400 | $250,400 |
| 2019 | $165,400 | $85,000 | $0 | $250,400 | $250,400 |
| 2018 | $213,890 | $50,000 | $0 | $263,890 | $263,890 |
| 2017 | $203,700 | $50,000 | $0 | $253,700 | $253,700 |
| 2016 | $203,700 | $50,000 | $0 | $253,700 | $253,700 |
| 2015 | $203,700 | $50,000 | $0 | $253,700 | $253,700 |
| 2014 | $194,000 | $50,000 | $0 | $244,000 | $244,000 |
| 2013 | $194,000 | $50,000 | $0 | $244,000 | $244,000 |
| 2012 | $186,200 | $50,000 | $0 | $0 | $0 |
| 2011 | $186,200 | $50,000 | $0 | $0 | $0 |
| 2010 | $164,700 | $50,000 | $0 | $0 | $0 |
| 2009 | $188,600 | $50,000 | $0 | $0 | $0 |
| 2008 | $188,600 | $50,000 | $0 | $0 | $0 |
| 2007 | $127,100 | $30,000 | $0 | $0 | $0 |
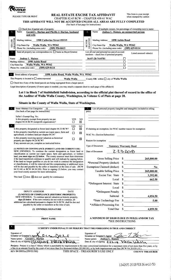
Deed and Sales History
| 1 | 02/26/2018 | SWD | STATUTORY WARRANTY DEED | HARLAN GERALD L | HAINES JOSHUA L | | | $265,000.00 | 134205 | 2018-01520 |
| 2 | 03/01/1972 | WARRANTY D | WARRANTY DEED | | | | | $3,150.00 | 0 | 3440-519645 |
Payout Agreement
| No payout information available.. |