Property
Account |
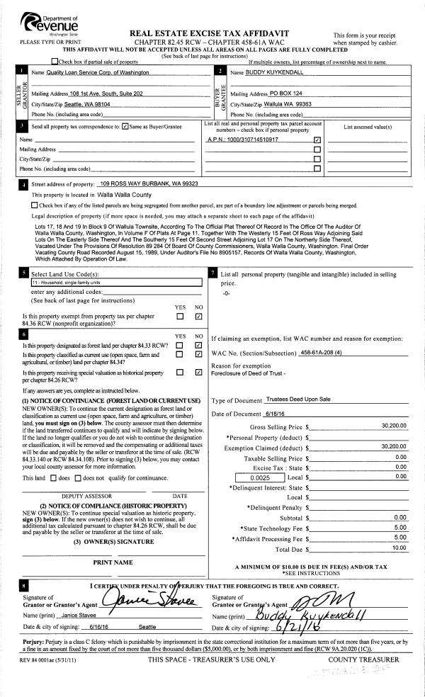
| Property ID: | 1000 | Abbreviated Legal Description: | WALLULA TOWNSITE LTS 17 & 18 BLK 9 |
| Parcel Number: | 310714510917 | Agent Code: | |
| Type: | Real | | |
| Tax Area: | 327 - 400-5-WI-C-M | Land Use Code | 11 |
| Open Space: | N | DFL | N |
| Historic Property: | N | Remodel Property: | N |
| Multi-Family Redevelopment: | N | | |
| Township: | 7 | Section: | 14 |
| Range: | 31 |
Location |
| Address: | 109 ROSS WAY WA 99363 | Mapsco: | |
| Neighborhood: | Wallula A SFR | Map ID: | |
| Neighborhood CD: | 213811 |
Owner |
| Name: | SALGADO LUCIO PANIAGUA | Owner ID: | 63449 |
| Mailing Address: | PO BOX 154 WALLULA, WA 99363 | % Ownership: | 100.0000000000% |
| | | Exemptions: | SNR/DSBL |
Taxes and Assessment Details
Property Tax Information as of
02/21/2026
Click on "Statement Details" to expand or collapse a tax statement.
* Please enter a valid date ** Please enter a valid date *
Statement Details |
| | TOTAL: | $0.00 | $0.00 | $0.00 | $0.00 | $0.00 | $0.00 |
|
| | $0.00 | $0.00 | $0.00 | $0.00 | $0.00 | $0.00 |
Values
| (+) Improvement Homesite Value: | + | $136,280 | |
| (+) Improvement Non-Homesite Value: | + | $0 | |
| (+) Land Homesite Value: | + | $23,290 | |
| (+) Land Non-Homesite Value: | + | $0 | |
| (+) Curr Use (HS): | + | $0 | $0 |
| (+) Curr Use (NHS): | + | $0 | $0 |
| | | -------------------------- | |
| (=) Market Value: | = | $159,570 | |
| (–) Productivity Loss: | – | $0 | |
| | | -------------------------- | |
| (=) Subtotal: | = | $159,570 | |
| (+) Senior Appraised Value: | + | $122,040 | |
| (+) Non-Senior Appraised Value: | + | $0 | |
| | | -------------------------- | |
| (=) Total Appraised Value: | = | $122,040 | |
| (–) Senior Exemption Loss: | – | $73,224 | |
| (–) Exemption Loss: | – | $0 | |
| | | -------------------------- | |
| (=) Taxable Value: | = | $48,816 | |
Taxing Jurisdiction
| Owner: | SALGADO LUCIO PANIAGUA | | |
| % Ownership: | 100.0000000000% | | |
| Total Value: | $159,570 | | |
| Tax Area: | 327 - 400-5-WI-C-M |
| CERFD | CURRENT EXPENSE REFUND 010 | 0.0000000000 | $159,570 | $48,816 | $0.00 | | |
| CURREXP | CURRENT EXPENSE 010 | 1.0175366760 | $159,570 | $48,816 | $49.67 | | |
| HUMNSERV | HUMAN SERVICES 119 | 0.0250000000 | $159,570 | $48,816 | $1.22 | | |
| SLDREL | SOLDIERS RELIEF 121 | 0.0155990005 | $159,570 | $48,816 | $0.76 | | |
| EMERGSER | EMS 147 | 0.3792580840 | $159,570 | $48,816 | $18.51 | | |
| EMSRFD | EMS REFUND 147 | 0.0000000000 | $159,570 | $48,816 | $0.00 | | |
| FD5EXP | FD #5 EXPENSE 689 | 1.2045331840 | $159,570 | $48,816 | $58.80 | | |
| RLBRFD | RURAL LIBRARY REFUND 623 | 0.0000000000 | $159,570 | $48,816 | $0.00 | | |
| RURALLIB | RURAL LIBRARY 623 | 0.3710609029 | $159,570 | $48,816 | $18.11 | | |
| PORTRFD | PORT REFUND 640 | 0.0000000000 | $159,570 | $48,816 | $0.00 | | |
| PORTWWGEN | PORT OF WW 640 | 0.2460186015 | $159,570 | $48,816 | $12.01 | | |
| SD400BOND | SD #400 BOND 793 | 0.0000000000 | $159,570 | $0 | $0.00 | | |
| SD400CAP | SD #400 CP 792 | 0.0000000000 | $159,570 | $0 | $0.00 | | |
| SD400GEN | SD #400 GENERAL 790 | 0.0000000000 | $159,570 | $0 | $0.00 | | |
| ST2 | STATE SCHOOL PART 2 600 | 0.0000000000 | $159,570 | $0 | $0.00 | | |
| STATESCHL | STATE SCHOOL 600 | 1.5158548041 | $159,570 | $48,816 | $74.00 | | |
| STREFUND | STATE REFUND LEVY 603 | 0.0000000000 | $159,570 | $48,816 | $0.00 | | |
| COROAD | COUNTY ROAD 115 | 1.6549953990 | $159,570 | $48,816 | $80.79 | | |
| CRPRD | COUNTY ROAD REFUND 115 | 0.0000000000 | $159,570 | $48,816 | $0.00 | | |
| | Total Tax Rate: | 6.4298566520 | | | | | |
| | | | | Taxes w/Current Exemptions: | $313.87 | | |
| | | | | Taxes w/o Exemptions: | $1,518.35 | | |
Improvement / Building
| Improvement #1: | RESIDENTIAL | State Code: | 11 | 1117.0 sqft | Value: | $136,280 |
| Exterior Wall: | PLYWOOD | Heating/Cooling: | STOVE-NO HEAT | | Number of Bathrooms: | 1 | Number of Bedrooms: | 2 | | Plumbing: | 6 | Roof Covering: | COMP SHINGLE |
|
| | Type | Description | Class CD | Sub Class CD | Year Built | Area |
| | MA | Main Area | 1 | 30 | 1965 | 1117.0 |
| | SI1 | SITE IMPROVEMENT | 1 | 30 | 1965 | 1.0 |
Sketch
Property Image
Land
| 1 | RES 1 | Converted: Residential | 0.2583 | 11250.00 | 0.00 | 0.00 | 1.00 | $23,290 | $0 |
Roll Value History
| 2026 | N/A | N/A | N/A | N/A | N/A |
| 2025 | $149,900 | $23,290 | $0 | $173,190 | $48,816 |
| 2024 | $149,900 | $23,290 | $0 | $173,190 | $48,816 |
| 2023 | $136,280 | $23,290 | $0 | $159,570 | $48,816 |
| 2022 | $118,500 | $23,290 | $0 | $141,790 | $48,816 |
| 2021 | $98,750 | $23,290 | $0 | $122,040 | $72,040 |
| 2020 | $100,590 | $6,500 | $0 | $107,090 | $107,090 |
| 2019 | $100,590 | $6,500 | $0 | $107,090 | $107,090 |
| 2018 | $67,060 | $6,500 | $0 | $73,560 | $73,560 |
| 2017 | $44,660 | $6,500 | $0 | $51,160 | $51,160 |
| 2016 | $44,660 | $6,500 | $0 | $51,160 | $51,160 |
| 2015 | $40,600 | $6,500 | $0 | $47,100 | $47,100 |
| 2014 | $40,600 | $6,500 | $0 | $47,100 | $47,100 |
| 2013 | $40,600 | $6,500 | $0 | $47,100 | $47,100 |
| 2012 | $40,600 | $6,500 | $0 | $0 | $0 |
| 2011 | $40,600 | $6,500 | $0 | $0 | $0 |
| 2010 | $40,600 | $6,500 | $0 | $0 | $0 |
| 2009 | $34,200 | $6,800 | $0 | $0 | $0 |
| 2008 | $34,200 | $6,800 | $0 | $0 | $0 |
| 2007 | $34,200 | $6,800 | $0 | $0 | $0 |
Deed and Sales History
| 1 | 06/22/2018 | QCD | QUIT CLAIM DEED | PANIAGUA FLORA Y | SALGADO LUCIO PANIAGUA | | 2-PARCELS | | 134986 | 2018-05033 |
| 2 | 06/22/2018 | SWD | STATUTORY WARRANTY DEED | KUYKENDALL BUDDY | SALGADO LUCIO PANIAGUA | | 2-PARCELS | $122,500.00 | 134985 | 2018-05032 |
|   | |
| 3 | 06/21/2016 | TRUSTEES D | TRUSTEE'S DEED | HALL JEFFREY & JOHNNA D | KUYKENDALL BUDDY | | 2-PARCLES | $30,200.00 | 130457 | 2016-04719 |
|   | |
| 4 | 10/26/2005 | WARRANTY D | WARRANTY DEED | CLARNO STEVE R | HALL JEFFREY & JOHNNA D | | | $66,000.00 | 108854 | 2005-13454 |
|   | |
| 5 | 07/07/2003 | WARRANTY D | WARRANTY DEED | HOUSEHOLD REALTY CORP | CLARNO STEVE R | | | $41,000.00 | 102501 | 2003-10095 |
|   | |
| 6 | 12/02/2002 | WARRANTY D | WARRANTY DEED | PRESLER PAUL L | HOUSEHOLD REALTY CORP | | | $37,600.00 | 100916 | 2002-13719 |
|   | |
| 7 | 10/06/1998 | WARRANTY D | WARRANTY DEED | | | | | $17,500.00 | 91399 | 2739-811513 |
|   | |
Payout Agreement
| No payout information available.. |